Büros
ID D1680Büroimmobilie - Düsseldorf, Carlstadt - D1680
Carlstadt, 40213, Düsseldorf, Nordrhein-Westfalen
Provisionspflichtig: bei Anmietung 3 Netto-Monatsmieten zzgl. gesetzlicher Umsatzsteuer.** der Wert kann je nach Vertragslaufzeit variieren.
36 € / m²
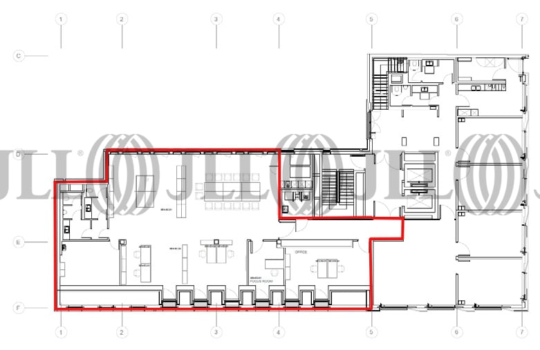
- Fläche323 m²
- VerfügbarkeitSofort
- Objekt
- Ausstattung
- Lage und Verkehrsanbindung
- Grundriss
- Exposé herunterladen
- Ihr Kontakt
- Anfrage senden
Objekt
Die Liegenschaft überzeugt neben ihrer hochwertigen Ausstattung mit hellen, effizient gestalteten Flächen. Alle Büroformen vom Einzelbüro bis hin zu Kombi- und Großraumlösungen sind hier problemlos darstellbar.
Zertifizierungen
Energieausweis
LEED: GoldVerfügbare Fläche
Lage und Verkehrsanbindung
Das Objekt befindet sich in renommierter Lage mitten im Düsseldorfer CBD. Der CBD wird im Süden vom Gap 15 und im Norden vom Dreischeibenhaus begrenzt. Die Berliner Allee sowie Kasernenstraße/Heine-Allee bilden östlich und westlich die Grenze. Herzstück ist somit die berühmte Königsallee. Zahlreiche namhafte Unternehmen am Standort profitieren von der idealen ÖPNV-Anbindung sowie der hervorragenden Infrastruktur in Bezug auf die tägliche Nahversorgung. Dienstleister des täglichen Bedarfs befinden sich in der Nähe.
- Flughafen, Düsseldorf, Fahrzeit: 13 min
- Bundesautobahn, A 52, Fahrzeit: 7 min
- Bundesautobahn, A 46, Fahrzeit: 8 min
- Hauptbahnhof, Düsseldorf, Fahrzeit: 7 min
- U-Bahn, Benrather Straße U71, U72, U73, U83, Gehzeit: 1 min
- Bus, Benrather Straße SB50, 782, 785, 805, 817, Gehzeit: 1 min
Ihr Kontakt

Anna-Louisa Kratochvil
Ihr Kontakt


