Büros
ID D1591Büroimmobilie - Hilden - D1591
40721, Hilden, Nordrhein-Westfalen
Provisionspflichtig: bei Anmietung 3 Netto-Monatsmieten zzgl. gesetzlicher Umsatzsteuer.** der Wert kann je nach Vertragslaufzeit variieren.
Kontaktieren Sie uns für den Preis
- Fläche219 - 1.650 m²
- VerfügbarkeitSofort
- Objekt
- Ausstattung
- Lage und Verkehrsanbindung
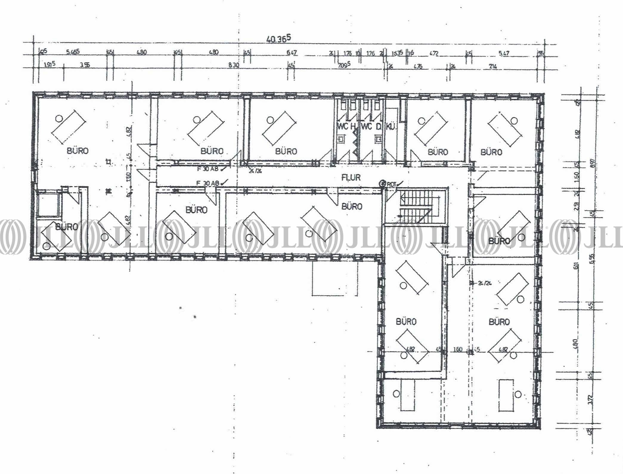
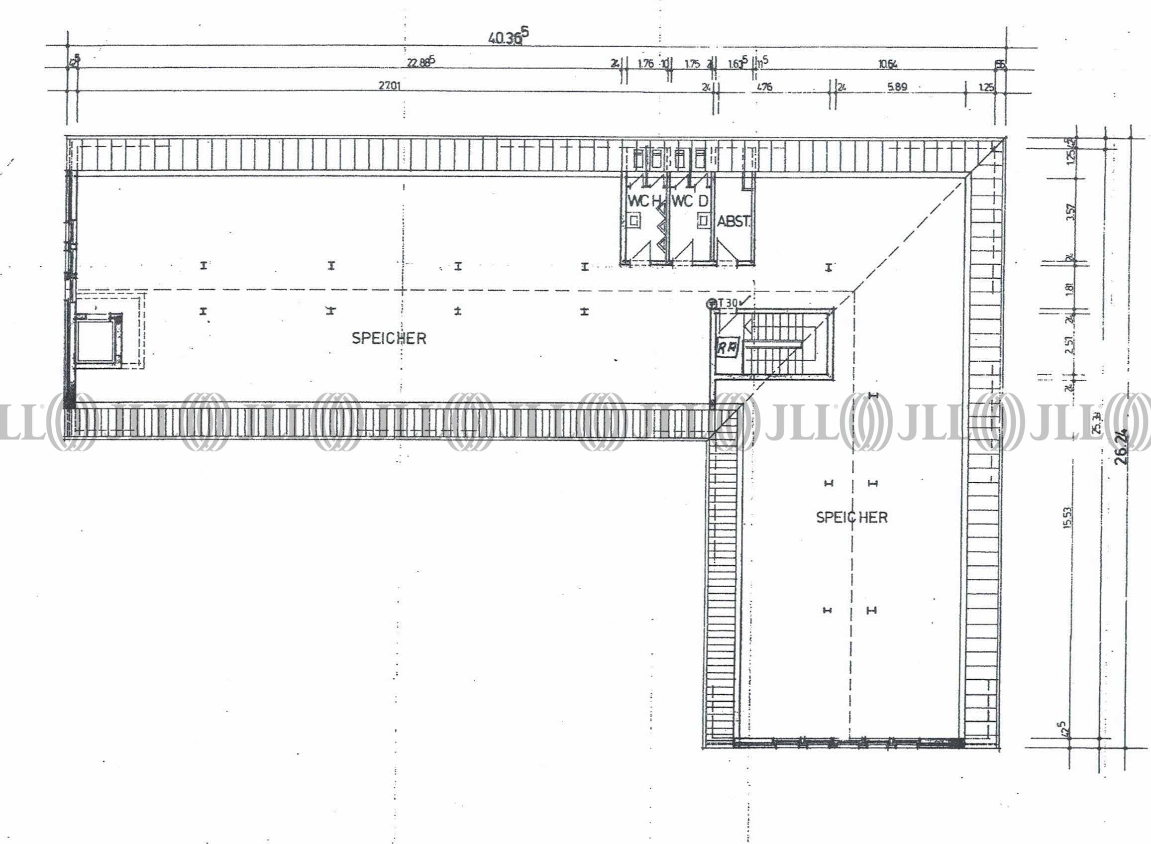
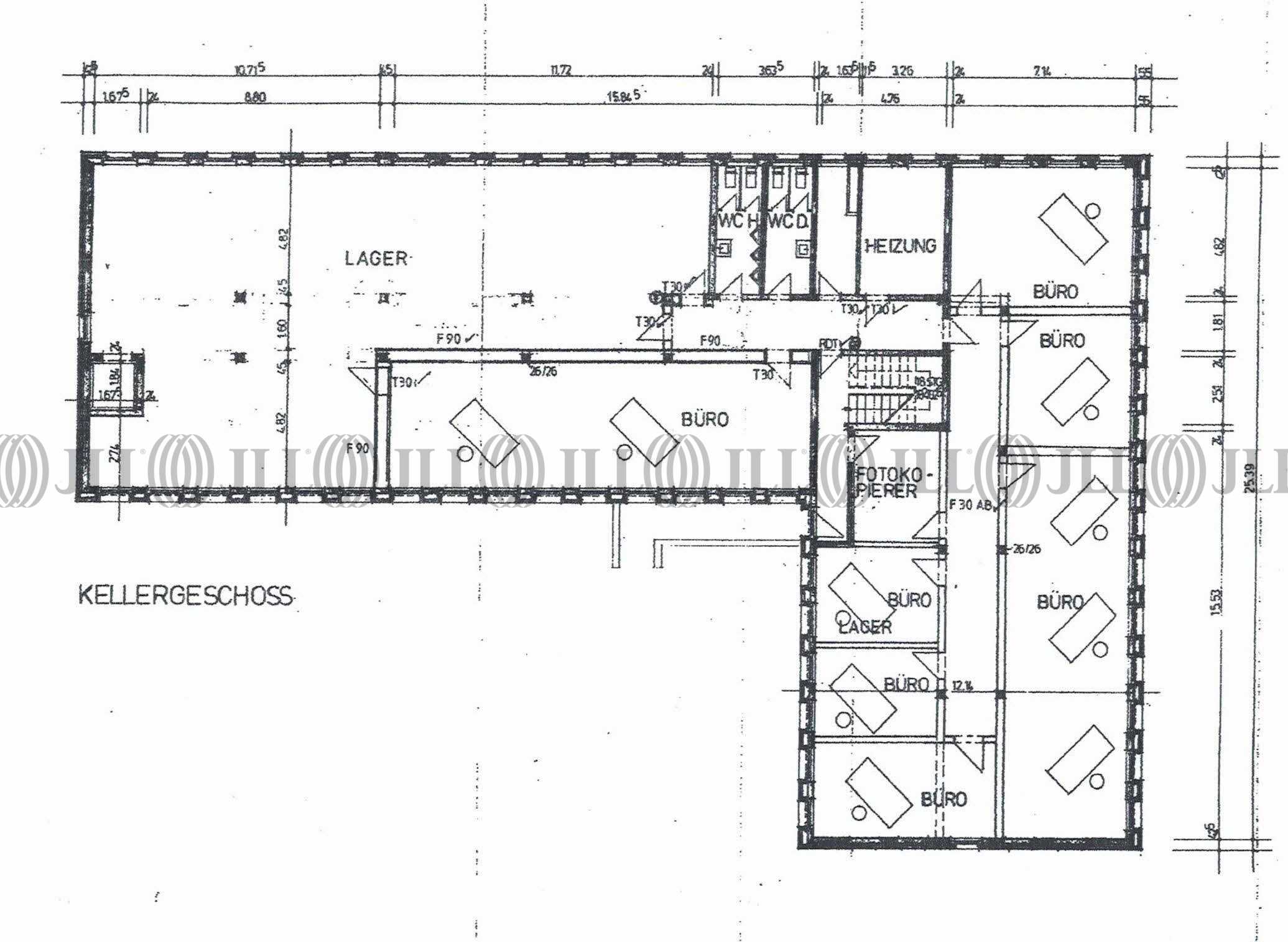
- Grundrisse
- Exposé herunterladen
- Ihr Kontakt
- Anfrage senden
Objekt
Die 4-geschossige Liegenschaft wurde 1984 errichtet verfügt über eine attraktive rote Backsteinfassade sowie einen repräsentativen Eingangsbereich. Die hellen Büroflächen lassen sich flexibel aufteilen und ausbauen.
Verfügbare Fläche
Lage und Verkehrsanbindung
Das Grundstück liegt in einem Gewerbegebiet im Westen von Hilden und verfügt über eine gute Anbindung an die Hildener Innenstadt sowie die A 46, A 3 und die A 59.
- Hauptbahnhof, Düsseldorf, Fahrzeit: 20 min
- Bus, Westring 785, Gehzeit: 10 min
- Bundesautobahn, A 59, Fahrzeit: 5 min
- Bundesautobahn, A 46, Fahrzeit: 5 min
- Bundesautobahn, A 3, Fahrzeit: 6 min
- Bundesautobahn, A 57, Fahrzeit: 14 min
- Flughafen, Düsseldorf, Fahrzeit: 20 min
Ihr Kontakt

Anna-Louisa Kratochvil
Ihr Kontakt



