Büros
ID D1580Büroimmobilie - Ratingen - D1580
40882, Ratingen, Nordrhein-Westfalen
Provisionspflichtig: bei Anmietung 3 Netto-Monatsmieten zzgl. gesetzlicher Umsatzsteuer.** der Wert kann je nach Vertragslaufzeit variieren.
14,50 € / m²
- Fläche143 - 6.222 m²
- VerfügbarkeitSofort
- Objekt
- Ausstattung
- Lage und Verkehrsanbindung
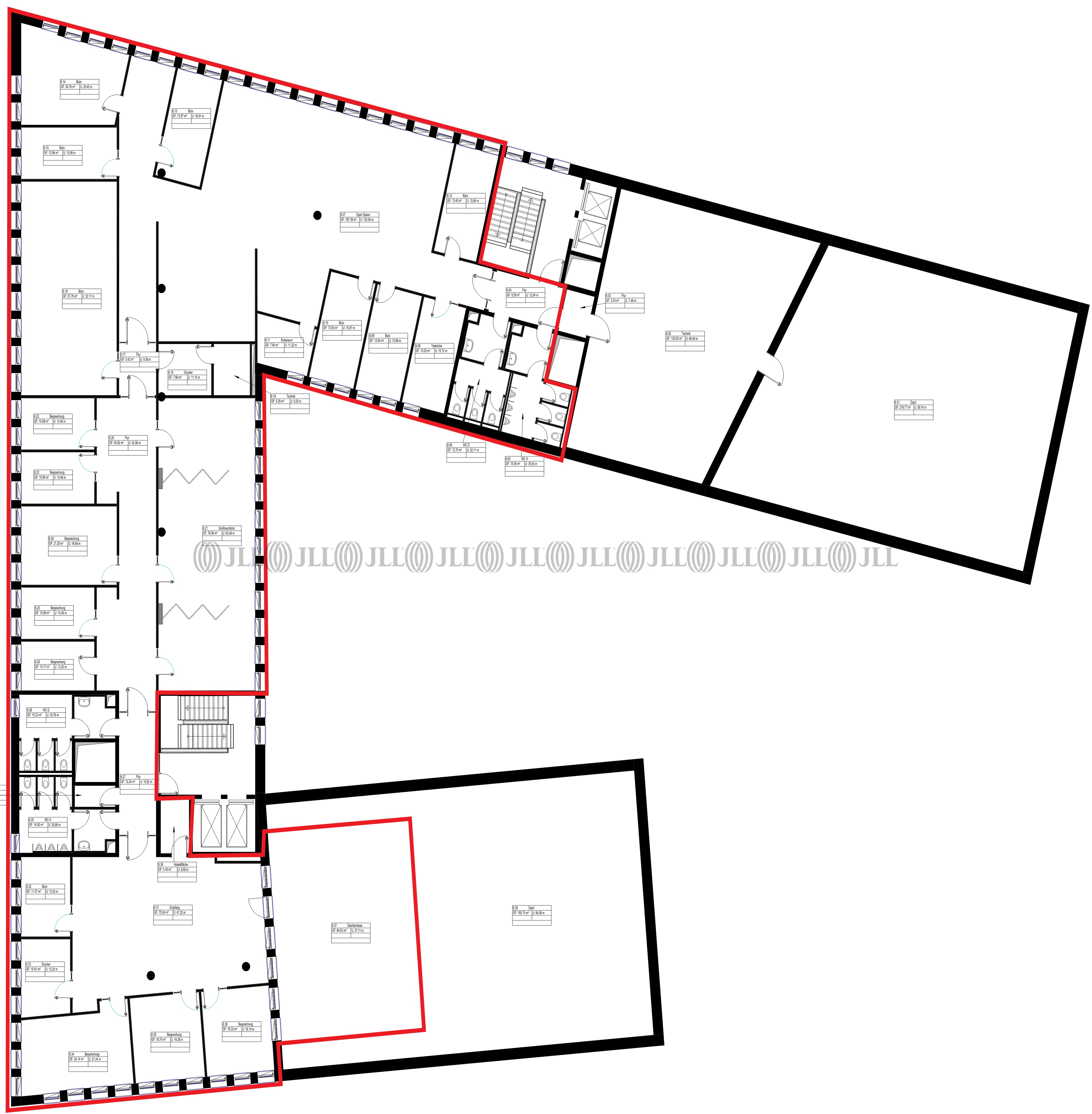
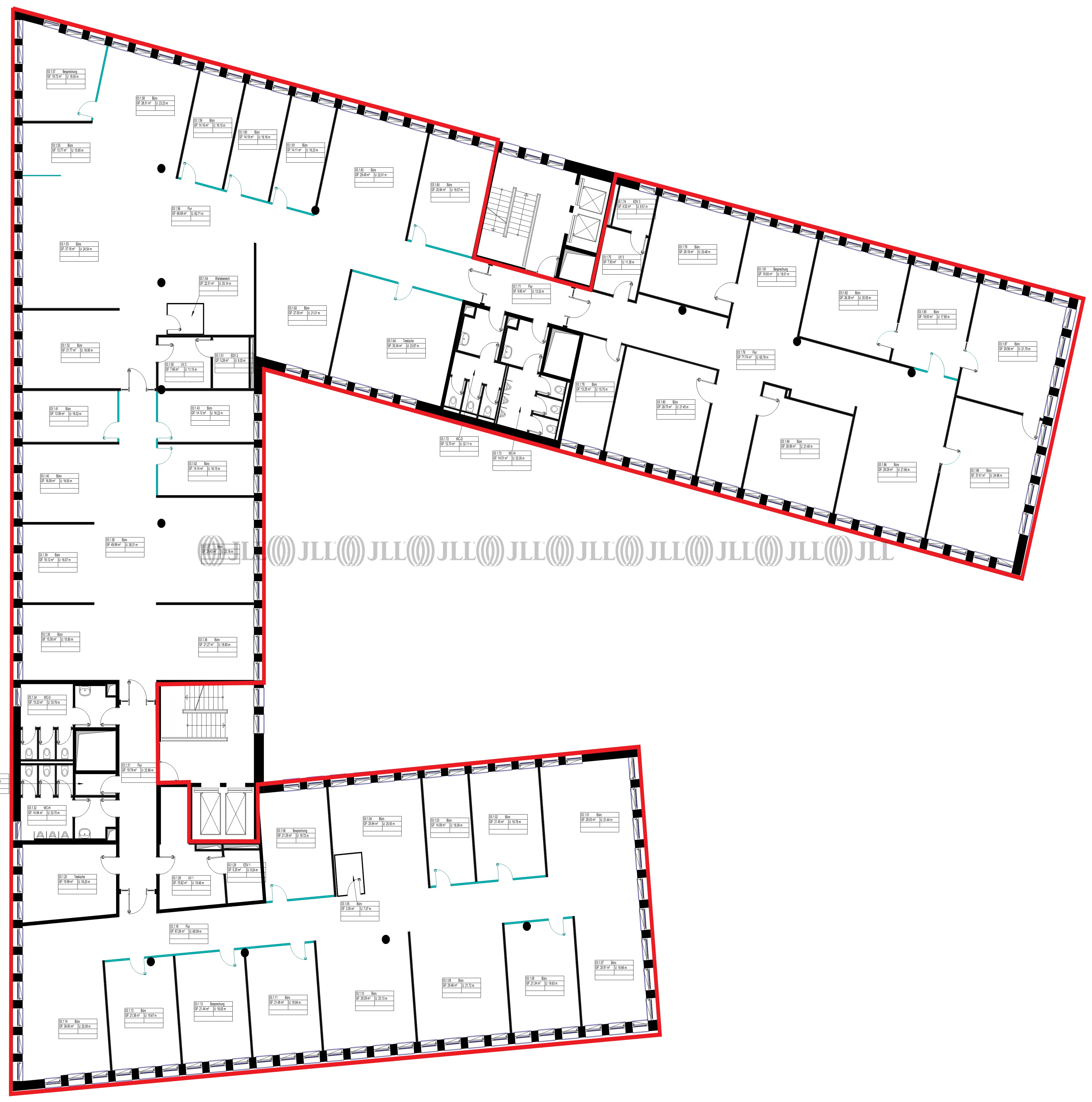
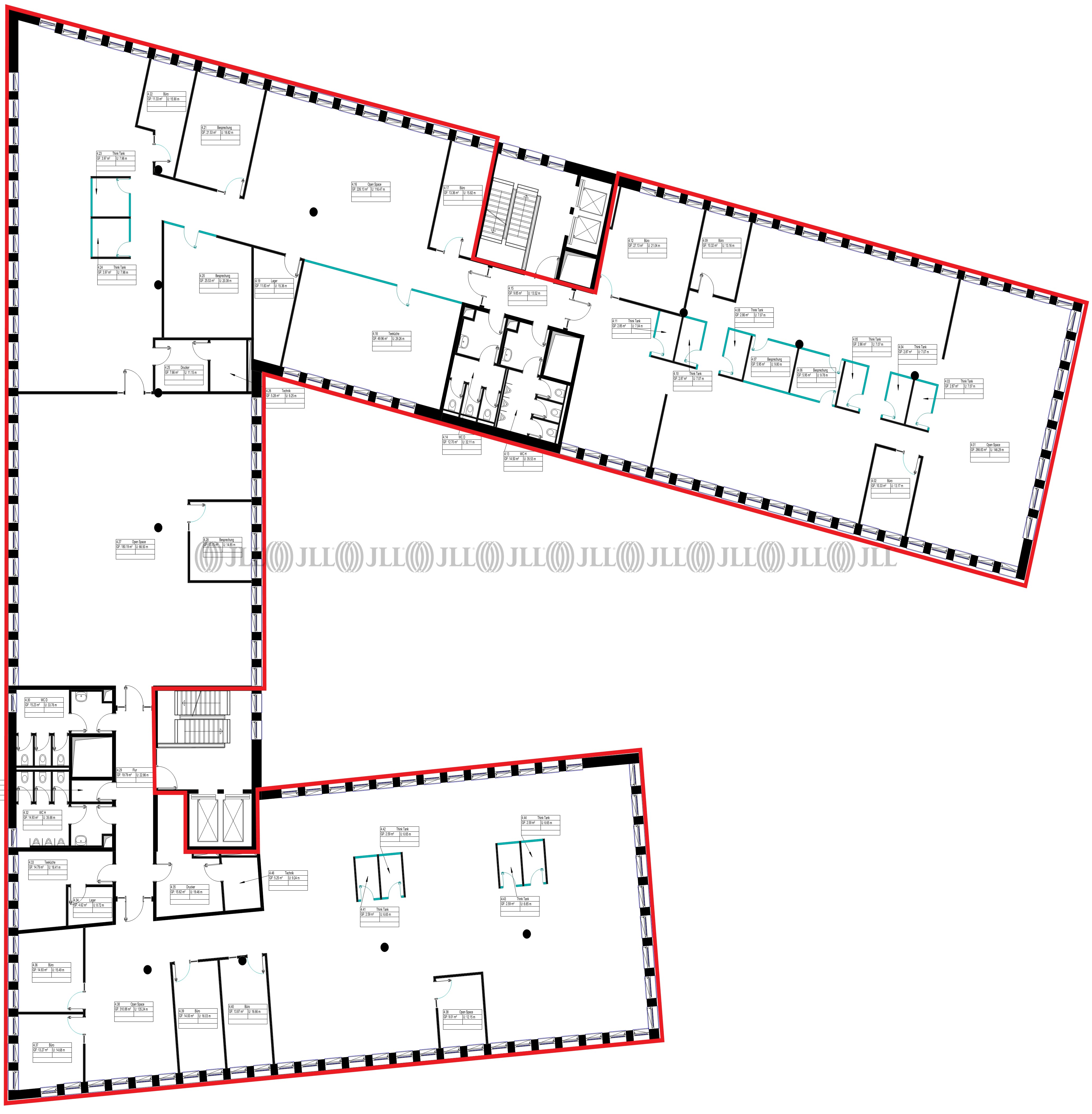
- Grundrisse
- Exposé herunterladen
- Ihr Kontakt
- Anfrage senden
Objekt
Das 2017 fertig gestellte Gebäude präsentiert sich als moderne Liegenschaft mit einer attraktiven Ausstattung, einem repräsentativen Erscheinungsbild und einer ansprechenden Natursteinfassade. Die technisch gehobene und energetisch nachhaltige Bauweise spiegelt sich in der Ausführung als Green Building wider. Durch die gehobene Gebäudequalität und die ansprechende Architektur ist die Liegenschaft sehr gut im Markt positioniert.
Zertifizierungen
Energieausweis
Für diese Liegenschaft liegt ein Bedarfsausweis vom 01.02.2016 vom Eigentümer/Vermieter vor. Die wesentlichen Energieträger der Liegenschaft sind Erdgas schwer, Strom, Wärmepumpe. Der Endenergiebedarf Strom beträgt 62,00 kWh/(m²*a). Der Endenergiebedarf Wärme beträgt 0,00 kWh/(m²*a).Verfügbare Fläche
Lage und Verkehrsanbindung
Das Objekt befindet sich an einem zukunftsorientierten Büro- und Wohnstandort in Ratingen-Ost. Hier haben sich bereits diverse internationale und namhafte Firmen wie Mitsubishi Electric und Esprit niedergelassen. Die nahe gelegenen Autobahnen A 44 und A 52 sowie die S-Bahnstation binden das Objekt ideal an Düsseldorf sowie das Ruhrgebiet an. Eine Tankstelle befindet sich in der Nähe.
- Flughafen, Düsseldorf, Fahrzeit: 8 min
- Bundesautobahn, A 44, Fahrzeit: 2 min
- Bundesautobahn, A 3, Fahrzeit: 4 min
- Bundesautobahn, A 52, Fahrzeit: 5 min
- Bundesautobahn, A 57, Fahrzeit: 14 min
- Bus, Balcke-Dürr-Allee 749, Gehzeit: 3 min
- Hauptbahnhof, Düsseldorf, Fahrzeit: 25 min
- S-Bahn, Ratingen-Ost S6, Gehzeit: 8 min
Ihr Kontakt

Janice Lehmann
Ihr Kontakt


















