Büros
ID D1448Premium JLL
Provisionsfrei
Büroimmobilie - Ratingen - D1448
40882, Ratingen, Nordrhein-Westfalen
12,50 € / m²
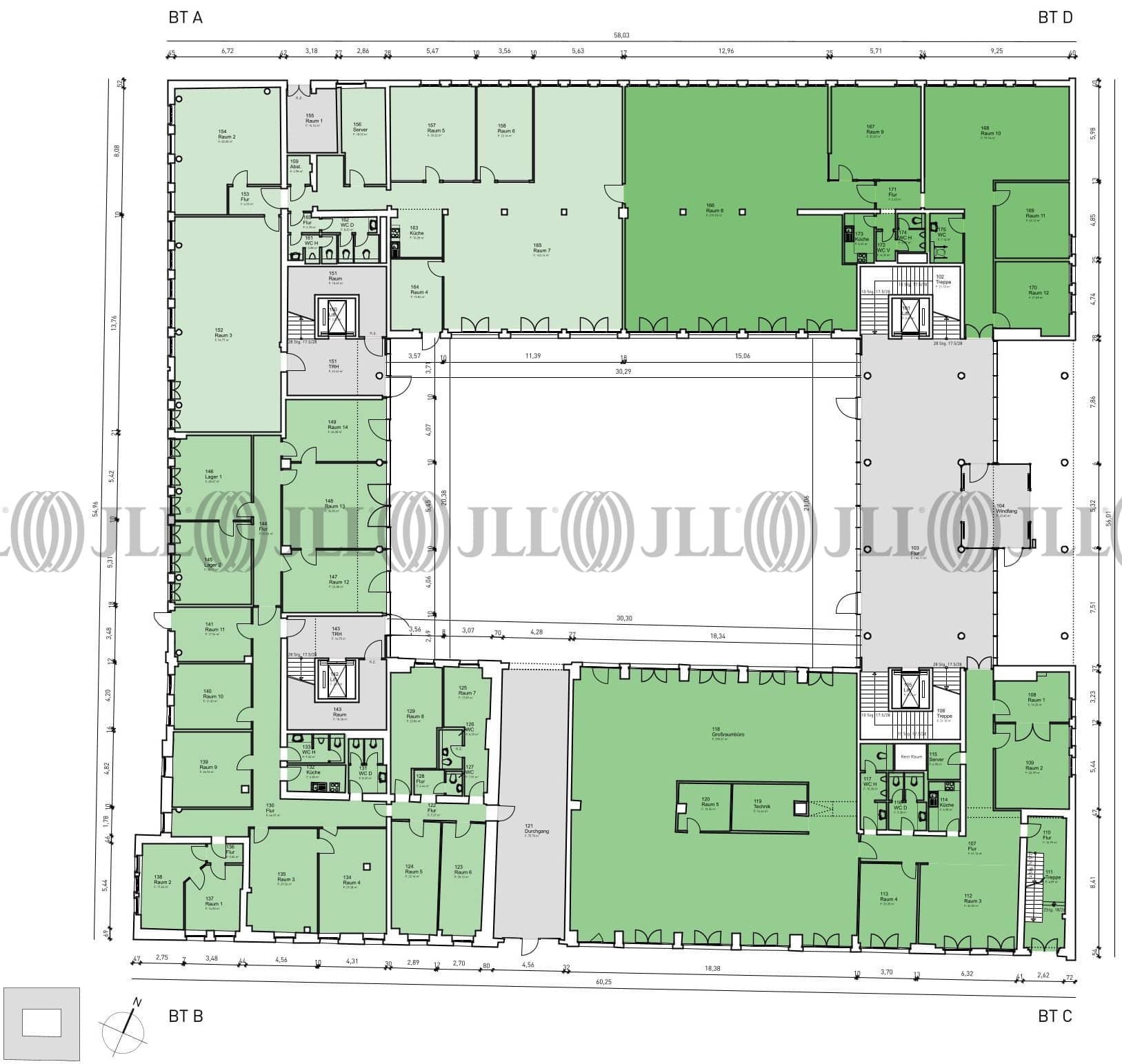
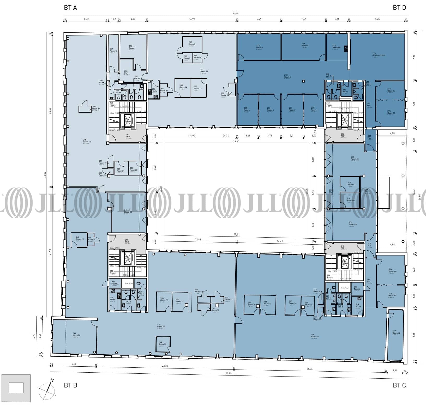
- Fläche422 - 8.431 m²
- VerfügbarkeitSofort
- Objekt
- Ausstattung
- Lage und Verkehrsanbindung
- Grundrisse
- Exposé herunterladen
- Ihr Kontakt
- Anfrage senden
Objekt
Das 5-geschossige Bürogebäude überzeugt durch ein repräsentatives Foyer sowie durch individuelle Gestaltungsmöglichkeiten der Grundrisse. Die Etagen sind flexibel teilbar und können auf die Größenverhältnisse des Mieters angepasst werden.
Zertifizierungen
Energieausweis
Für diese Liegenschaft liegt ein Verbrauchsausweis vom 03.06.2025 vom Eigentümer/Vermieter vor. Der wesentliche Energieträger der Liegenschaft ist Erdgas schwer. Der Endenergieverbrauch Strom beträgt 43.10 kWh/(m²*a). Der Endenergieverbrauch Wärme beträgt 117.0 kWh/(m²*a).Verfügbare Fläche
Lage und Verkehrsanbindung
Das Objekt befindet sich an einem zukunftsorientierten Büro- und Wohnstandort in Ratingen-Ost. Hier haben sich bereits diverse internationale und namhafte Firmen wie Mitsubishi Electric und Esprit niedergelassen. Die nahe gelegenen Autobahnen A 44 und A 52 sowie die S-Bahnstation binden das Objekt ideal an Düsseldorf sowie das Ruhrgebiet an.
- Flughafen, Düsseldorf, Fahrzeit: 9 min
- Bundesautobahn, A 44, Fahrzeit: 3 min
- Bundesautobahn, A 3, Fahrzeit: 4 min
- S-Bahn, Ratingen-Ost S6, Gehzeit: 2 min
- Bus, Fester Straße O15, 749, 771, Gehzeit: 4 min
Ihr Kontakt

Björn Pottgüter
Ihr Kontakt











