Büros
ID D1397Büroimmobilie - Düsseldorf, Heerdt - D1397
Heerdt, 40549, Düsseldorf, Nordrhein-Westfalen
Provisionspflichtig: bei Anmietung 3 Netto-Monatsmieten zzgl. gesetzlicher Umsatzsteuer.** der Wert kann je nach Vertragslaufzeit variieren.
14,50 € / m²
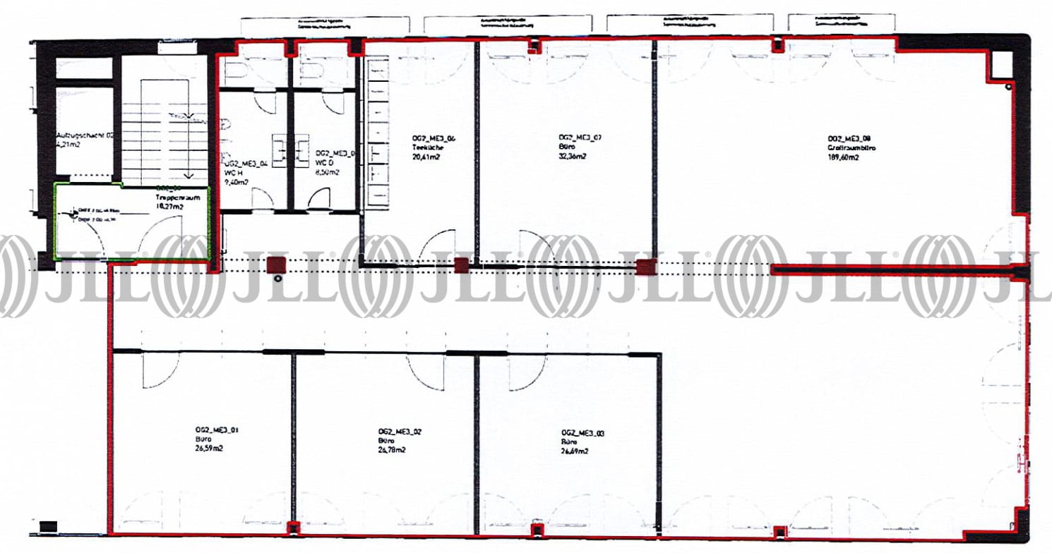
- Fläche230 - 620 m²
- VerfügbarkeitSofort
- Objekt
- Ausstattung
- Lage und Verkehrsanbindung
- Grundrisse
- Exposé herunterladen
- Ihr Kontakt
- Anfrage senden
Objekt
Das neugestaltete Bürogebäude verbindet Co-Working mit modernen Arbeitsflächen. Neben dem Angebot das hauseigene Café und temporäre Besprechungsräume nutzen zu können, bietet diese Immobilie potenziellen Nutzern ebenso eine ansprechende Qualität.
Verfügbare Fläche
Lage und Verkehrsanbindung
Das Objekt ist im linksrheinischen Düsseldorf-Heerdt gelegen und verfügt über eine sehr gute Verkehrsanbindung in Richtung City sowie stadtauswärts. Die ehemals dort herrschende Industriebranche ist einem bunten Mix aus Bürogebäuden, Großhandel und Wohnnutzung gewichen.
- Hauptbahnhof, Düsseldorf, Fahrzeit: 15 min
- U-Bahn, Heesenstraße U75, Gehzeit: 7 min
- Bus, Werftstraße 833, 862, 863, Gehzeit: 4 min
- Bundesautobahn, A 52, Fahrzeit: 6 min
- Bundesautobahn, A 44, Fahrzeit: 12 min
- Flughafen, Düsseldorf, Fahrzeit: 15 min
Ihr Kontakt

Anna-Louisa Kratochvil
Ihr Kontakt






