Büros
ID D1374Büroimmobilie - Düsseldorf, Heerdt - D1374
Heerdt, 40549, Düsseldorf, Nordrhein-Westfalen
Provisionspflichtig: bei Anmietung 3 Netto-Monatsmieten zzgl. gesetzlicher Umsatzsteuer.** der Wert kann je nach Vertragslaufzeit variieren.
10 € / m²
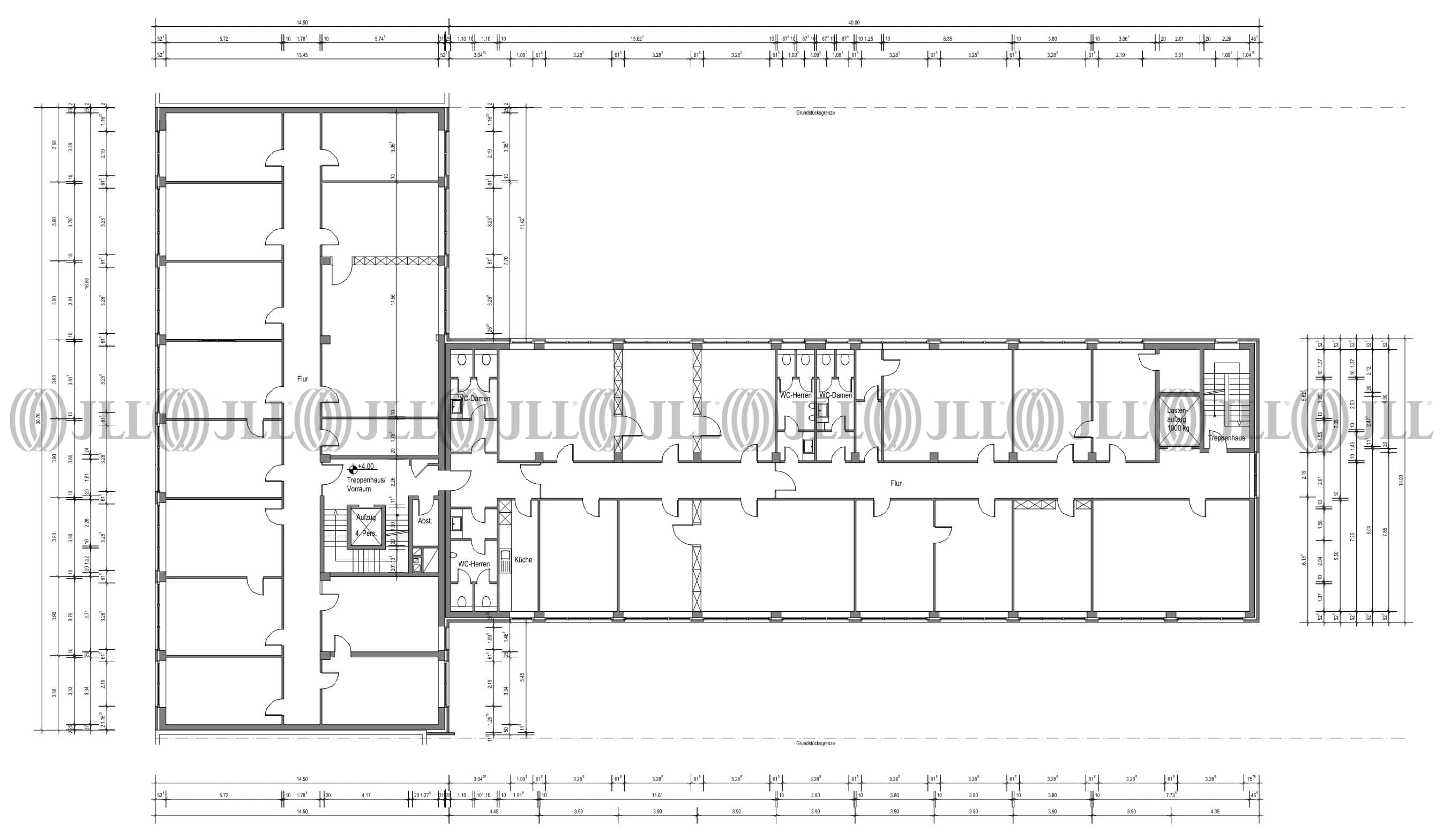
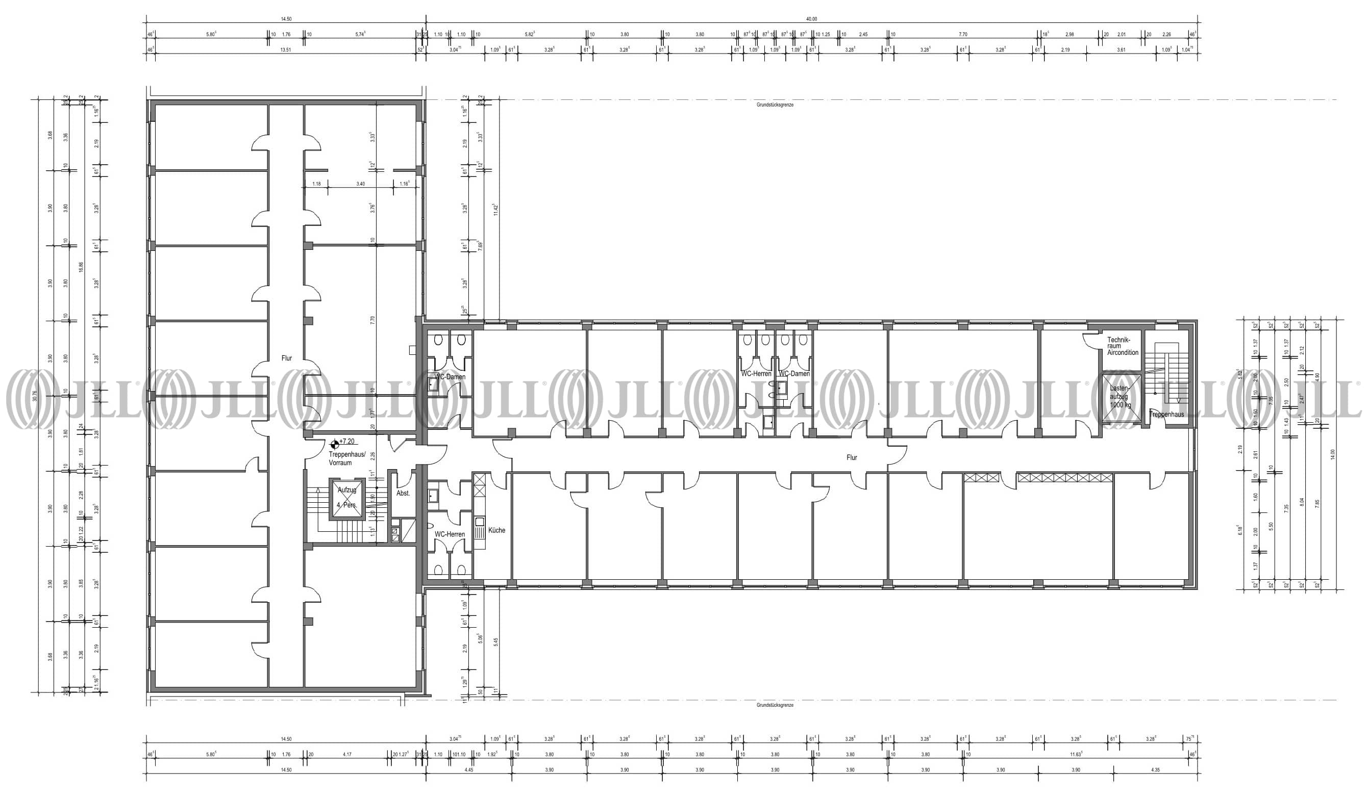
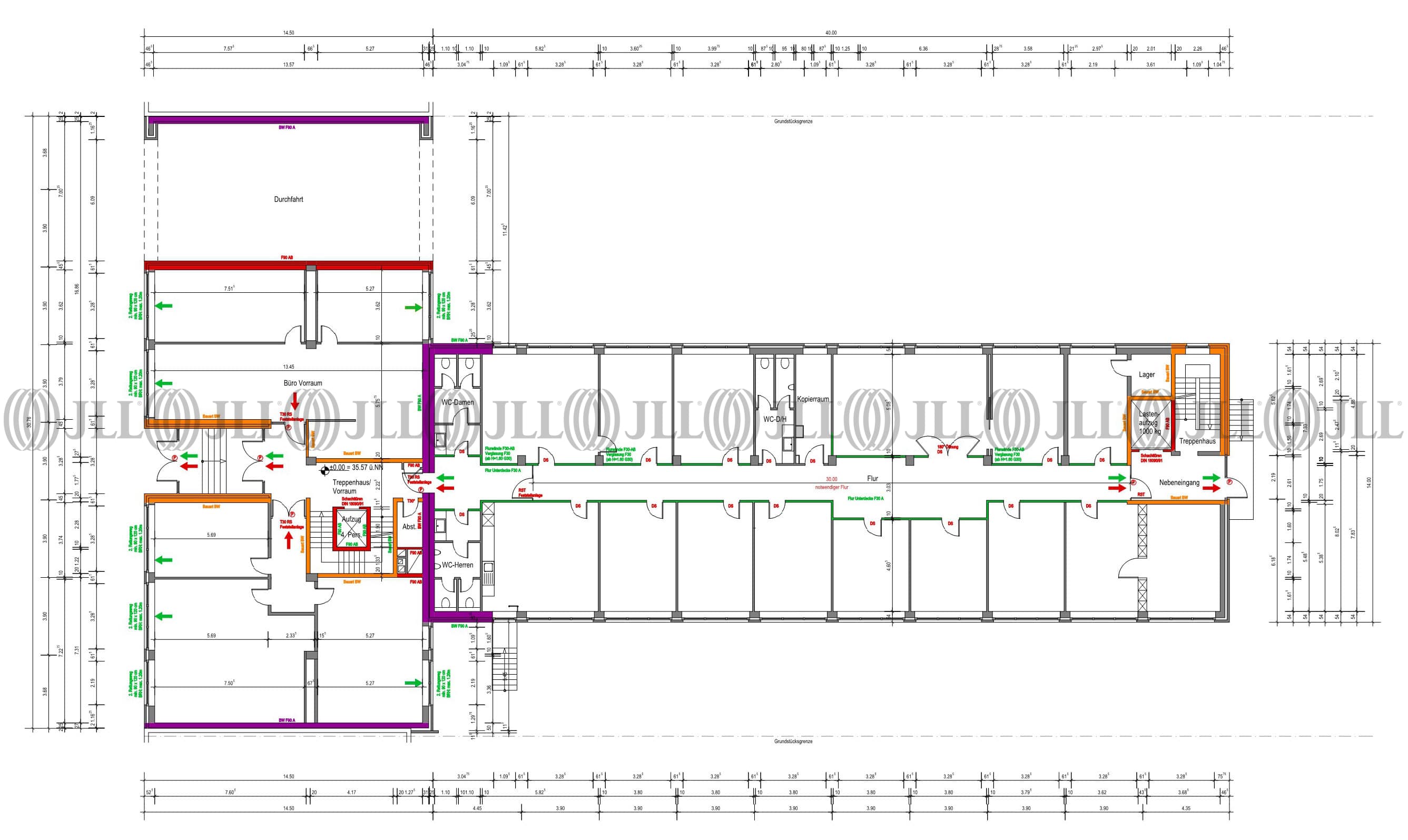
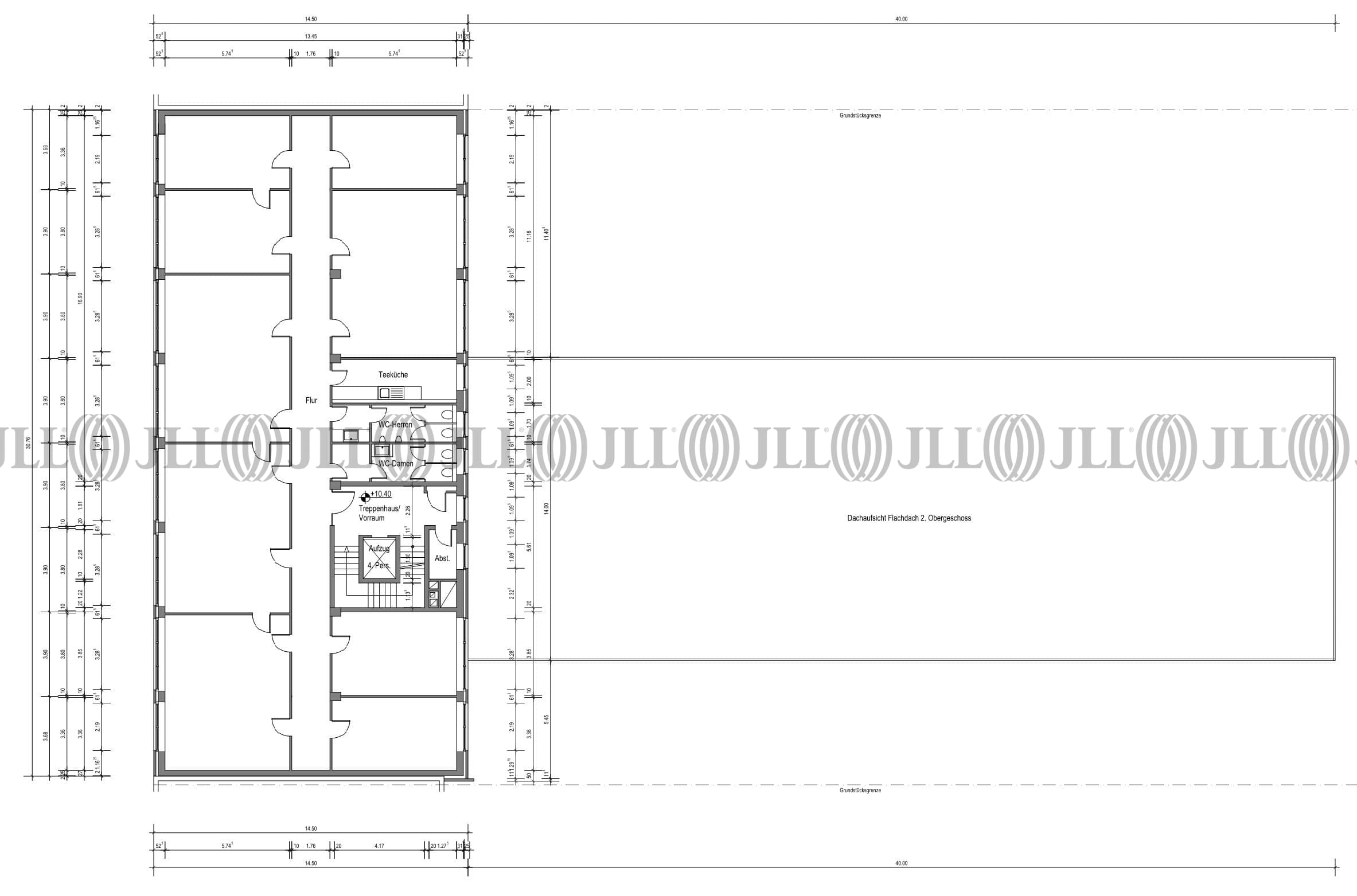
- Fläche450 - 3.370 m²
- VerfügbarkeitSofort
- Objekt
- Ausstattung
- Lage und Verkehrsanbindung
- Grundrisse
- Exposé herunterladen
- Ihr Kontakt
- Anfrage senden
Objekt
Das Bürogebäude in alter Industrielage wurde im Jahr 2013 kernsaniert. Es besticht durch seine enorme Deckenhöhe sowie die vielen Fenster und Dachluken, die den Flächen großzügige Helligkeit verleihen. Der Loft-Charakter unterstreicht den besonderen Charme.
Zertifizierungen
Energieausweis
Für diese Liegenschaft liegt ein Verbrauchsausweis vom 2019-08-04 vom Eigentümer/Vermieter vor. Die wesentlichen Energieträger der Liegenschaft sind Strom,Erdgas schwer. Der Endenergieverbrauch Strom beträgt 34.00 kWh/(m²*a). Der Endenergieverbrauch Wärme beträgt 76.00 kWh/(m²*a).Verfügbare Fläche
Lage und Verkehrsanbindung
Das Objekt ist im linksrheinischen Düsseldorf-Heerdt gelegen und verfügt über eine sehr gute Verkehrsanbindung in Richtung City sowie stadtauswärts. Die ehemals dort herrschende Industriebranche ist einem bunten Mix aus Bürogebäuden, Großhandel und Wohnnutzung gewichen.
- Flughafen, Düsseldorf, Fahrzeit: 12 min
- Bundesautobahn, A 52, Fahrzeit: 5 min
- Bundesautobahn, A 52, Fahrzeit: 5 min
- U-Bahn, Handweiser U75, Gehzeit: 2 min
- Hauptbahnhof, Düsseldorf, Fahrzeit: 12 min
Ihr Kontakt

Anna-Louisa Kratochvil
Ihr Kontakt


















