Büros
ID D1365Provisionsfrei
Aktualisiert
Büroimmobilie - Düsseldorf, Unterrath - D1365
Unterrath, 40468, Düsseldorf, Nordrhein-Westfalen
Kontaktieren Sie uns für den Preis
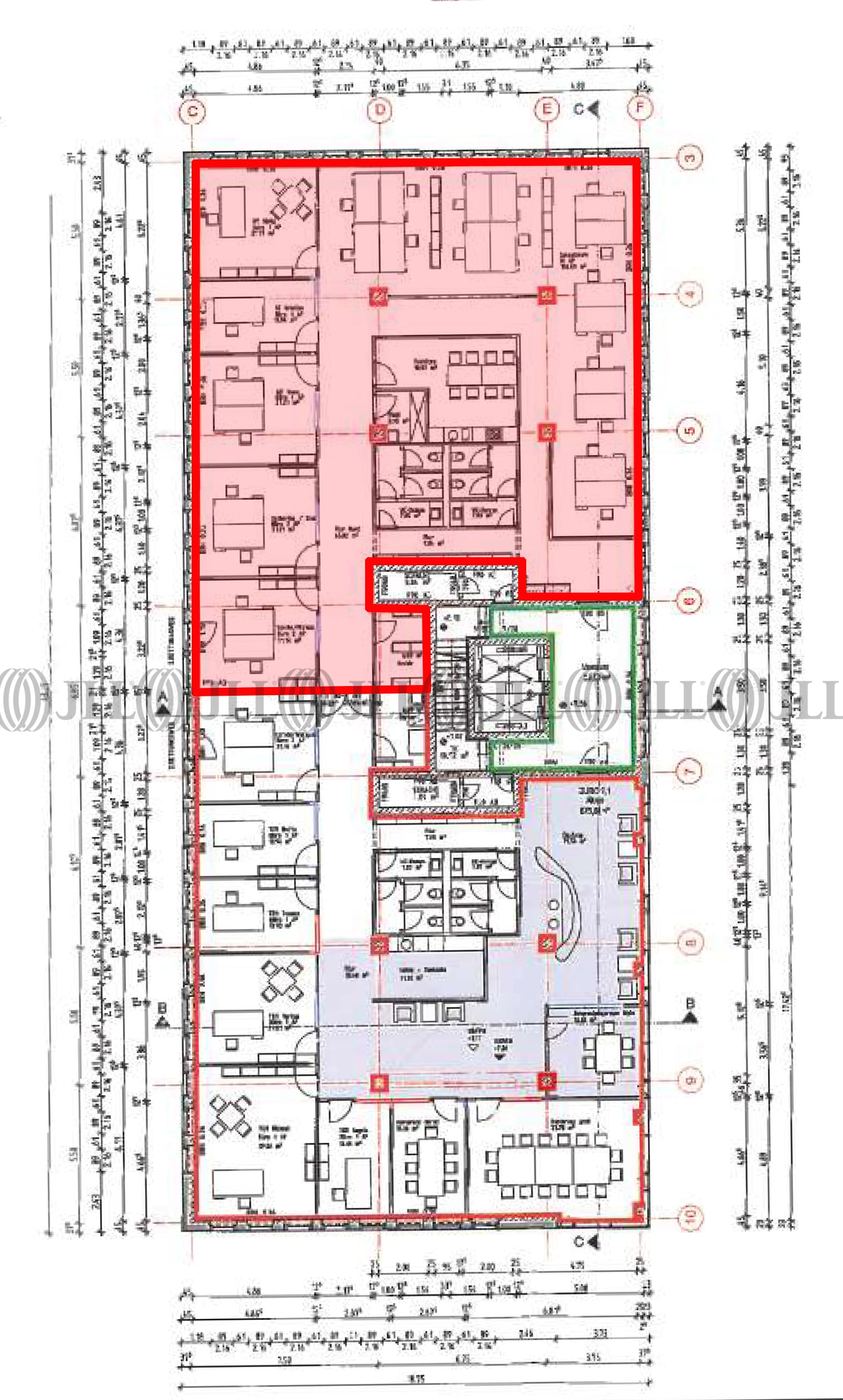
- Fläche341 - 701 m²
- VerfügbarkeitSofort
- Objekt
- Ausstattung
- Lage und Verkehrsanbindung
- Grundrisse
- Exposé herunterladen
- Ihr Kontakt
- Anfrage senden
Objekt
Das 7-geschossige „AirView“ überzeugt mit seinen fast 5.000 m² Bürofläche durch ausgewogene Proportionen und eine klare Linienführung. Die weithin sichtbaren Lichtkuben verleihen der Fassade aus glattem, hellem Naturstein ihre Struktur und geben dem Objekt seinen unverkennbaren Charakter. Die direkte Nachbarschaft zum neu angelegten Stadtgarten der Airport City bietet einen unverstellten Blick auf gartenarchitektonisch gestaltete Parkflächen mit viel Grün und schönem Baumbestand. Lichte Raumhöhen von 3 m bieten ein durchgängig großzügiges Raumgefühl.
Zertifizierungen
Energieausweis
DGNB: GoldFür diese Liegenschaft liegt ein Bedarfsausweis vom 16.04.2025 vom Eigentümer/Vermieter vor. Die wesentlichen Energieträger der Liegenschaft sind Erdgas schwer, Strom. Der Endenergiebedarf Strom beträgt 17.2 kWh/(m²*a). Der Endenergiebedarf Wärme beträgt 48.1 kWh/(m²*a).
Verfügbare Fläche
Lage und Verkehrsanbindung
Das Objekt befindet sich in direkter Nachbarschaft des Düsseldorfer Flughafens. Die sogenannte Airport-City verfügt über eine optimale Anbindung an das Autobahnnetz und den ÖPNV. Die Terminals mit ihrem breiten Angebot an Gastronomie und Einzelhandel sind fußläufig in wenigen Minuten erreichbar. Eine Tankstelle befindet sich in der Nähe.
- Flughafen, Düsseldorf, Fahrzeit: 5 min
- Bundesautobahn, A 44, Fahrzeit: 2 min
- Bundesautobahn, A 52, Fahrzeit: 5 min
- Bus, Flughafenverwaltung SB51, 721, 760, Gehzeit: 7 min
- S-Bahn, Flughafen Terminal S11, Gehzeit: 11 min
- Hauptbahnhof, Düsseldorf, Fahrzeit: 12 min
Ihr Kontakt

Anna-Louisa Kratochvil
Ihr Kontakt




