
Büros
ID D1319Büroimmobilie - Düsseldorf, Stadtmitte - D1319
Stadtmitte, 40212, Düsseldorf, Nordrhein-Westfalen
Provisionspflichtig: bei Anmietung 3 Netto-Monatsmieten zzgl. gesetzlicher Umsatzsteuer.** der Wert kann je nach Vertragslaufzeit variieren.
16 € / m²
- Fläche160 - 320 m²
- VerfügbarkeitSofort
- Objekt
- Ausstattung
- Lage und Verkehrsanbindung
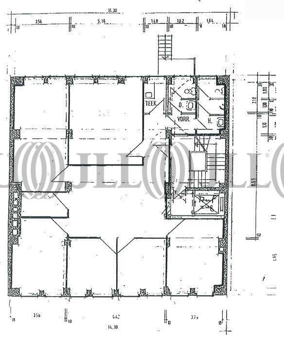
- Grundriss
- Exposé herunterladen
- Ihr Kontakt
- Anfrage senden
Objekt
Das 5-geschossige Büro- und Geschäftshaus verfügt über helle Büroräume, die dem Mieter aufgrund der variablen Wandstellung individuelle Nutzungsmöglichkeiten bieten.
Verfügbare Fläche
Lage und Verkehrsanbindung
Die Liegenschaft befindet sich an einer der werbewirksamsten Kreuzungen der Innenstadt. Restaurants sowie Geschäfte des täglichen Bedarfs sind in unmittelbarer Nähe fußläufig erreichbar. Dienstleister des täglichen Bedarfs befinden sich in der Nähe.
- Flughafen, Düsseldorf, Fahrzeit: 11 min
- Bundesautobahn, A 44, Fahrzeit: 8 min
- Bundesautobahn, A 52, Fahrzeit: 9 min
- Bundesautobahn, A 46, Fahrzeit: 10 min
- Bundesautobahn, A 57, Fahrzeit: 12 min
- Bus, Jacobistraße 737, 752, 754, SB55, Gehzeit: 2 min
- Hauptbahnhof, Düsseldorf, Fahrzeit: 7 min
- Straßenbahn/Tram, Jacobistraße 701, 703, 706, 707, 712, 713, 715, Gehzeit: 2 min
Ihr Kontakt

Nell Ewert
Ihr Kontakt