Büros
ID D1315Provisionsfrei
Büroimmobilie - Düsseldorf, Carlstadt - D1315
Carlstadt, 40213, Düsseldorf, Nordrhein-Westfalen
28 € / m²
- Fläche117 m²
- VerfügbarkeitSofort
- Objekt
- Ausstattung
- Lage und Verkehrsanbindung
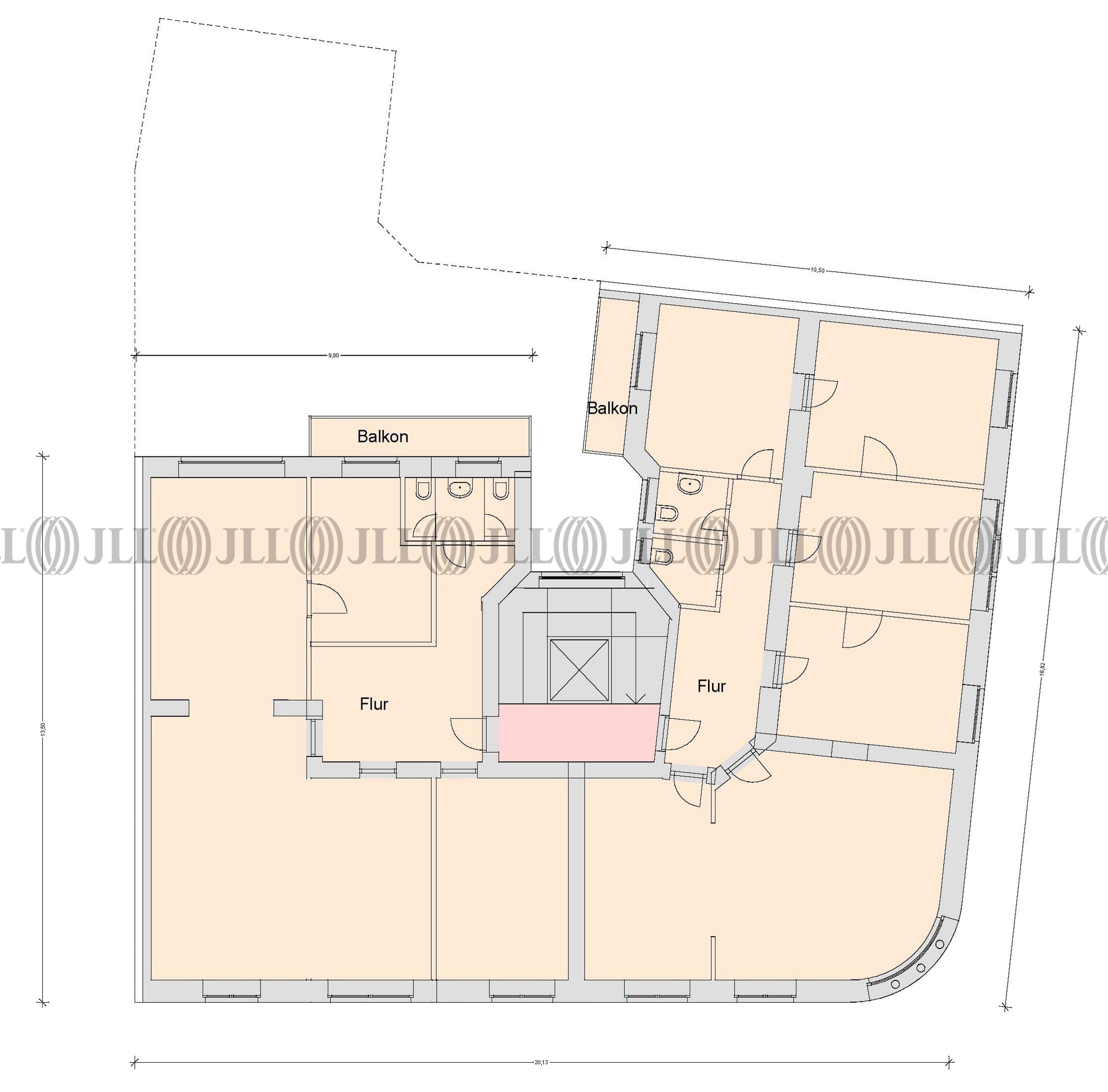
- Grundriss
- Exposé herunterladen
- Ihr Kontakt
- Anfrage senden
Objekt
Das 7-geschossige Gebäude verfügt über eine helle Steinfassade und wird durch einen repräsentativen Eingangsbereich erschlossen. Die Büroflächen bestechen durch lichtdurchfluteten Räume, besonders hervorzuheben sind weiterhin die hohen Decken mit aufwendigen Stuckarbeiten.
Verfügbare Fläche
Lage und Verkehrsanbindung
Das Objekt befindet sich in der belebten und kulturträchtigen Düsseldorfer Altstadt, gelegen zwischen der Luxusmeile Königsallee und der beliebten Rheinuferpromenade. Der Standort zeichnet sich besonders durch ein breites Angebot an Gastronomie und Einzelhandel aus und verbindet Altbau-Charme mit dem modernen Business-District. Das Objekt befindet sich in zentraler aber ruhiger Lage mit schöner Aussicht auf den Rhein und die gegenüberliegende Rheinkulisse.
- Flughafen, Düsseldorf, Fahrzeit: 15 min
- Bundesautobahn, A 52, Fahrzeit: 8 min
- Bundesautobahn, A 46, Fahrzeit: 9 min
- Bus, Maxplatz 726, Gehzeit: 4 min
- Hauptbahnhof, Düsseldorf, Fahrzeit: 7 min
- Straßenbahn/Tram, Landtag / Kniebrücke 706, 708, 709, Gehzeit: 8 min
Ihr Kontakt

Anna-Louisa Kratochvil
Ihr Kontakt
















