Büros
ID D1297Büroimmobilie - Ratingen - D1297
40878, Ratingen, Nordrhein-Westfalen
Provisionspflichtig: bei Anmietung 3 Netto-Monatsmieten zzgl. gesetzlicher Umsatzsteuer.** der Wert kann je nach Vertragslaufzeit variieren.
13,45 € - 13,80 € / m²
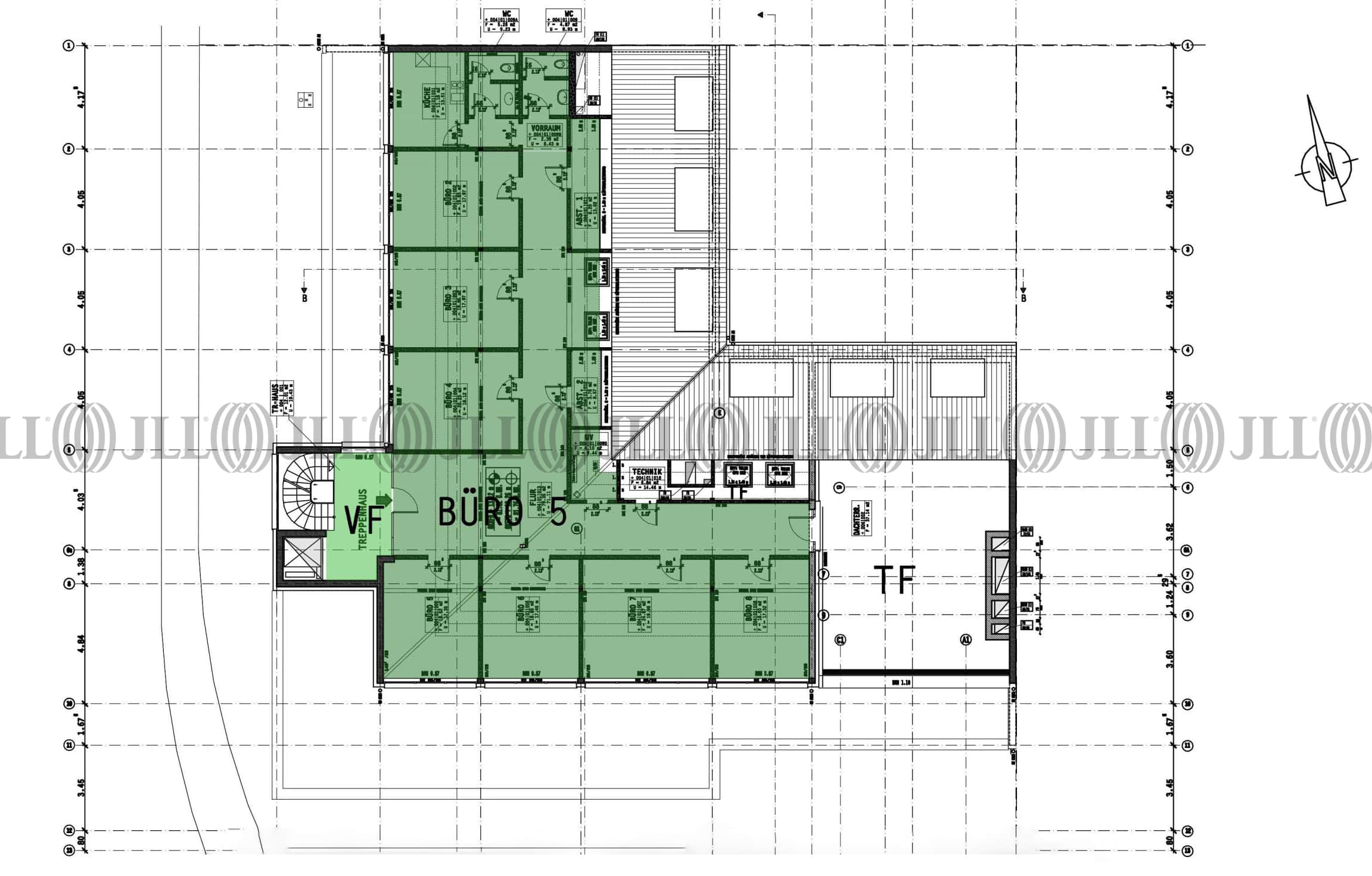
- Fläche230 - 909 m²
- VerfügbarkeitSofort
- Objekt
- Ausstattung
- Lage und Verkehrsanbindung
- Grundrisse
- Exposé herunterladen
- Ihr Kontakt
- Anfrage senden
Objekt
Die 5-geschossige Liegenschaft, welche 2013 errichtet wurde, verfügt über einen ansprechenden und repräsentativen Eingangsbereich. Die lichtdurchfluteten Büroflächen lassen sich flexibel nach Mieterwunsch anpassen und werden hochwertig ausgestattet.
Zertifizierungen
Energieausweis
Für diese Liegenschaft liegt ein Verbrauchsausweis vom 19.12.2025 vom Eigentümer/Vermieter vor. Die wesentlichen Energieträger der Liegenschaft sind Fernwärme, KWK, Nahwärme. Der Endenergieverbrauch Strom beträgt 14 kWh/(m²*a). Der Endenergieverbrauch Wärme beträgt 65 kWh/(m²*a).Verfügbare Fläche
Lage und Verkehrsanbindung
Das Objekt befindet sich an einem zukunftsorientierten Büro- und Wohnstandort in Ratingen-Ost. Hier haben sich bereits diverse internationale und namhafte Firmen wie Mitsubishi Electric und Esprit niedergelassen. Die nahe gelegenen Autobahnen A 44 und A 52 sowie die S-Bahnstation binden das Objekt ideal an Düsseldorf sowie das Ruhrgebiet an.
- Bahnhof, Ratingen-Ost S6, Gehzeit: 5 min
- Bus, Freiligrathring DL1, O16, 753, 757, 759, 760, 773, Gehzeit: 2 min
- Bundesautobahn, A 44, Fahrzeit: 5 min
- Bundesautobahn, A 3, Fahrzeit: 6 min
- Flughafen, Düsseldorf, Fahrzeit: 11 min
Ihr Kontakt

Anna-Louisa Kratochvil
Ihr Kontakt








