Büros
ID D1293Premium JLL
Provisionsfrei
Büroimmobilie - Chemnitz, Hilbersdorf - D1293
Hilbersdorf, 09130, Chemnitz, Sachsen
Kontaktieren Sie uns für den Preis
- Fläche107 m²
- VerfügbarkeitSofort
- Objekt
- Ausstattung
- Lage und Verkehrsanbindung
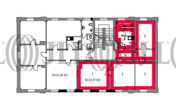
- Grundriss
- Exposé herunterladen
- Ihr Kontakt
- Anfrage senden
Objekt
Die beiden Bürohäuser der Sachsen-Allee befinden sich linker und rechter Hand neben dem Centereingang. Hier werden Sie gesehen! Die Büroflächen lassen sich flexibel nach Mieterwunsch aufteilen und werden in Absprache mit dem Mieter renoviert und mit einem neuen Bodenbelag versehen übergeben.
Zertifizierungen
Energieausweis
Für diese Liegenschaft liegt ein Verbrauchsausweis vom 10.05.2019 vom Eigentümer/Vermieter vor. Der wesentliche Energieträger der Liegenschaft ist Fernwärme. Der Endenergieverbrauch Strom beträgt 63.6 kWh/(m²*a). Der Endenergieverbrauch Wärme beträgt 31.4 kWh/(m²*a).Verfügbare Fläche
Lage und Verkehrsanbindung
Die im nördlichen Teil von Chemnitz direkt am Innenstadtring gelegene Sachsen-Allee wurde im Jahre 1997 eröffnet. Vor dem Haupteingang des bekannten Centers befinden sich die beiden Bürogebäude direkt am Thomas-Mann-Platz. Im Center sowie in den umliegenden Straßen findet man alle Geschäfte des täglichen Bedarfs. Ein umfangreiches Gastronomieangebot für jeden Geschmack rundet das Angebot ab. Dienstleister des täglichen Bedarfs befinden sich in der Nähe.
- Bus, Bushaltestelle Thomas-Mann-Platz Buslinien 51, 640, 642, 705, 710, Gehzeit: 1 min
- Bundesautobahn, A 4, Fahrzeit: 7 min
- Bundesautobahn, A 72, Fahrzeit: 10 min
- Flughafen, Dresden, Fahrzeit: 45 min
Ihr Kontakt

Bernd Giesbert
Ihr Kontakt




