Büros
ID D1269Büroimmobilie - Ratingen - D1269
40472, Ratingen, Nordrhein-Westfalen
Provisionspflichtig: bei Anmietung 3 Netto-Monatsmieten zzgl. gesetzlicher Umsatzsteuer.** der Wert kann je nach Vertragslaufzeit variieren.
12 € / m²
- Fläche38 - 1.183 m²
- VerfügbarkeitSofort
- Objekt
- Ausstattung
- Lage und Verkehrsanbindung
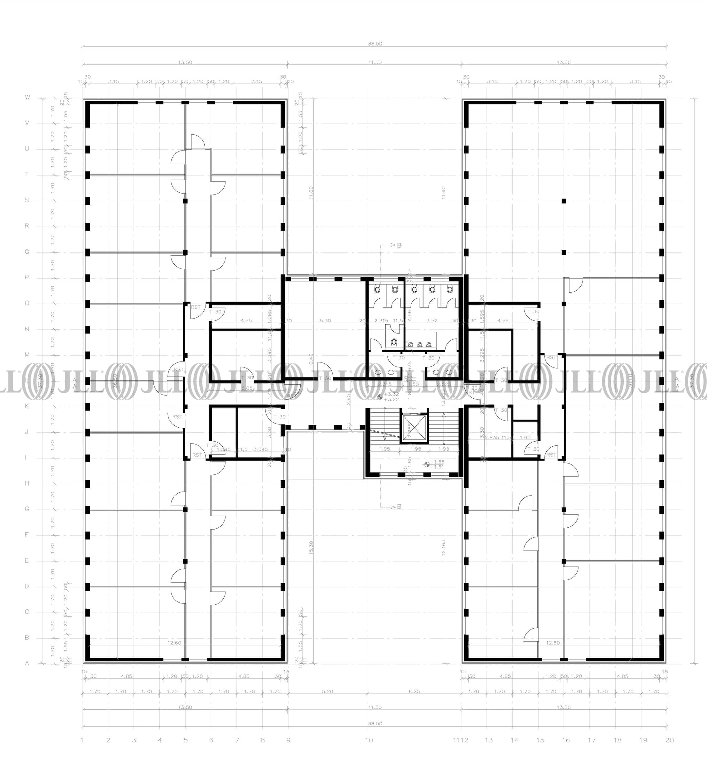
- Grundriss
- Exposé herunterladen
- Ihr Kontakt
- Anfrage senden
Objekt
Das 3-geschossige Bürogebäude verfügt über moderne Büroflächen, die eine flexible Flächengestaltung zulassen. Ein separater Meetingraum mit Wirtschaftsräumen steht den Mietern zur Verfügung.
Zertifizierungen
Energieausweis
Für diese Liegenschaft liegt ein Verbrauchsausweis vom 2015-11-25 vom Eigentümer/Vermieter vor. Der wesentliche Energieträger der Liegenschaft ist Fernwärme. Der Endenergieverbrauch Strom beträgt 42.10 kWh/(m²*a). Der Endenergieverbrauch Wärme beträgt 50.10 kWh/(m²*a).Verfügbare Fläche
Lage und Verkehrsanbindung
- Hauptbahnhof, Düsseldorf, Fahrzeit: 22 min
- S-Bahn, Ratingen-Ost S6, Fahrzeit: 13 min
- Straßenbahn/Tram, Wahlerstraße / JVA 701, Gehzeit: 8 min
- Bundesautobahn, A 52, Fahrzeit: 6 min
- Bundesautobahn, A 44, Fahrzeit: 7 min
- Flughafen, Düsseldorf, Fahrzeit: 10 min
Ihr Kontakt

Anna-Louisa Kratochvil
Ihr Kontakt







