Büros
ID D1260Aktualisiert
Büroimmobilie - Essen, Südviertel - D1260
Südviertel, 45128, Essen, Nordrhein-Westfalen
Provisionspflichtig: bei Anmietung 3 Netto-Monatsmieten zzgl. gesetzlicher Umsatzsteuer.** der Wert kann je nach Vertragslaufzeit variieren.
12,50 € / m²
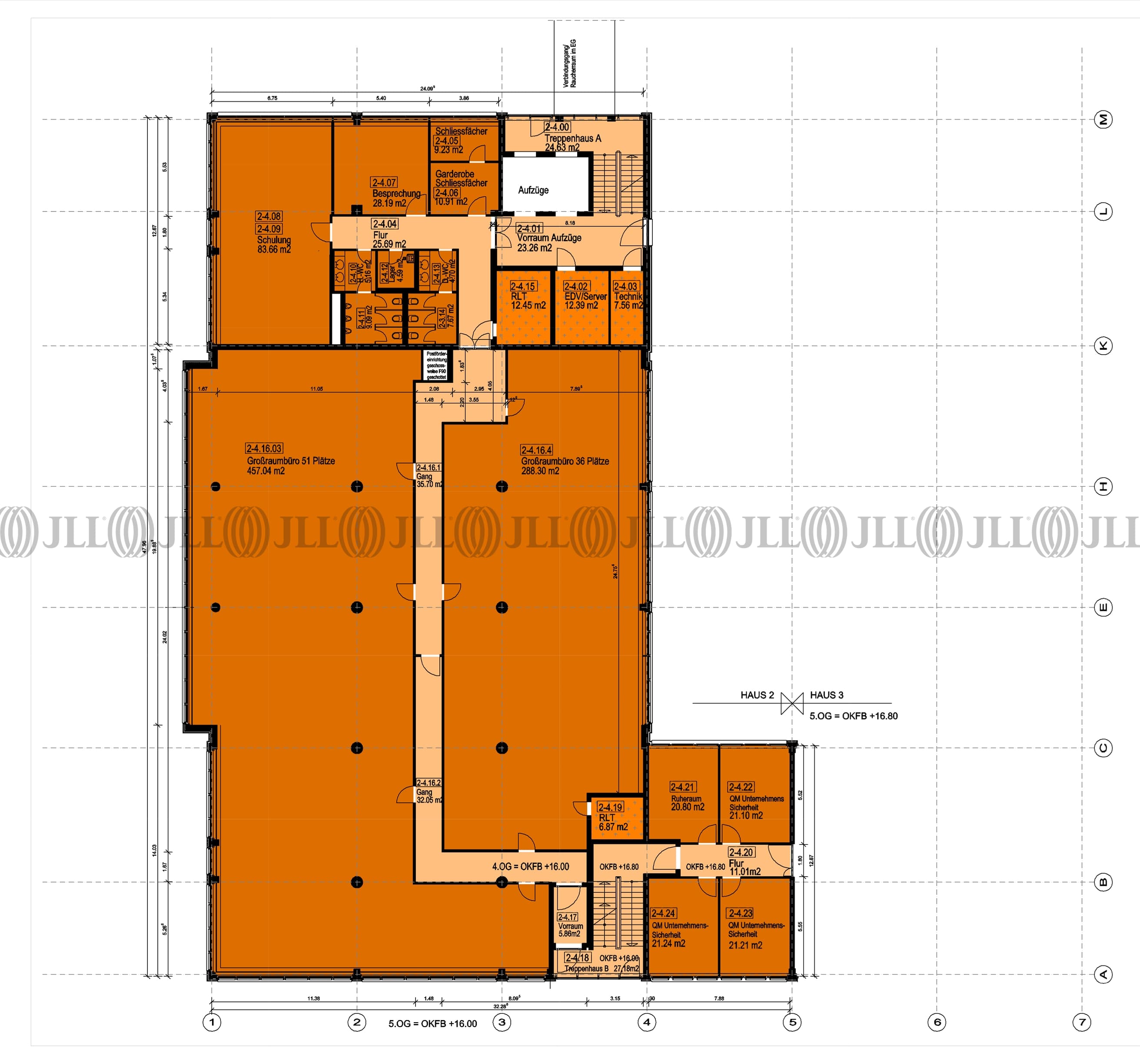
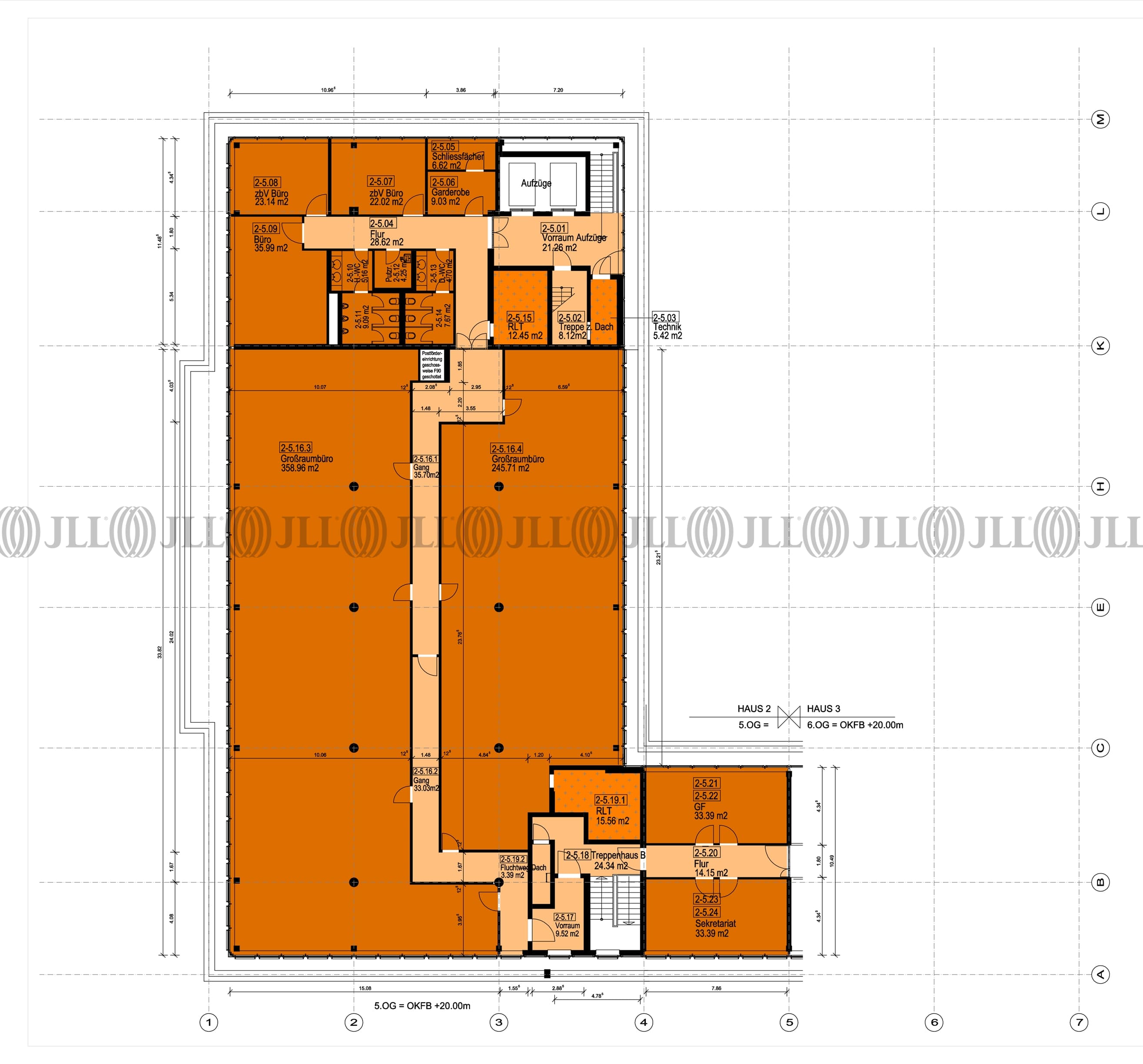
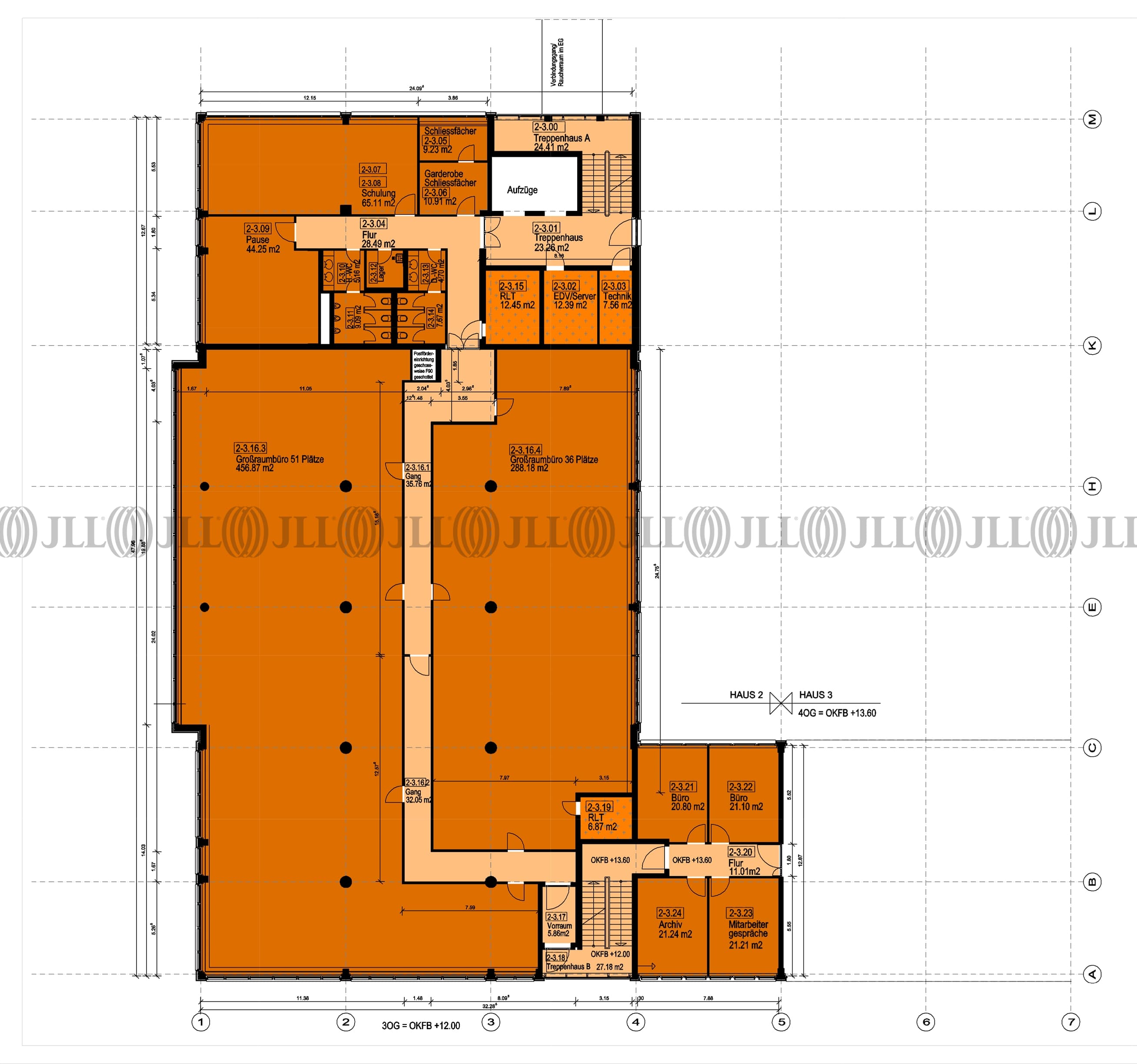
- Fläche449 - 5.784 m²
- VerfügbarkeitSofort
- Objekt
- Ausstattung
- Lage und Verkehrsanbindung
- Grundrisse
- Exposé herunterladen
- Ihr Kontakt
- Anfrage senden
Objekt
Das repräsentative Büroobjekt liegt in unmittelbarer Nachbarschaft zur bekannten Einkaufs- und Gastronomiemeile Rüttenscheider Straße. Die Liegenschaft befindet sich in einem äußerst gepflegten Zustand und überzeugt durch ihre hochwertige Ausstattung. Die Aufteilung der Mietflächen kann in Absprache mit dem zukünftigen Mieter angepasst werden.
Zertifizierungen
Energieausweis
WIREDSCORE: CertifiedFür diese Liegenschaft liegt ein Bedarfsausweis vom 28.11.2025 vom Eigentümer/Vermieter vor. Die wesentlichen Energieträger der Liegenschaft sind Fernwärme, Strom. Der Endenergiebedarf Strom beträgt 31,6 kWh/(m²*a). Der Endenergiebedarf Wärme beträgt 124,8 kWh/(m²*a).
Verfügbare Fläche
Lage und Verkehrsanbindung
Die Büromarktzone City umfasst die Innenstadt, das Entwicklungsgebiet Grüne Mitte und insbesondere die Fußgängerzone Essens. Sie wird im Norden durch den Viehofer Platz und im Osten durch Bürobebauung entlang der Schützenbahn begrenzt. Die City grenzt direkt an die Büromarktzonen Weststadt und das Südviertel. Die Abgrenzung erfolgt durch die Hindenburgstraße bzw. den Limbecker Platz im Westen sowie die Bahnschienen des Essener Hauptbahnhofs im Süden. Aufgrund der zentralen Lage mit ausgezeichneter ÖPNV-Anbindung und Infrastruktur, dazu repräsentative Bestandsbauten haben sich zahlreiche innovative, kapitalkräftige Firmen aller Branchen angesiedelt. Zu den markantesten Gebäuden zählen die Hochhäuser an der Schützenbahn und Hollestraße sowie die Neubauten in der Grünen Mitte, auf dem Gelände des ehemaligen Güterbahnhofs.
- Flughafen, Düsseldorf, Fahrzeit: 20 min
- Bundesautobahn, A 40, Fahrzeit: 3 min
- Bundesautobahn, A 52, Fahrzeit: 7 min
- Hauptbahnhof, Essen, Fahrzeit: 4 min
- U-Bahn, Philharmonie U11, Gehzeit: 7 min
- Straßenbahn/Tram, Philharmonie 108, Gehzeit: 7 min
- Bus, Cäcilienstraße 145, 146, Gehzeit: 5 min
Ihr Kontakt

Martin Jahnke
Ihr Kontakt












