Büros
ID D1256Büroimmobilie - Düsseldorf, Stadtmitte - D1256
Stadtmitte, 40212, Düsseldorf, Nordrhein-Westfalen
Provisionspflichtig: bei Anmietung 3 Netto-Monatsmieten zzgl. gesetzlicher Umsatzsteuer.** der Wert kann je nach Vertragslaufzeit variieren.
Kontaktieren Sie uns für den Preis
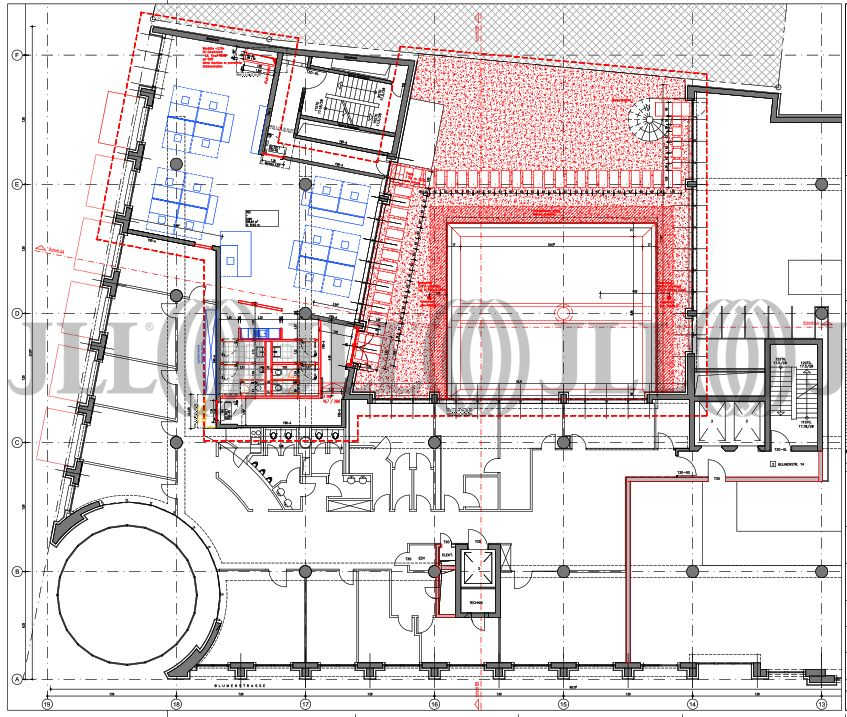
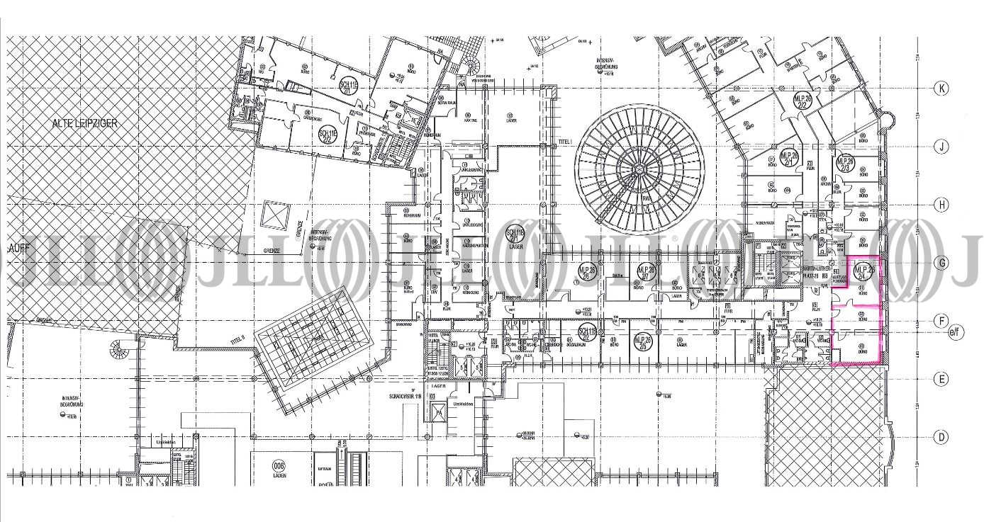
- Fläche233 - 1.501 m²
- VerfügbarkeitSofort
- Objekt
- Ausstattung
- Lage und Verkehrsanbindung
- Grundrisse
- Exposé herunterladen
- Ihr Kontakt
- Anfrage senden
Objekt
Die Schadow Arkaden, die weit über die Düsseldorfer Stadtgrenze als attraktives Shopping-Center bekannt sind, verfügen neben Ladenflächen über repräsentative Büroflächen mit separaten Eingängen. Die hellen Flächen sind effizient geschnitten und bieten eine angenehme Arbeitsatmosphäre.
Verfügbare Fläche
Lage und Verkehrsanbindung
Das Objekt befindet sich in renommierter Lage mitten im Düsseldorfer CBD. Der CBD wird im Süden vom Gap 15 und im Norden vom Dreischeibenhaus begrenzt. Die Berliner Allee sowie Kasernenstraße / Heine-Allee bilden östlich und westlich die Grenze. Herzstück ist somit die berühmte Königsallee. Zahlreiche namhafte Unternehmen am Standort profitieren von der idealen ÖPNV-Anbindung sowie der hervorragenden Infrastruktur in Bezug auf die tägliche Nahversorgung.
- Hauptbahnhof, Düsseldorf, Fahrzeit: 7 min
- U-Bahn, Schadowstraße U71, U72, U73, U83, Gehzeit: 2 min
- Straßenbahn/Tram, Schadowstraße 701, 705, 706, Gehzeit: 2 min
- Bus, Heinrich-Heine-Allee SB50, 780, 782, 785, 805, 817, Gehzeit: 3 min
- Bundesautobahn, A 46, Fahrzeit: 8 min
- Bundesautobahn, A 44, Fahrzeit: 9 min
- Flughafen, Düsseldorf, Fahrzeit: 10 min
Ihr Kontakt

Anna-Louisa Kratochvil
Ihr Kontakt








