Büros
ID D1251Provisionsfrei
Aktualisiert
Büroimmobilie - Düsseldorf, Heerdt - D1251
Heerdt, 40549, Düsseldorf, Nordrhein-Westfalen
8,88 € / m²
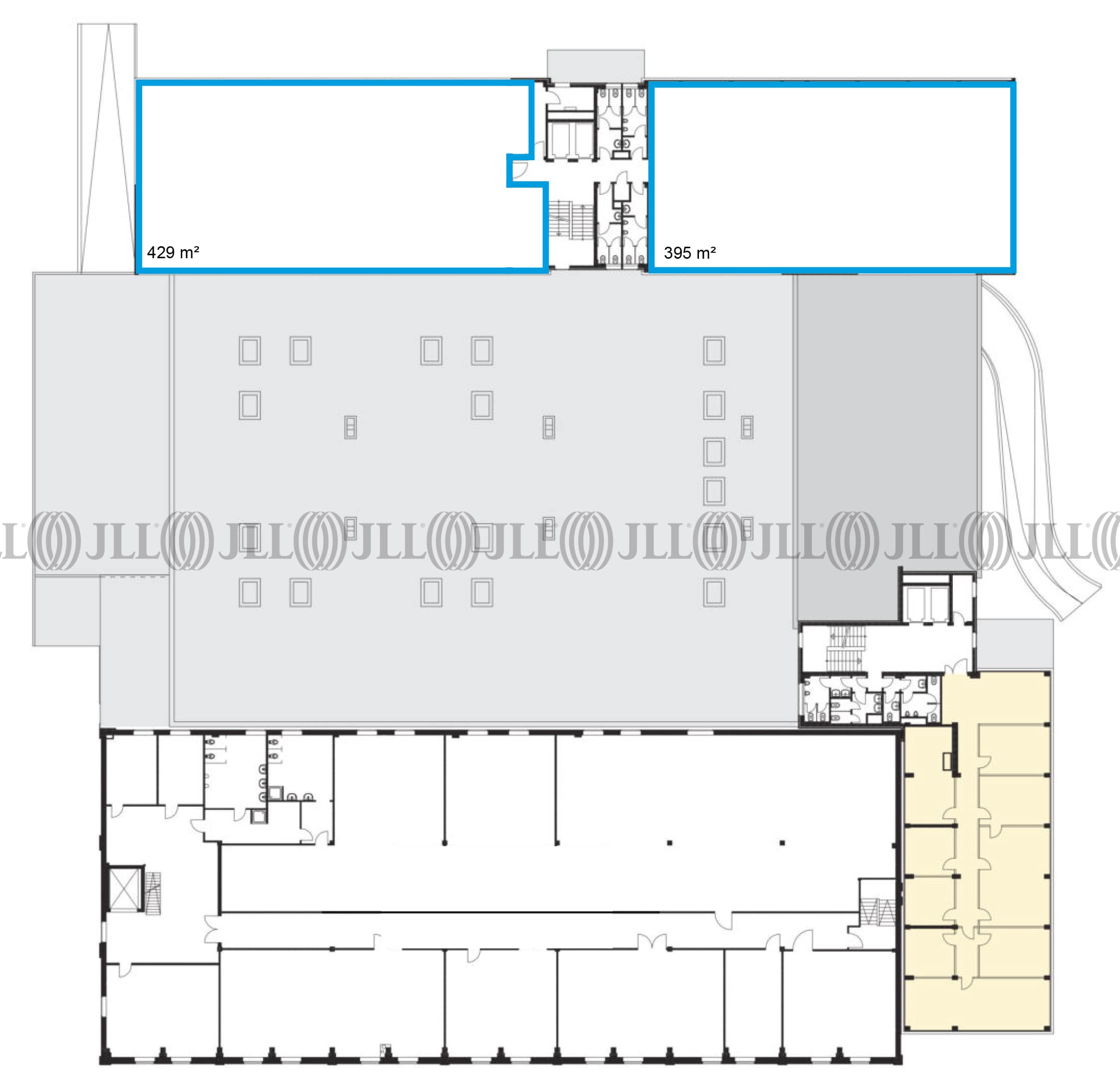
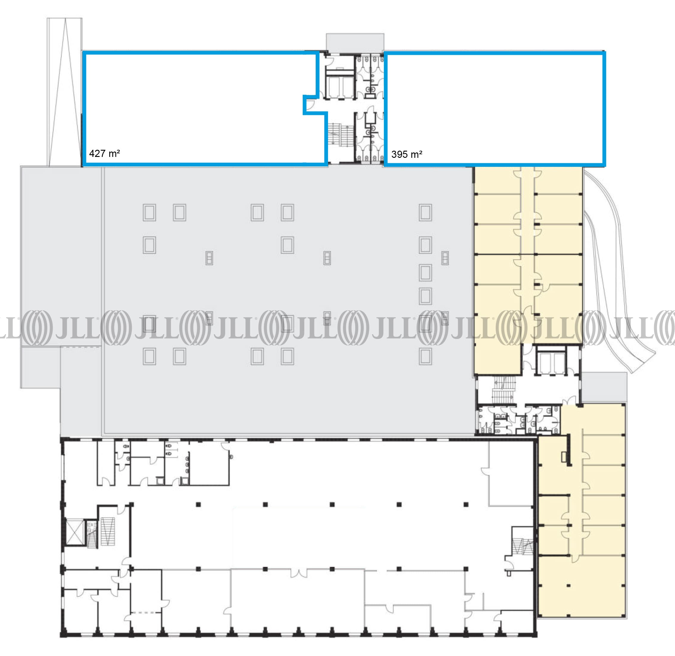
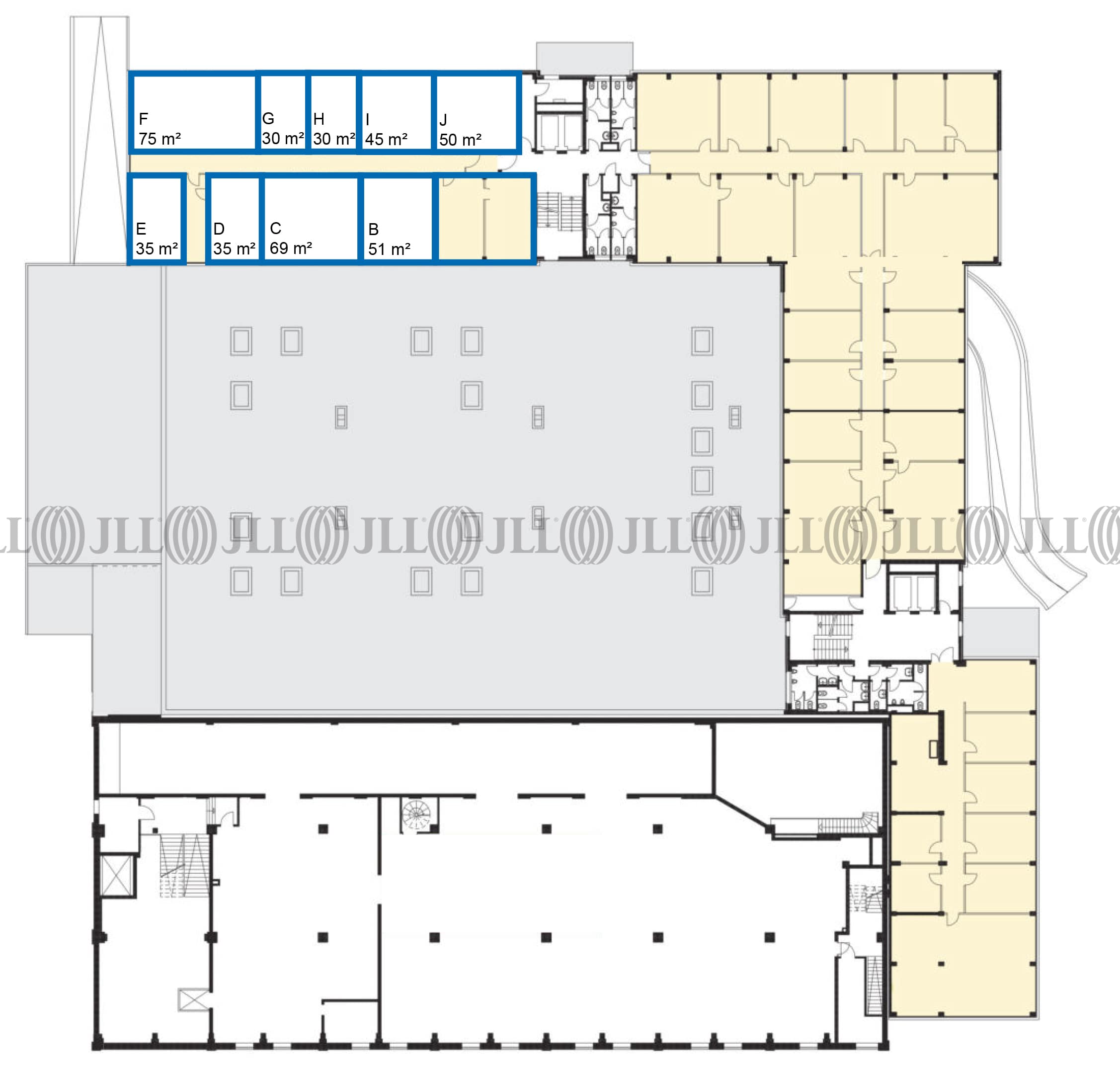
- Fläche395 - 1.653 m²
- VerfügbarkeitSofort
- Objekt
- Ausstattung
- Lage und Verkehrsanbindung
- Grundrisse
- Exposé herunterladen
- Ihr Kontakt
- Anfrage senden
Objekt
Das 4-geschossige Gebäude weist durch die Mischnutzung von Lager- und Büroflächen eine hohe Vielfalt auf. Die hellen und effizient geschnittenen Flächen werden über einen zentralen Eingangsbereich erschlossen und in Absprache mit dem zukünftigen Mieter ausgestattet sowie renoviert übergeben.
Zertifizierungen
Energieausweis
Für diese Liegenschaft liegt ein Verbrauchsausweis vom 2014-07-23 vom Eigentümer/Vermieter vor. Die wesentlichen Energieträger der Liegenschaft sind Strom,Erdgas schwer. Der Endenergieverbrauch Strom beträgt 37.00 kWh/(m²*a). Der Endenergieverbrauch Wärme beträgt 135.00 kWh/(m²*a).Verfügbare Fläche
Lage und Verkehrsanbindung
Das Objekt ist im linksrheinischen Düsseldorf-Heerdt gelegen und verfügt über eine sehr gute Verkehrsanbindung in Richtung City sowie stadtauswärts. Die ehemals dort herrschende Industriebranche ist einem bunten Mix aus Bürogebäuden, Großhandel und Wohnnutzung gewichen.
- Flughafen, Düsseldorf, Fahrzeit: 17 min
- Bundesautobahn, A 52, Fahrzeit: 6 min
- Bundesautobahn, A 57, Fahrzeit: 8 min
- Hauptbahnhof, Düsseldorf, Fahrzeit: 17 min
- U-Bahn, Wiesenstraße U75, Gehzeit: 3 min
- Bus, Wiesenstraße 805, 833, 862, 863, Gehzeit: 3 min
Ihr Kontakt

Janice Lehmann
Ihr Kontakt











