Büros
ID D1239Büroimmobilie - Düsseldorf, Heerdt - D1239
Heerdt, 40549, Düsseldorf, Nordrhein-Westfalen
Provisionspflichtig: bei Anmietung 3 Netto-Monatsmieten zzgl. gesetzlicher Umsatzsteuer.** der Wert kann je nach Vertragslaufzeit variieren.
8,88 € - 10 € / m²
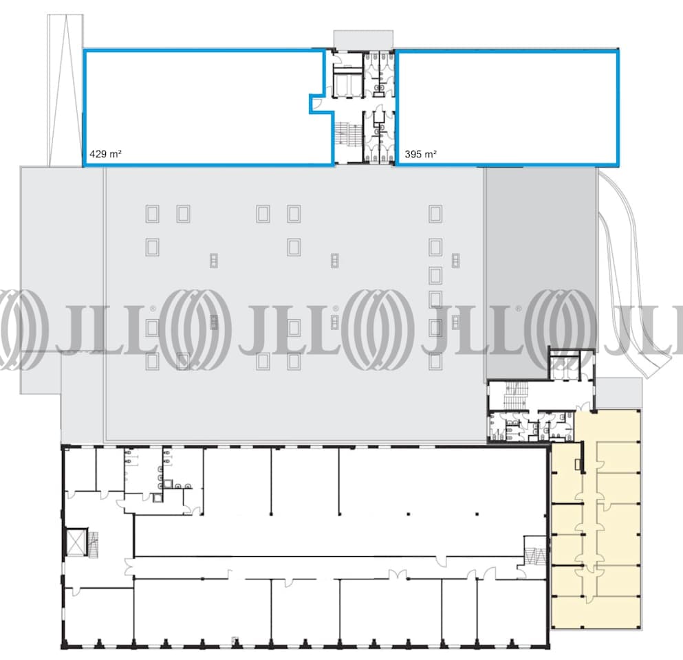
- Fläche128 - 3.230 m²
- VerfügbarkeitSofort
- Objekt
- Ausstattung
- Lage und Verkehrsanbindung
- Grundrisse
- Exposé herunterladen
- Ihr Kontakt
- Anfrage senden
Objekt
Der Gebäudekomplex bietet auf seinen vier Etagen eine ansprechende Kombination aus Büro-, Service- und Hallenflächen in unterschiedlichen Größen. Im Jahre 2010 wurden umfangreiche Modernisierungsmaßnahmen umgesetzt, die der Attraktivität des Gebäudes zu Gute kamen.
Zertifizierungen
Energieausweis
Für diese Liegenschaft liegt ein Verbrauchsausweis vom 2014-07-23 vom Eigentümer/Vermieter vor. Die wesentlichen Energieträger der Liegenschaft sind Erdgas schwer,Strom. Der Endenergieverbrauch Strom beträgt 68.00 kWh/(m²*a). Der Endenergieverbrauch Wärme beträgt 128.00 kWh/(m²*a).Verfügbare Fläche
Lage und Verkehrsanbindung
Das Objekt ist im linksrheinischen Düsseldorf-Heerdt gelegen und verfügt über eine sehr gute Verkehrsanbindung in Richtung City sowie stadtauswärts. Die ehemals dort herrschende Industriebranche ist einem bunten Mix aus Bürogebäuden, Großhandel und Wohnnutzung gewichen. Eine Tankstelle befindet sich in der Nähe.
- Flughafen, Düsseldorf, Fahrzeit: 17 min
- Bundesautobahn, A 52, Fahrzeit: 6 min
- Bundesautobahn, A 57, Fahrzeit: 8 min
- Hauptbahnhof, Düsseldorf, Fahrzeit: 17 min
- U-Bahn, Wiesenstraße U75, Gehzeit: 3 min
- Bus, Wiesenstraße 805, 833, 862, 863, Gehzeit: 3 min
Ihr Kontakt

Anna-Louisa Kratochvil
Ihr Kontakt









