Büros
ID D1225Büroimmobilie - Düsseldorf, Stadtmitte - D1225
Stadtmitte, 40212, Düsseldorf, Nordrhein-Westfalen
Provisionspflichtig: bei Anmietung 3 Netto-Monatsmieten zzgl. gesetzlicher Umsatzsteuer.** der Wert kann je nach Vertragslaufzeit variieren.
26,50 € / m²
- Fläche315 m²
- VerfügbarkeitAuf Anfrage
- Objekt
- Ausstattung
- Lage und Verkehrsanbindung
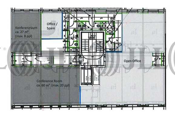
- Grundriss
- Exposé herunterladen
- Ihr Kontakt
- Anfrage senden
Objekt
Das 6-geschossige Büro- und Geschäftshaus verfügt über eine äußerst hochwertige Fassade. Die Büroflächen weisen ebenso wie das Objekt einen sehr hohen Qualitätsstandard auf. Durch bodentiefe Fenster, Akustikdecken und hochwertige Oberflächen entsteht eine sehr repräsentative Atmosphäre.
Verfügbare Fläche
Lage und Verkehrsanbindung
Das Objekt befindet sich in renommierter Lage mitten im Düsseldorfer CBD. Der CBD wird im Süden vom Gap 15 und im Norden vom Dreischeibenhaus begrenzt. Die Berliner Allee sowie Kasernenstraße / Heine-Allee bilden östlich und westlich die Grenze. Herzstück ist somit die berühmte Königsallee. Zahlreiche namhafte Unternehmen am Standort profitieren von der idealen ÖPNV-Anbindung sowie der hervorragenden Infrastruktur in Bezug auf die tägliche Nahversorgung.
- Hauptbahnhof, Düsseldorf, Fahrzeit: 6 min
- U-Bahn, Steinstraße U70, U75, U76, U77, U78, U79, Gehzeit: 3 min
- Straßenbahn/Tram, Steinstraße 701, 705, 706, Gehzeit: 3 min
- Bus, Steinstraße SB50, 780, 782, 785, 805, 817, Gehzeit: 3 min
- Bundesautobahn, A 52, Fahrzeit: 9 min
- Bundesautobahn, A 46, Fahrzeit: 10 min
- Flughafen, Düsseldorf, Fahrzeit: 15 min
Ihr Kontakt

Anna-Louisa Kratochvil
Ihr Kontakt











