Büros
ID D1223Büroimmobilie - Düsseldorf, Unterbilk - D1223
Unterbilk, 40219, Düsseldorf, Nordrhein-Westfalen
Provisionspflichtig: bei Anmietung 3 Netto-Monatsmieten zzgl. gesetzlicher Umsatzsteuer.** der Wert kann je nach Vertragslaufzeit variieren.
27 € - 27,50 € / m²
- Fläche818 - 16.341 m²
- VerfügbarkeitSofort
- Objekt
- Ausstattung
- Lage und Verkehrsanbindung
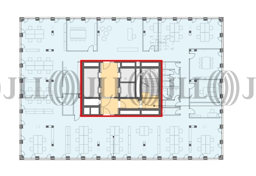
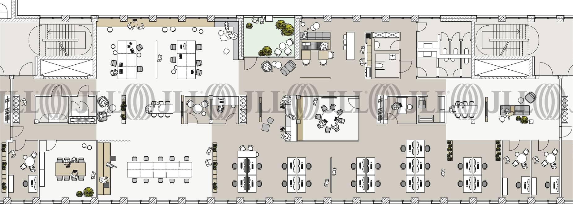
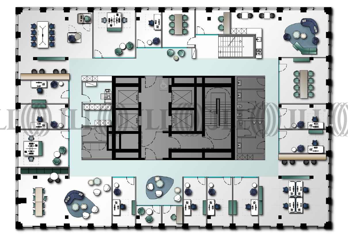
- Grundrisse
- Exposé herunterladen
- Ihr Kontakt
- Anfrage senden
Objekt
Das Sockelgebäude mit dem integrierten Hochhaus in urbaner Struktur wird von öffentlichen Einrichtungen und Regierungsbauten in unmittelbarer Nähe des PANDION OFFICEHOME Rise ergänzt. In der Nachbarschaft zum Landtag Nordrhein-Westfalens und seinen ansässigen Ministerien entsteht ein hochwertiger Neubau mit flexiblen Grundrissen sowie einem phänomenalen Blick in den Medienhafen.
Zertifizierungen
Energieausweis
DGNB: Gold WIREDSCORE: PlatinumVerfügbare Fläche
Lage und Verkehrsanbindung
Die Liegenschaft befindet sich im Düsseldorfer Regierungsviertel in direkter Nachbarschaft des Landtages, Medienhafens und der Altstadt. Durch die Rheinkniebrücke und den Rheinufertunnel ist eine perfekte Anbindung an die Innenstadt und die Region gegeben.
- Flughafen, Düsseldorf, Fahrzeit: 10 min
- Bundesautobahn, A 52, Fahrzeit: 6 min
- Bundesautobahn, A 46, Fahrzeit: 8 min
- Hauptbahnhof, Düsseldorf, Fahrzeit: 7 min
- Straßenbahn/Tram, Stadttor 706, 709, Gehzeit: 5 min
- Bus, Stadttor 726, 732, Gehzeit: 5 min
Ihr Kontakt

Richard Steimel
Ihr Kontakt
















