Büros
ID D1215Büroimmobilie - Düsseldorf, Stadtmitte - D1215
Stadtmitte, 40213, Düsseldorf, Nordrhein-Westfalen
Provisionspflichtig: bei Anmietung 3 Netto-Monatsmieten zzgl. gesetzlicher Umsatzsteuer.** der Wert kann je nach Vertragslaufzeit variieren.
28,50 € / m²
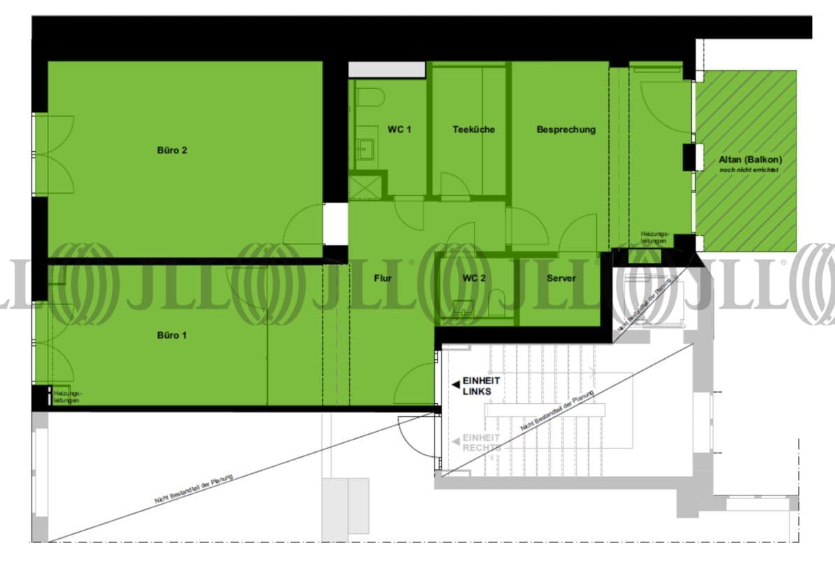
- Fläche100 m²
- VerfügbarkeitSofort
- Objekt
- Ausstattung
- Lage und Verkehrsanbindung
- Grundriss
- Exposé herunterladen
- Ihr Kontakt
- Anfrage senden
Objekt
Die 6-geschossige Liegenschaft verfügt über einen repräsentativen Eingangsbereich. Die hellen Büro- / Praxisflächen sind hochwertig ausgestattet und bieten flexible Nutzungsmöglichkeiten.
Zertifizierungen
Energieausweis
Für diese Liegenschaft liegt ein Bedarfsausweis vom 2015-04-10 vom Eigentümer/Vermieter vor. Der wesentliche Energieträger der Liegenschaft ist Strom. Der Endenergiebedarf Strom beträgt 31.10 kWh/(m²*a). Der Endenergiebedarf Wärme beträgt 160.60 kWh/(m²*a).Verfügbare Fläche
Lage und Verkehrsanbindung
Die Liegenschaft befindet sich im Herzen der Düsseldorfer Innenstadt, in unmittelbarer Nähe der Einkaufsmeile Schadowstraße. Ein breites Angebot an Gastronomie und Einzelhandel zeichnen den Standort aus. Die Königsallee sowie die Altstadt sind in wenigen Gehminuten erreichbar. Des Weiteren überzeugt dieser Standort von einer sehr guten ÖPNV-Anbindung. Dienstleister des täglichen Bedarfs befinden sich in der Nähe.
- Flughafen, Düsseldorf, Fahrzeit: 11 min
- Bundesautobahn, A 52, Fahrzeit: 8 min
- Bundesautobahn, A 44, Fahrzeit: 8 min
- Hauptbahnhof, Düsseldorf Hbf, Fahrzeit: 7 min
- U-Bahn, Heinrich-Heine-Allee U70, U71, U72, U73, U74, U75, U76, U77, U78, U79, Gehzeit: 1 min
- Bus, Heinrich-Heine-Allee 780, 782, 785, 805, 817, Gehzeit: 3 min
Ihr Kontakt

Anna-Louisa Kratochvil
Ihr Kontakt







