Büros
ID D1197Büroimmobilie - Düsseldorf, Pempelfort - D1197
Pempelfort, 40211, Düsseldorf, Nordrhein-Westfalen
Provisionspflichtig: bei Anmietung 3 Netto-Monatsmieten zzgl. gesetzlicher Umsatzsteuer.** der Wert kann je nach Vertragslaufzeit variieren.
18 € / m²
- Fläche346 - 718 m²
- VerfügbarkeitAuf Anfrage
- Objekt
- Ausstattung
- Lage und Verkehrsanbindung
- Grundrisse
- Exposé herunterladen
- Ihr Kontakt
- Anfrage senden
Objekt
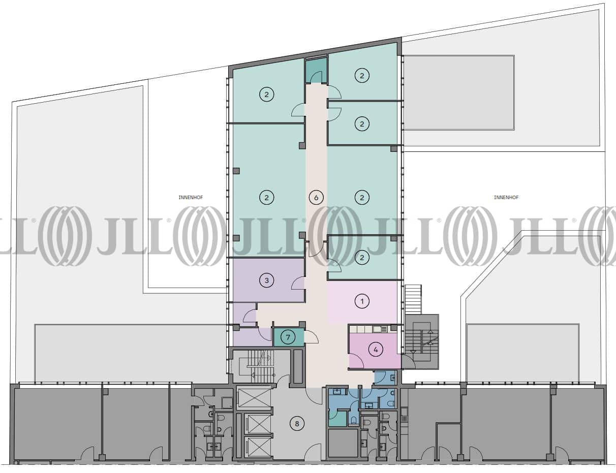
Bei der 9-geschossigen Liegenschaft handelt es sich um eine hochwertige Revitalisierung, die es den Nutzern ermöglicht, individuelle Ausbauwünsche zu berücksichtigen. Aufgrund der hervorragenden Teilbarkeit kann ein Regelgeschoss in drei Mieteinheiten unterteilt werden.
Zertifizierungen
Energieausweis
Für diese Liegenschaft liegt ein Bedarfsausweis vom 2014-09-25 vom Eigentümer/Vermieter vor. Der wesentliche Energieträger der Liegenschaft ist Fernwärme. Der Endenergiebedarf Strom beträgt 50.00 kWh/(m²*a). Der Endenergiebedarf Wärme beträgt 124.00 kWh/(m²*a).Verfügbare Fläche
Lage und Verkehrsanbindung
Die Liegenschaft befindet sich in zentraler Innenstadtlage von Düsseldorf. Dieser Standort zeichnet sich besonders durch eine sehr gute Infrastruktur und ÖPNV Anbindung aus. Zahlreiche Einkaufsmöglichkeiten, Geschäfte des alltäglichen Bedarfs sowie Restaurants und Ärzte sind in unmittelbarer Nähe zu finden.
- Flughafen, Düsseldorf, Fahrzeit: 14 min
- Bundesautobahn, A 52, Fahrzeit: 8 min
- Bundesautobahn, A 44, Fahrzeit: 9 min
- Bus, Wehrhahn 737, 812, Gehzeit: 2 min
- U-Bahn, Wehrhahn U71, U72, U73, U83, Gehzeit: 2 min
- S-Bahn, Wehrhahn S1, S6, S11, Gehzeit: 2 min
- Hauptbahnhof, Düsseldorf, Fahrzeit: 7 min
Ihr Kontakt

Janice Lehmann
Ihr Kontakt












