Büros
ID D1186Aktualisiert
Büroimmobilie - Düsseldorf, Friedrichstadt - D1186
Friedrichstadt, 40217, Düsseldorf, Nordrhein-Westfalen
Provisionspflichtig: bei Anmietung 3 Netto-Monatsmieten zzgl. gesetzlicher Umsatzsteuer.** der Wert kann je nach Vertragslaufzeit variieren.
22,50 € / m²
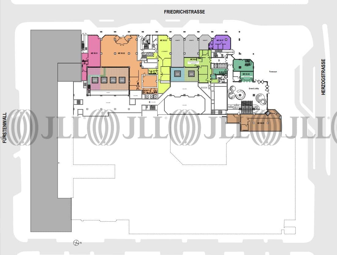
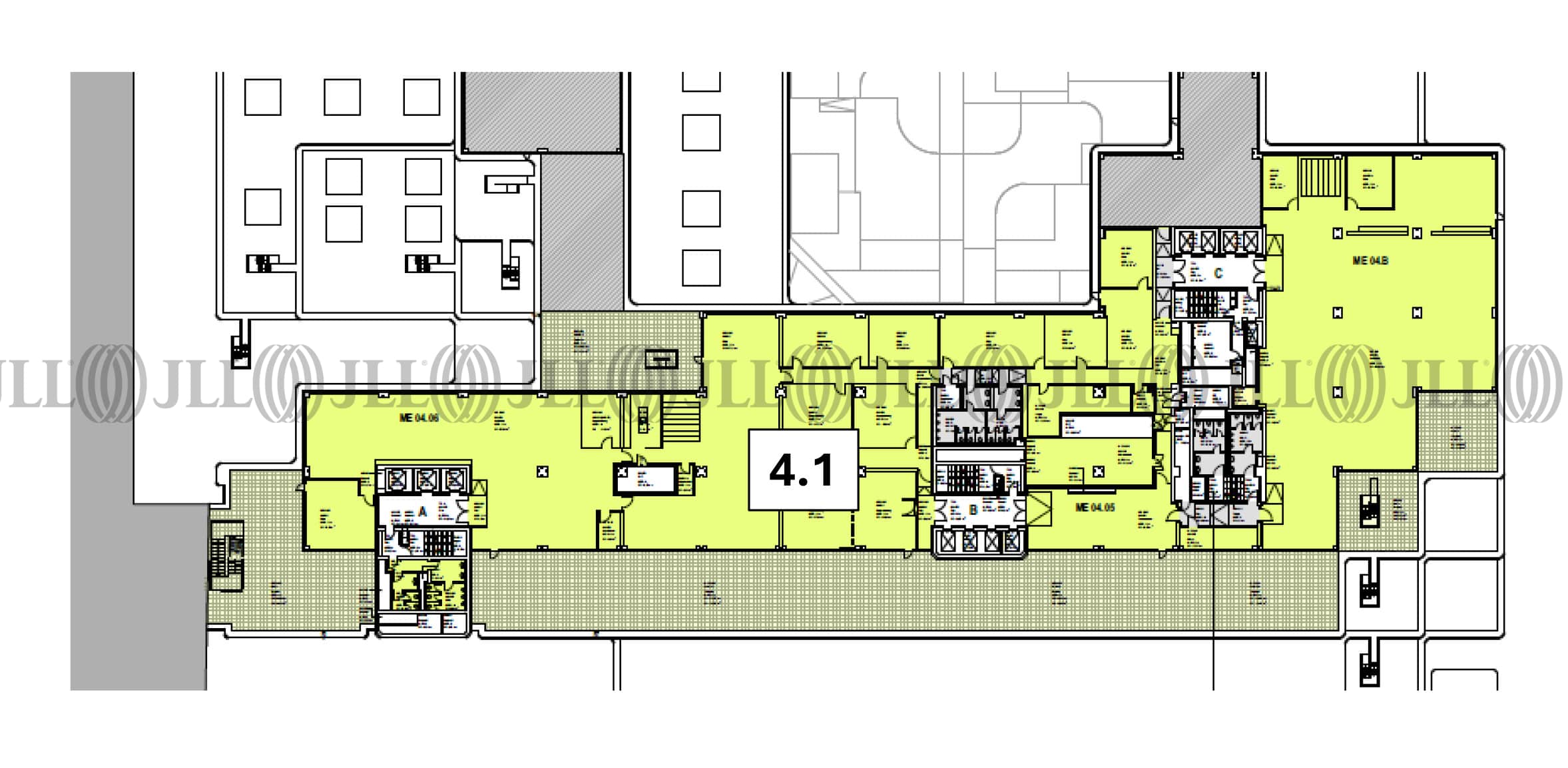
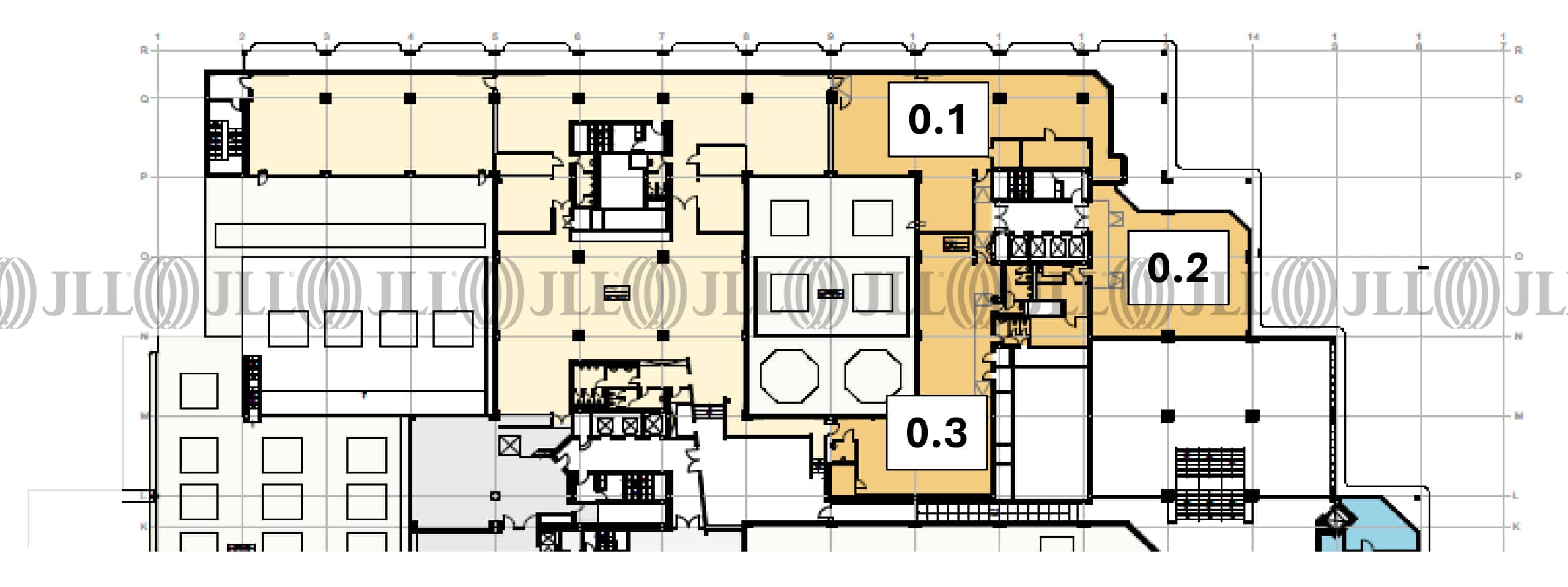
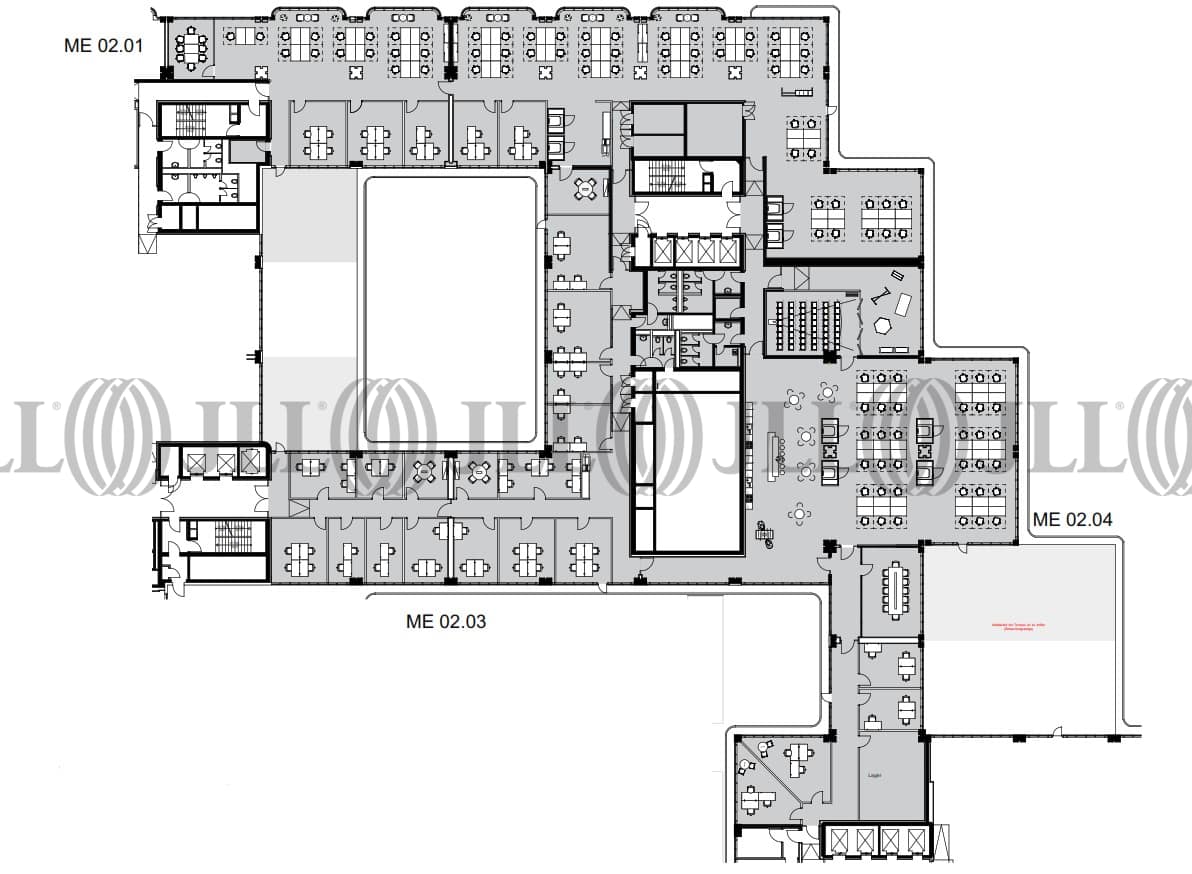
- Fläche740 - 16.438 m²
- VerfügbarkeitSofort
- Objekt
- Ausstattung
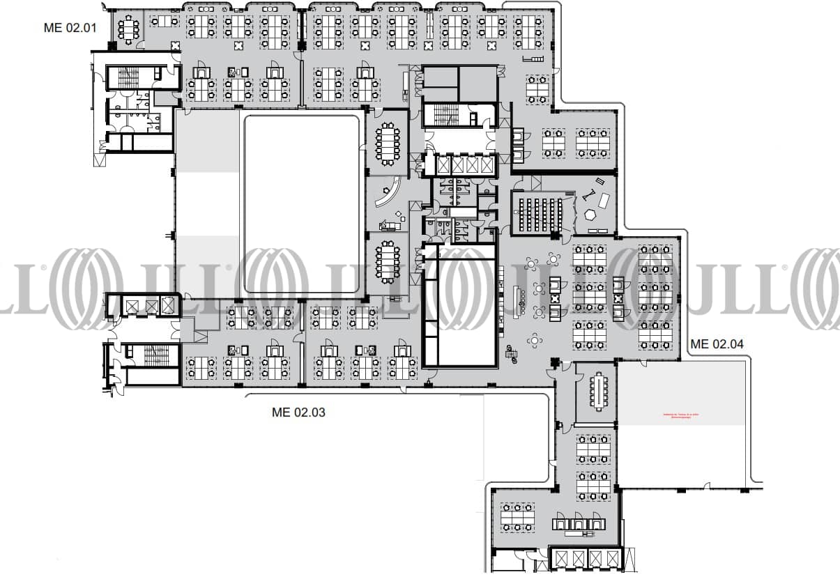
- Lage und Verkehrsanbindung
- Grundrisse
- Exposé herunterladen
- Ihr Kontakt
- Anfrage senden
Objekt
Das seinerzeit für die West-LB in den Jahren 1974 – 1986 durch Herrn Prof. Harald Deilmann fertiggestellte ICON wurde 2008 umfassend und aufwendig durch Lindner Architekten saniert und einer zeitgemäßen, zukunftsorientierten Nutzung zugeführt. Zum aktuellen Zeitpunkt werden umfassende Maßnahmen umgesetzt, die das Gebäude inklusiver und noch attraktiver für Nutzer machen. So wird ein Fitnessstudio im Gebäude installiert, der Vorplatz, die Lobbys, der Innenhof und die Dachterrassen erneuert und ein weiterer Eingang auf der Talstraße geschaffen. Die beiliegenden Visualisierungen veranschaulichen diese laufenden und zum Teil bereits umgesetzten Maßnahmen. Im Stadtbild von Düsseldorf ist das ICON prägend und als Wahrzeichen nicht wegzudenken. Im urban umtriebigen Stadtteil Friedrichstadt unweit des K21 am Kaiserteich und dem Düsseldorfer Bankenviertel/CBD, bietet es Nutzern unterschiedlichster Couleur einen optimal angebundenen Ort für individuelle und flexible Arbeitswelten. Mehrere durch die Mieter nutzbare Terrassen und Innenhöfe bieten einen guten Mix aus Arbeit und Entspannung im Herzen von Düsseldorf.
Zertifizierungen
Energieausweis
Für diese Liegenschaft liegt ein Verbrauchsausweis vom 16.04.2024 vom Eigentümer/Vermieter vor. Der wesentliche Energieträger der Liegenschaft ist Fernwärme. Der Endenergieverbrauch Strom beträgt 72.00 kWh/(m²*a). Der Endenergieverbrauch Wärme beträgt 62.00 kWh/(m²*a).Verfügbare Fläche
Lage und Verkehrsanbindung
Die Liegenschaft befindet sich in zentraler Innenstadtlage von Düsseldorf. Dieser Standort zeichnet sich besonders durch eine sehr gute Infrastruktur und ÖPNV Anbindung aus. Zahlreiche Einkaufsmöglichkeiten, Geschäfte des alltäglichen Bedarfs sowie Restaurants und Ärzte sind in unmittelbarer Nähe zu finden. Die Altstadt direkt am Rhein gelegen sowie die beliebte Einkaufsmeile Königsallee laden zum Verweilen ein und liegen in fußläufiger Entfernung. Dienstleister des täglichen Bedarfs befinden sich in der Nähe.
- Flughafen, Düsseldorf, Fahrzeit: 16 min
- Bundesautobahn, A 46, Fahrzeit: 7 min
- Bundesautobahn, A 52, Fahrzeit: 8 min
- Hauptbahnhof, Düsseldorf, Fahrzeit: 7 min
- U-Bahn, Kirchplatz U71, U72, U73, U83, Gehzeit: 3 min
- Bus, Kirchplatz 732, 736, 835, 836, Gehzeit: 3 min
Ihr Kontakt

Richard Steimel
Ihr Kontakt




























