Büros
ID D1185Büroimmobilie - Düsseldorf, Friedrichstadt - D1185
Friedrichstadt, 40215, Düsseldorf, Nordrhein-Westfalen
Provisionspflichtig: bei Anmietung 3 Netto-Monatsmieten zzgl. gesetzlicher Umsatzsteuer.** der Wert kann je nach Vertragslaufzeit variieren.
15,50 € / m²
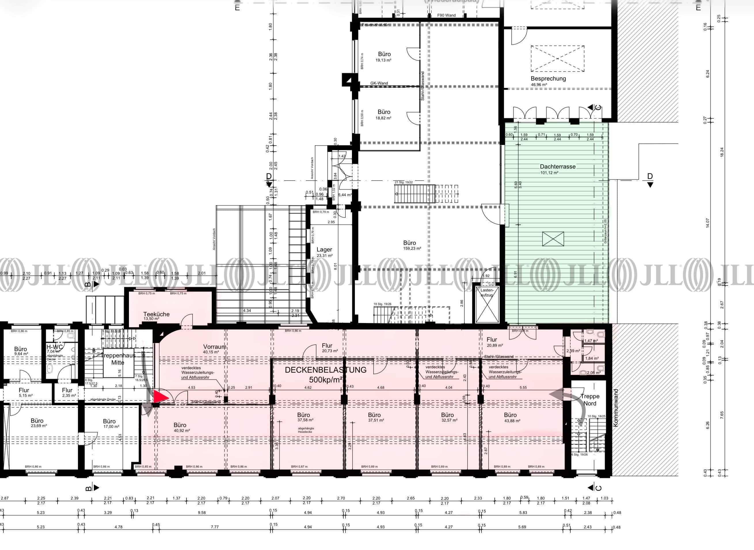
- Fläche285 - 581 m²
- VerfügbarkeitSofort
- Objekt
- Ausstattung
- Lage und Verkehrsanbindung
- Grundrisse
- Exposé herunterladen
- Ihr Kontakt
- Anfrage senden
Objekt
Das Bommer-Haus verbindet Industriecharme mit zeitgemäßer Innenausstattung. Die hellen Büroflächen verfügen über hohe Decken und lassen sich flexibel aufteilen.
Verfügbare Fläche
Lage und Verkehrsanbindung
Das Objekt ist südlich der Düsseldorfer Innenstadt gelegen. Der größtenteils durch Wohnnutzung geprägte Teil der City verbindet den belebten CBD mit den Südbezirken. Der Standort zeichnet sich insbesondere durch die schnelle Anbindung an die südlich gelegenen BAB aus.
- Hauptbahnhof, Düsseldorf, Fahrzeit: 7 min
- U-Bahn, Karolingerplatz U71, U73, U83, Gehzeit: 7 min
- Straßenbahn/Tram, Karolingerplatz 701, 704, Gehzeit: 7 min
- Bundesautobahn, A 46, Fahrzeit: 5 min
- Bundesautobahn, A 57, Fahrzeit: 10 min
- Flughafen, Düsseldorf, Fahrzeit: 12 min
Ihr Kontakt

Nell Ewert
Ihr Kontakt

















