Büros
ID D1160Büroimmobilie - Düsseldorf, Flingern Süd - D1160
Flingern Süd, 40233, Düsseldorf, Nordrhein-Westfalen
Provisionspflichtig: bei Anmietung 3 Netto-Monatsmieten zzgl. gesetzlicher Umsatzsteuer.** der Wert kann je nach Vertragslaufzeit variieren.
22 € / m²
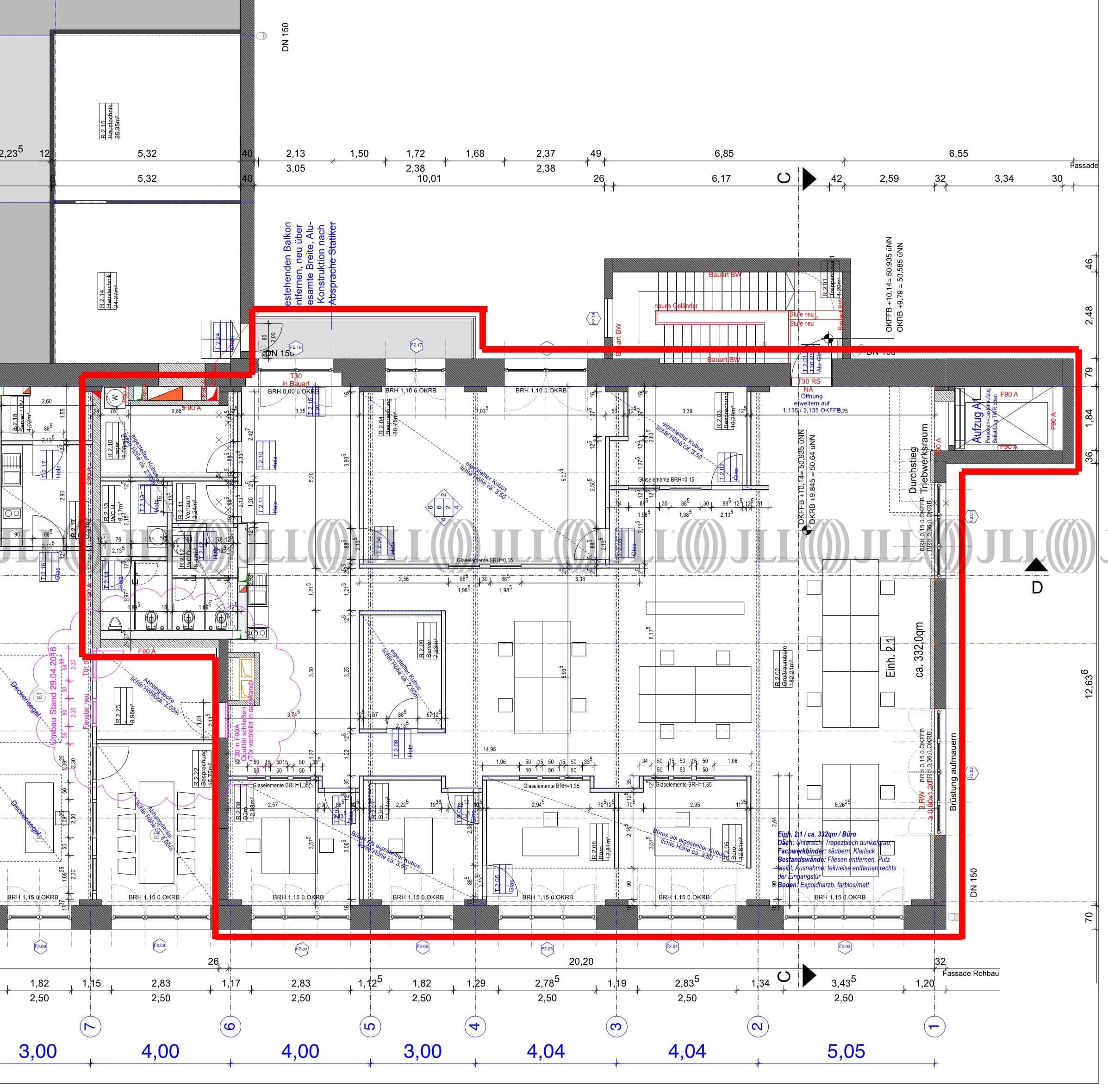
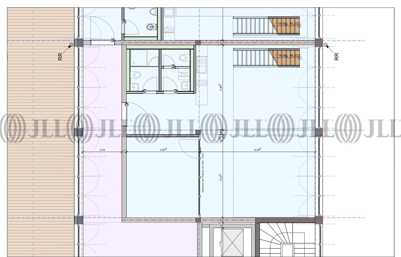
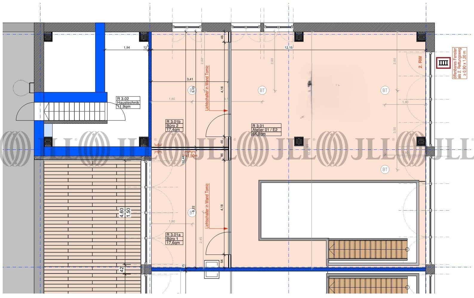
- Fläche150 - 1.413 m²
- VerfügbarkeitSofort
- Objekt
- Ausstattung
- Lage und Verkehrsanbindung
- Grundrisse
- Exposé herunterladen
- Ihr Kontakt
- Anfrage senden
Objekt
Die Flächen in den Schwanenhöfen eignen sich ideal für Büro- und Showroom-Nutzung. Durch den Industriecharme des gesamten Areals entsteht eine einzigartige Arbeitsatmosphäre.
Zertifizierungen
Energieausweis
Für diese Liegenschaft liegt ein Bedarfsausweis vom 2014-08-25 vom Eigentümer/Vermieter vor. Der wesentliche Energieträger der Liegenschaft ist Strom. Der Endenergiebedarf Strom beträgt 24.00 kWh/(m²*a). Der Endenergiebedarf Wärme beträgt 34.00 kWh/(m²*a).Verfügbare Fläche
Lage und Verkehrsanbindung
Die Liegenschaft befindet sich im östlichen Teil der Düsseldorfer City und besitzt durch die Nähe zum Hauptbahnhof eine optimale Anbindung an den ÖPNV sowie in Richtung Flughafen und Messe. In der Nachbarschaft haben sich unter anderem das Handelszentrum und das Amtsgericht niedergelassen. Dienstleister des täglichen Bedarfs befinden sich in der Nähe.
- Hauptbahnhof, Düsseldorf, Fahrzeit: 7 min
- U-Bahn, Kettwiger Straße U75, Gehzeit: 5 min
- Straßenbahn/Tram, Kettwiger Straße 706, Gehzeit: 5 min
- Bus, Ronsdorfer Straße 734, 736, 810, 815, Gehzeit: 4 min
- Bundesautobahn, A 52, Fahrzeit: 11 min
- Bundesautobahn, A 46, Fahrzeit: 11 min
- Flughafen, Düsseldorf, Fahrzeit: 15 min
Ihr Kontakt

Anna-Louisa Kratochvil
Ihr Kontakt







