Büros
ID D1147Provisionsfrei
Aktualisiert
Büroimmobilie - Düsseldorf, Golzheim - D1147
Golzheim, 40474, Düsseldorf, Nordrhein-Westfalen
23,50 € / m²
- Fläche764 m²
- VerfügbarkeitSofort
- Objekt
- Ausstattung
- Lage und Verkehrsanbindung
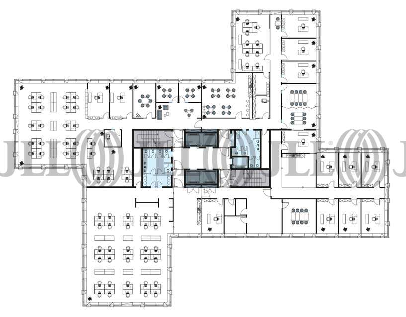
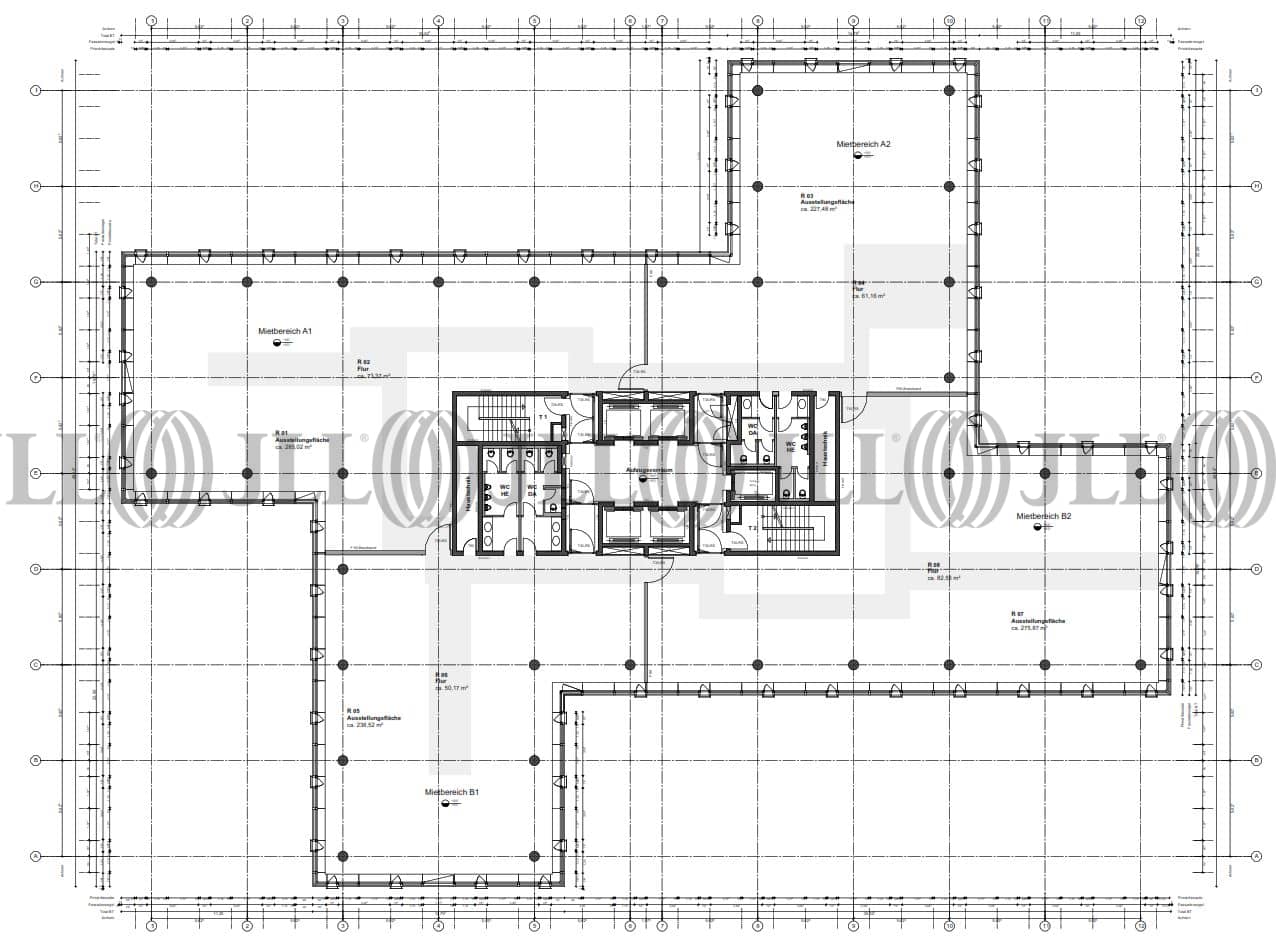
- Grundrisse
- Exposé herunterladen
- Ihr Kontakt
- Anfrage senden
Objekt
Das 13-geschossige Bürohaus wurde 2009 umfassend saniert und verfügt somit über eine hochwertige und moderne Ausstattung. Weitere Highlights sind sowohl der großzügige Außenantritt über eine angedeutete Brücke sowie ein loftiger Eingangsbereich mit Lobbycharakter und besetztem Empfang für Ihre Besucher. Der optische Auftritt betont die hohe Qualität des Gebäudes, welche durch den Hell-/ Dunkelkontrast der teils opaken, teils transparenten Fassadensegmente intensiviert wird. Individuelle Nutzungs- und Raumstrukturen sind durch die intelligenten Grundrisse mit innenliegendem Versorgungskern eine Selbstverständlichkeit.
Zertifizierungen
Energieausweis
DGNB: GoldFür diese Liegenschaft liegt ein Bedarfsausweis vom 21.02.2019 vom Eigentümer/Vermieter vor. Die wesentlichen Energieträger der Liegenschaft sind KWK, Strom. Der Endenergiebedarf Strom beträgt 27.00 kWh/(m²*a). Der Endenergiebedarf Wärme beträgt 81.00 kWh/(m²*a).
Verfügbare Fläche
Lage und Verkehrsanbindung
Die Liegenschaft befindet sich nahe der Düsseldorfer City in unmittelbarer Nachbarschaft vieler namhafter Unternehmen. Der Kennedydamm zeichnet sich durch die Nähe zum Rheinufer und der optimalen Verkehrsanbindung in Richtung City und Umland aus. Auch der Flughafen ist in wenigen Minuten erreichbar.
- Flughafen, Düsseldorf, Fahrzeit: 11 min
- Bundesautobahn, A 44, Fahrzeit: 5 min
- Bundesautobahn, A 52, Fahrzeit: 5 min
- Hauptbahnhof, Düsseldorf, Fahrzeit: 12 min
- U-Bahn, Golzheimer Platz U78, U79, Gehzeit: 3 min
- Bus, Golzheimer Platz M2, SB51, 729, 756, 758, 834, 863, Gehzeit: 3 min
Ihr Kontakt

Nell Ewert
Ihr Kontakt














