Büros
ID D1134Büroimmobilie - Düsseldorf, Stadtmitte - D1134
Stadtmitte, 40211, Düsseldorf, Nordrhein-Westfalen
Provisionspflichtig: bei Anmietung 3 Netto-Monatsmieten zzgl. gesetzlicher Umsatzsteuer.** der Wert kann je nach Vertragslaufzeit variieren.
15 € / m²
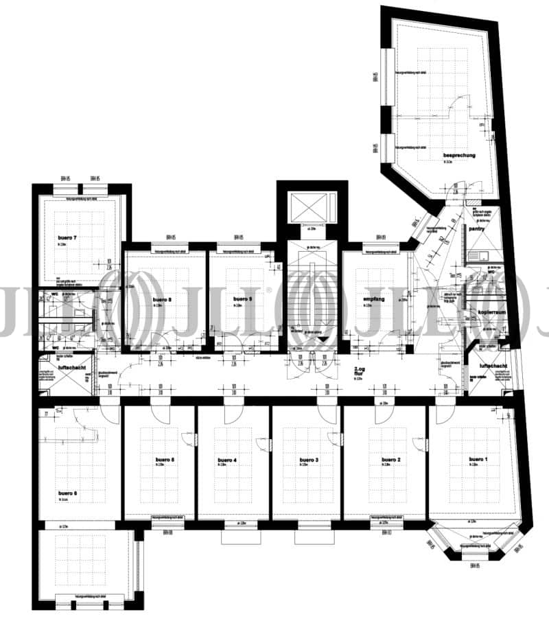
- Fläche313 m²
- VerfügbarkeitAuf Anfrage
- Objekt
- Ausstattung
- Lage und Verkehrsanbindung
- Grundriss
- Exposé herunterladen
- Ihr Kontakt
- Anfrage senden
Objekt
Das moderne Büro- und Geschäftshaus liegt zentral und genießt beste Verkehrsanbindungen an das Autobahnnetz sowie an den ÖPNV. Die Ausstattung ist modern und die Flächen hell, sodass es den Mietern an nichts mangelt.
Zertifizierungen
Energieausweis
Für diese Liegenschaft liegt ein Bedarfsausweis vom 09.07.2024 vom Eigentümer/Vermieter vor. Der wesentliche Energieträger der Liegenschaft ist KWK. Der Endenergiebedarf Strom beträgt 71 kWh/(m²*a). Der Endenergiebedarf Wärme beträgt 140,3 kWh/(m²*a).Verfügbare Fläche
Lage und Verkehrsanbindung
Das Objekt liegt in der Düsseldorfer Innenstadt, nur wenige Minuten von der Hauptgeschäftsstraße Schadowstraße entfernt. Über die angrenzende Grafenberger Allee erreicht man in ca. 9 Minuten den nördlichen Zubringer (A 52) sowie die Anschlussstelle Düsseldorf Mettmann (A 3).
- Hauptbahnhof, Düsseldorf, Fahrzeit: 6 min
- Bahnhof, Wehrhahn S1, S6, S11, Gehzeit: 1 min
- U-Bahn, Wehrhahn U71, U72, U73, U83, Gehzeit: 1 min
- Bus, Wehrhahn 737, 812, Gehzeit: 1 min
- Bundesautobahn, A 52, Fahrzeit: 8 min
- Bundesautobahn, A 44, Fahrzeit: 10 min
- Flughafen, Düsseldorf, Fahrzeit: 12 min
Ihr Kontakt

Nell Ewert
Ihr Kontakt





