Büros
ID D1124Provisionsfrei
Büroimmobilie - Düsseldorf, Heerdt - D1124
Heerdt, 40549, Düsseldorf, Nordrhein-Westfalen
Kontaktieren Sie uns für den Preis
- Fläche226 - 7.921 m²
- VerfügbarkeitAuf Anfrage
- Objekt
- Ausstattung
- Lage und Verkehrsanbindung
- Grundrisse
- Exposé herunterladen
- Ihr Kontakt
- Anfrage senden
Objekt
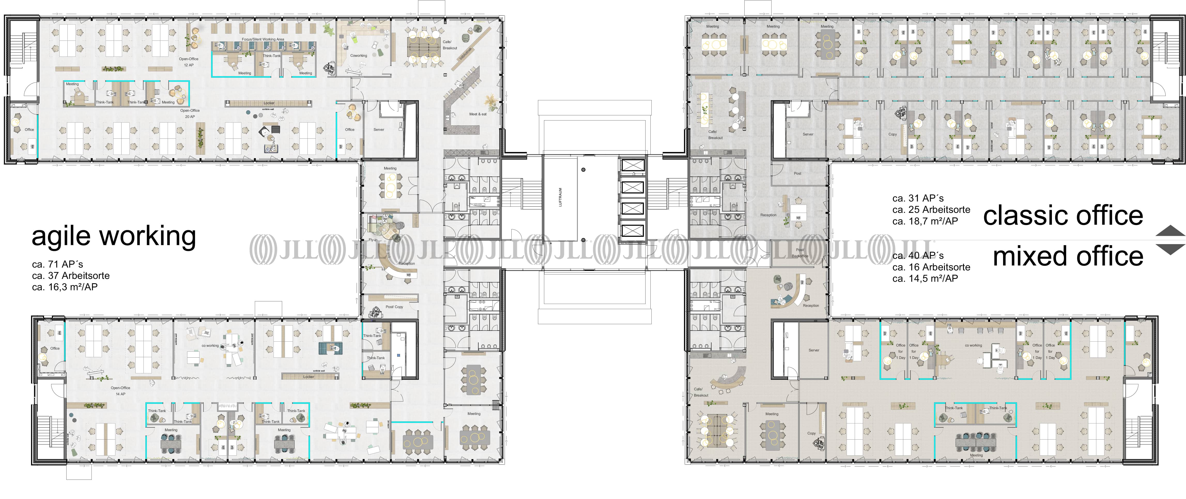
Das Objekt Bö 69 besticht durch seinen h-förmigen Grundriss. Die Immobilie ermöglicht sowohl eine Haus-in-Haus Lösung mit zwei Bauteilen, oder alternativ eine Anmietung von gesamten Etagen mit bis zu 3.000 m².
Zertifizierungen
Energieausweis
DGNB: GoldFür diese Liegenschaft liegt ein Bedarfsausweis vom 25.10.2013 vom Eigentümer/Vermieter vor. Die wesentlichen Energieträger der Liegenschaft sind KWK, Strom. Endenergiebedarf: 88.30000 kWh/(m²*a)
Verfügbare Fläche
Lage und Verkehrsanbindung
Das Objekt befindet sich im linksrheinischen Bereich von Düsseldorf direkt gegenüber befindet sich das Böhler-Areal. In direkter Nachbarschaft entstehen hunderte neue Wohnungen, wodurch das Nahversorgungsangebot in Zukunft deutlich steigt.
- Hauptbahnhof, Düsseldorf, Fahrzeit: 16 min
- U-Bahn, Lörick U70, U74, U76, Gehzeit: 4 min
- Bus, Böhlerstraße 833, Gehzeit: 4 min
- Bundesautobahn, A 52, Fahrzeit: 3 min
- Bundesautobahn, A 57, Fahrzeit: 6 min
- Flughafen, Düsseldorf, Fahrzeit: 14 min
Ihr Kontakt

Frederik VonWirth
Ihr Kontakt












