Büros
ID D1117Provisionsfrei
Büroimmobilie - Düsseldorf, Hafen - D1117
Hafen, 40221, Düsseldorf, Nordrhein-Westfalen
19,50 € - 20,50 € / m²
- Fläche462 - 1.848 m²
- VerfügbarkeitSofort
- Objekt
- Ausstattung
- Lage und Verkehrsanbindung
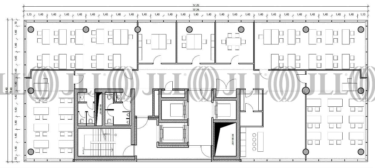
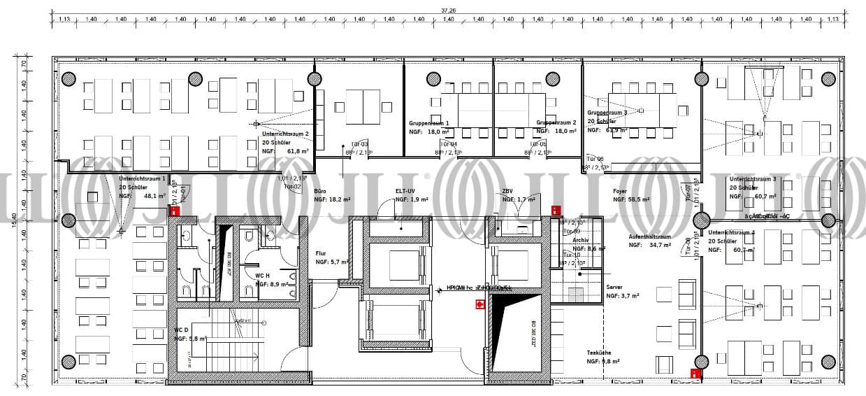
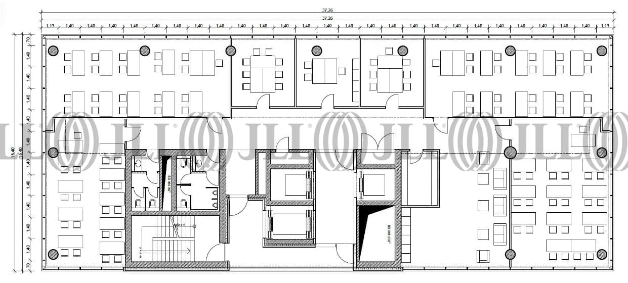
- Grundrisse
- Exposé herunterladen
- Ihr Kontakt
- Anfrage senden
Objekt
Das Colorium befindet sich in erster Reihe zum Rhein und liegt gegenüber der Kaistraße. Ein Hotel ist Hauptmieter des Gebäudes, dessen moderne Ausstattung kombiniert mit einer einzigartigen Architektur den Flair des Medienhafens widerspiegelt. Die Raumaufteilung und Büronutzung sind absolut flexibel zu gestalten, sogar Co-working Konzepte sind möglich.
Zertifizierungen
Energieausweis
Für diese Liegenschaft liegt ein Verbrauchsausweis vom 18.03.2024 vom Eigentümer/Vermieter vor. Der wesentliche Energieträger der Liegenschaft ist Fernwärme. Der Endenergieverbrauch Strom beträgt 88.3 kWh/(m²*a). Der Endenergieverbrauch Wärme beträgt 145.9 kWh/(m²*a).Verfügbare Fläche
Lage und Verkehrsanbindung
Die Lage des Rheinhafens in Düsseldorf zeichnet sich durch ihr Stadtnähe und Verkehrsanbindung aus. Für den Individualverkehr ist die Anbindung an das überregionale Autobahnnetz und den Flughafen durch den Rheinufer-Tunnel gegeben. Dienstleister des täglichen Bedarfs befinden sich in der Nähe.
- Hauptbahnhof, Düsseldorf, Fahrzeit: 9 min
- Straßenbahn/Tram, Speditionsstraße 719, Gehzeit: 3 min
- Bus, Speditionstraße 725, Gehzeit: 3 min
- Bundesautobahn, A 52, Fahrzeit: 8 min
- Bundesautobahn, A 46, Fahrzeit: 8 min
- Flughafen, Düsseldorf, Fahrzeit: 15 min
Ihr Kontakt

Anna-Louisa Kratochvil
Ihr Kontakt











