Büros
ID D0918Provisionsfrei
Büroimmobilie - Düsseldorf, Unterbilk - D0918
Unterbilk, 40219, Düsseldorf, Nordrhein-Westfalen
15 € - 18,50 € / m²
- Fläche287 - 7.126 m²
- VerfügbarkeitSofort
- Objekt
- Ausstattung
- Lage und Verkehrsanbindung
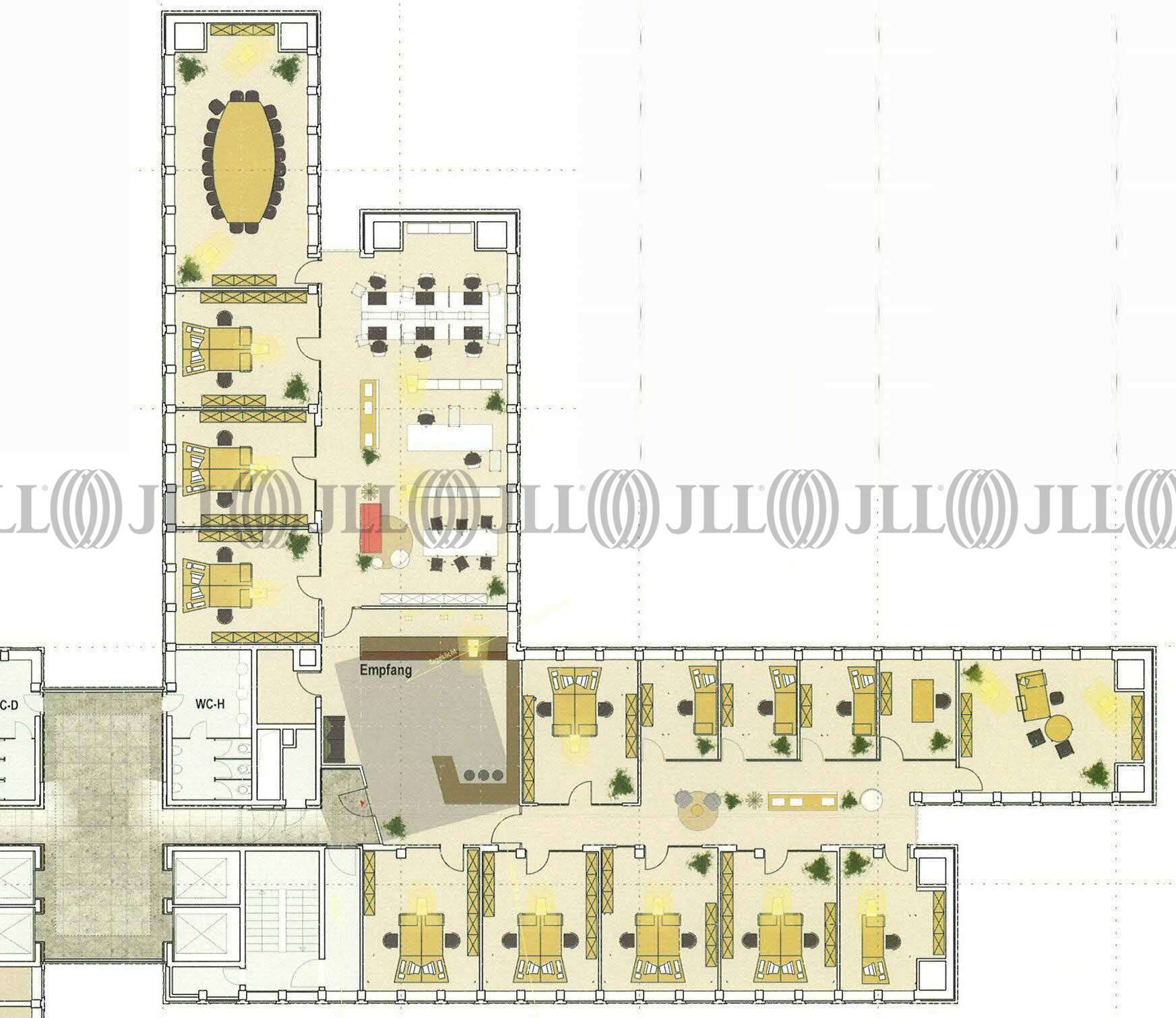
- Grundrisse
- Exposé herunterladen
- Ihr Kontakt
- Anfrage senden
Objekt
Der Gebäudekomplex besteht aus vier Bürotürmen mit Unter- und Erdgeschoss, 13 Obergeschossen sowie einem Technikgeschoss. Die Türme sind im Erd- und 1. Obergeschoss miteinander verbunden.
Zertifizierungen
Energieausweis
DGNB: GoldFür diese Liegenschaft liegt ein Verbrauchsausweis vom 30.08.2019 vom Eigentümer/Vermieter vor. Die wesentlichen Energieträger der Liegenschaft sind Erdgas schwer, Strom. Der Endenergieverbrauch Strom beträgt 116.00 kWh/(m²*a). Der Endenergieverbrauch Wärme beträgt 248.00 kWh/(m²*a).
Verfügbare Fläche
Lage und Verkehrsanbindung
Die Liegenschaft befindet sich im Düsseldorfer Regierungsviertel in direkter Nachbarschaft des Landtages, Medienhafens und der Altstadt. Durch die Rheinkniebrücke und den Rheinufertunnel ist eine perfekte Anbindung an die Innenstadt und die Region gegeben.
- Hauptbahnhof, Düsseldorf, Fahrzeit: 7 min
- Straßenbahn/Tram, Bilker Kirche 706, 707, 709, Gehzeit: 2 min
- Bus, Bilker Kirche 723, 726, Gehzeit: 2 min
- Bundesautobahn, A 52, Fahrzeit: 5 min
- Bundesautobahn, A 46, Fahrzeit: 6 min
- Flughafen, Düsseldorf, Fahrzeit: 10 min
Ihr Kontakt

Richard Steimel
Ihr Kontakt






