Büros
ID D0896Büroimmobilie - Düsseldorf, Stadtmitte - D0896
Stadtmitte, 40215, Düsseldorf, Nordrhein-Westfalen
Provisionspflichtig: bei Anmietung 3 Netto-Monatsmieten zzgl. gesetzlicher Umsatzsteuer.** der Wert kann je nach Vertragslaufzeit variieren.
Kontaktieren Sie uns für den Preis
- Fläche110 - 5.687 m²
- VerfügbarkeitIII quartal 2026
- Objekt
- Ausstattung
- Lage und Verkehrsanbindung
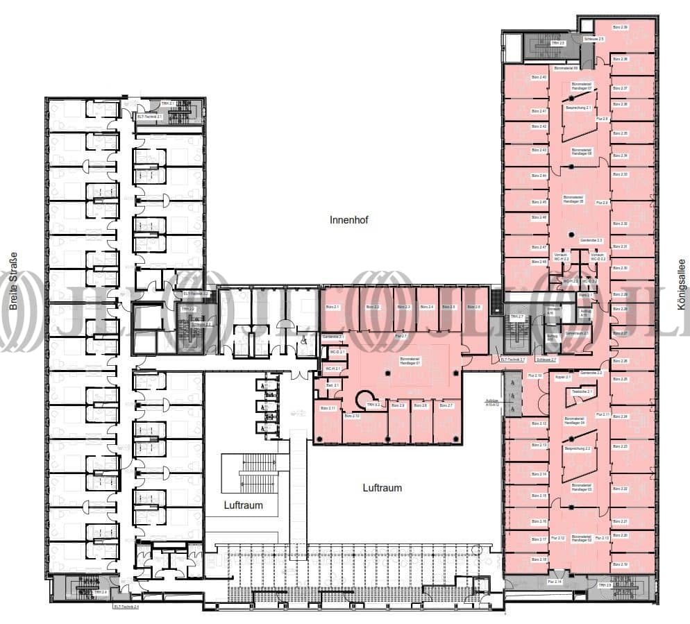
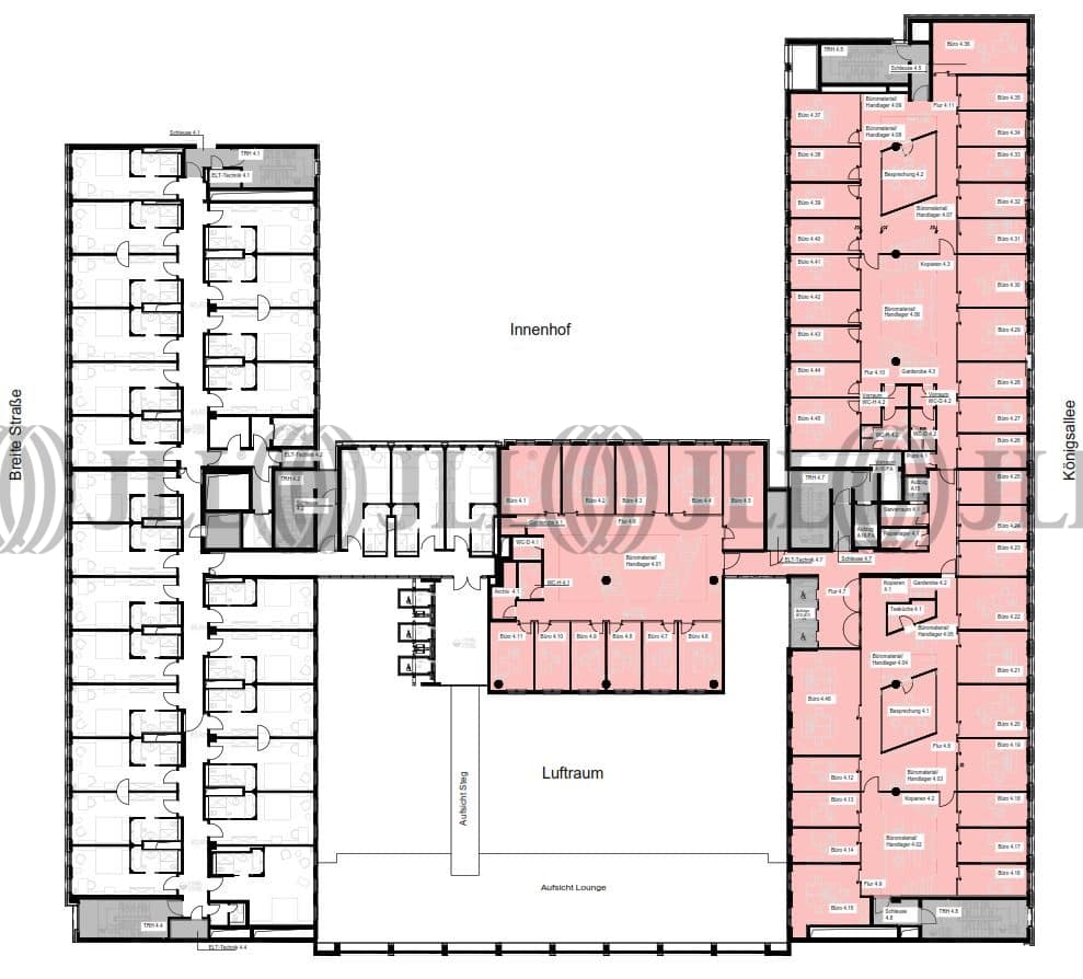
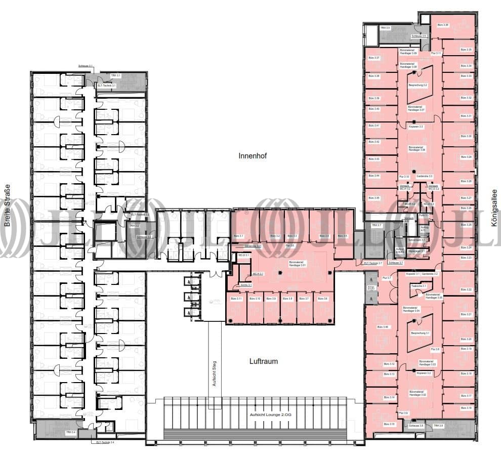
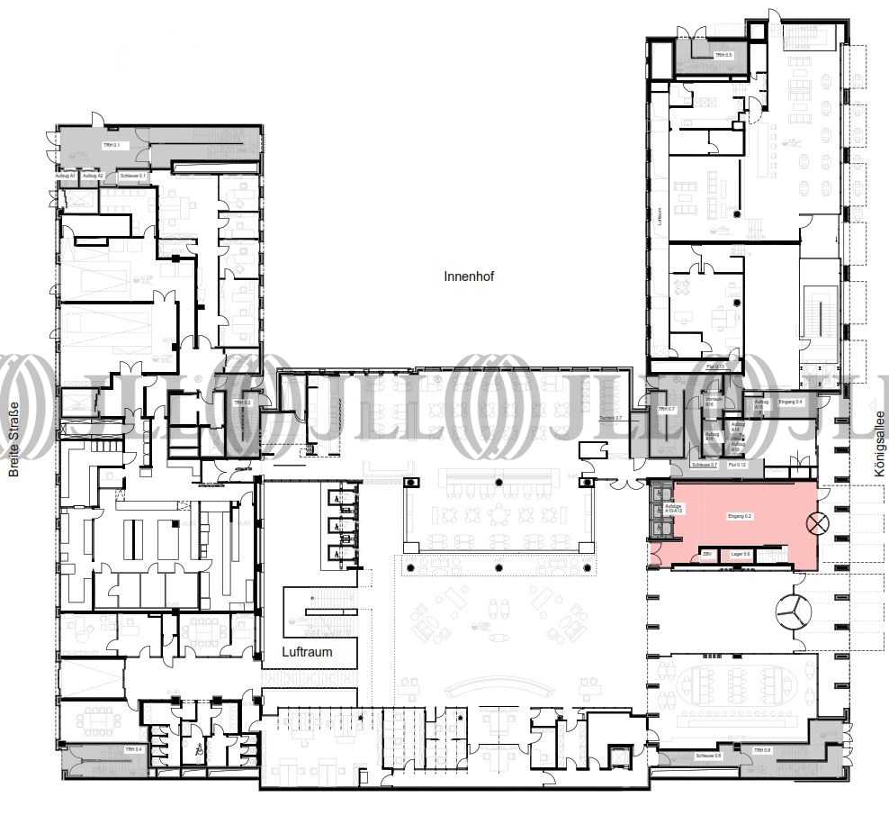
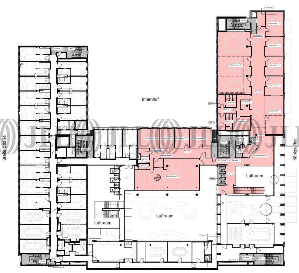
- Grundrisse
- Exposé herunterladen
- Ihr Kontakt
- Anfrage senden
Objekt
Das repräsentative Bürogebäude überzeugt nicht nur durch seine exklusive Lage, sondern auch durch den qualitativ hochwertigen Ausbau. Dieser überzeugt vor allem durch Echtholzparkettböden, bodentiefe Fenster und die durch Glaselemente abgetrennten Büroräume. Durch zusätzliche Schallschutzelemente wird eine besondere Arbeitsatmosphäre erzeugt.
Zertifizierungen
Energieausweis
Für diese Liegenschaft liegt ein Bedarfsausweis vom 19.12.2022 vom Eigentümer/Vermieter vor. Die wesentlichen Energieträger der Liegenschaft sind Fernwärme, Gas, Öl, Strom. Endenergiebedarf: 169,61 kWh/(m²*a)Verfügbare Fläche
Lage und Verkehrsanbindung
Das Objekt befindet sich in renommierter Lage mitten im Düsseldorfer CBD. Der CBD wird im Süden vom Gap 15 und im Norden vom Dreischeibenhaus begrenzt. Die Berliner Allee sowie Kasernenstraße / Heinrich-Heine-Allee bilden östlich und westlich die Grenze. Herzstück ist somit die berühmte Königsallee. Zahlreiche namhafte Unternehmen am Standort profitieren von der idealen ÖPNV-Anbindung sowie der hervorragenden Infrastruktur in Bezug auf die tägliche Nahversorgung. Dienstleister des täglichen Bedarfs befinden sich in der Nähe.
- Hauptbahnhof, Düsseldorf, Fahrzeit: 6 min
- Straßenbahn/Tram, Graf-Adolf-Platz 701, 703, 704, 706, 709, 712, 713, 715, 719, Gehzeit: 4 min
- Bus, Graf-Adolf-Platz 726, Gehzeit: 4 min
- Bundesautobahn, A 52, Fahrzeit: 7 min
- Bundesautobahn, A 46, Fahrzeit: 7 min
- Flughafen, Düsseldorf, Fahrzeit: 12 min
Ihr Kontakt

Janice Lehmann
Ihr Kontakt















