Büros
ID D0890Büroimmobilie - Düsseldorf, Unterrath - D0890
Unterrath, 40472, Düsseldorf, Nordrhein-Westfalen
Provisionspflichtig: bei Anmietung 3 Netto-Monatsmieten zzgl. gesetzlicher Umsatzsteuer.** der Wert kann je nach Vertragslaufzeit variieren.
13,50 € / m²
- Fläche419 - 2.541 m²
- VerfügbarkeitSofort
- Objekt
- Ausstattung
- Lage und Verkehrsanbindung
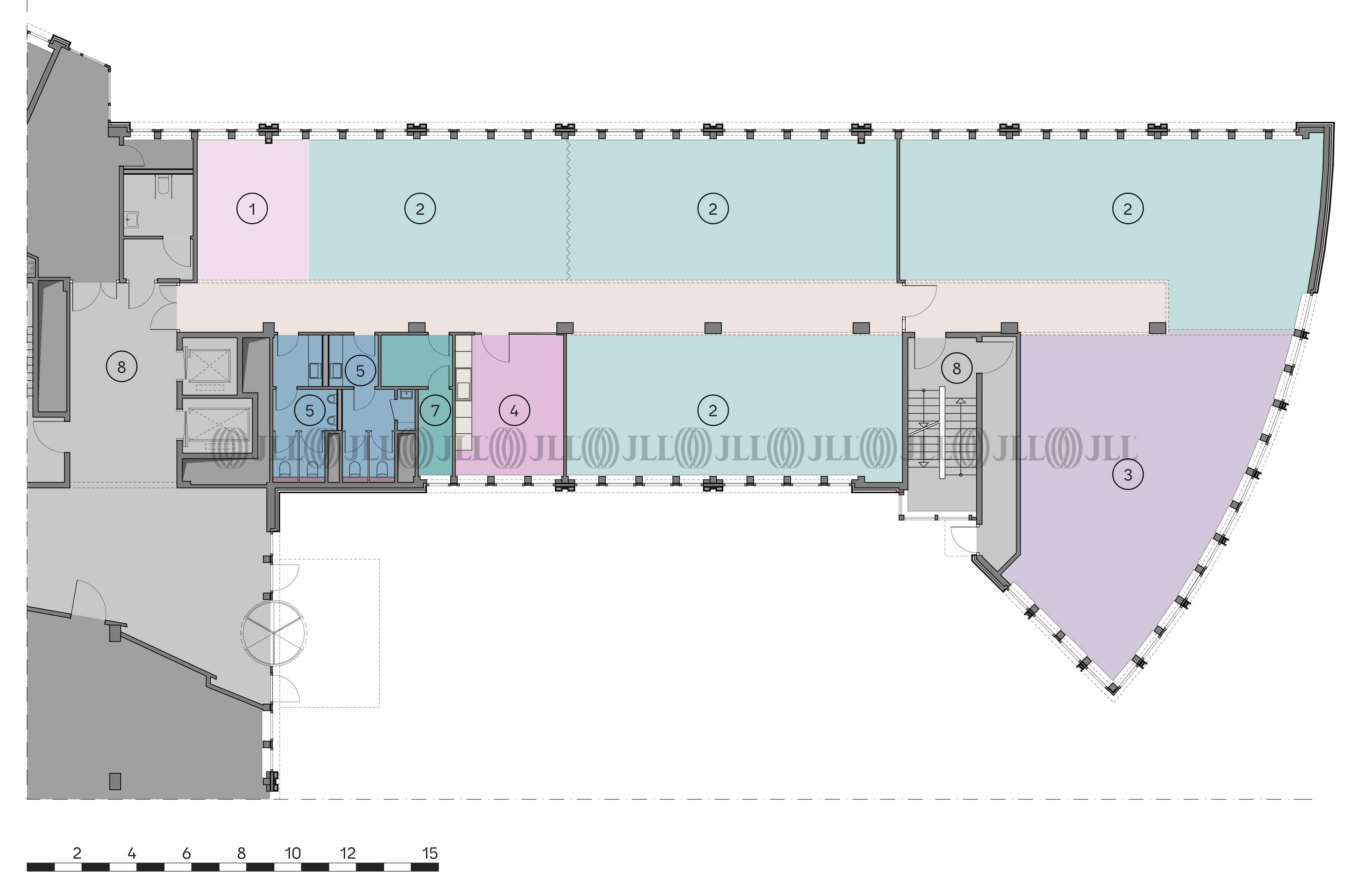
- Grundrisse
- Exposé herunterladen
- Ihr Kontakt
- Anfrage senden
Objekt
Es handelt sich um ein sehr modernes und effizientes Bürogebäude in sichtbarer Lage mit sehr gutem Anschluss an den Düsseldorfer Flughafen. Die Flächen eignen sich hervorragend für jegliche Art von Nutzung.
Zertifizierungen
Energieausweis
Für diese Liegenschaft liegt ein Verbrauchsausweis vom 14.10.2022 vom Eigentümer/Vermieter vor. Die wesentlichen Energieträger der Liegenschaft sind Erdgas schwer, Strom. Der Endenergieverbrauch Strom beträgt 36.00 kWh/(m²*a). Der Endenergieverbrauch Wärme beträgt 81.10 kWh/(m²*a).Verfügbare Fläche
Lage und Verkehrsanbindung
Die Liegenschaft befindet sich in direkter Nähe des Düsseldorfer Flughafens und bietet damit, besonders international tätigen Unternehmen, beste Voraussetzungen. Auch das Umland ist durch die gute Anbindung an das Autobahnnetz schnell erreichbar. Der Airport Düsseldorf-International bietet zudem zahlreiche Einkaufsmöglichkeiten und ein breites Angebot an Gastronomie.
- Hauptbahnhof, Düsseldorf, Fahrzeit: 12 min
- S-Bahn, Unterrath S1, S11, Gehzeit: 10 min
- Straßenbahn/Tram, Unterrath 707, 715, Gehzeit: 10 min
- Bus, Unterrath Kirche 730, 776, Gehzeit: 8 min
- Bundesautobahn, A 52, Fahrzeit: 1 min
- Bundesautobahn, A 44, Fahrzeit: 2 min
- Flughafen, Düsseldorf, Fahrzeit: 7 min
Ihr Kontakt

Frederik VonWirth
Ihr Kontakt



