Büros
ID D0889Büroimmobilie - Düsseldorf, Heerdt - D0889
Heerdt, 40549, Düsseldorf, Nordrhein-Westfalen
Provisionspflichtig: bei Anmietung 3 Netto-Monatsmieten zzgl. gesetzlicher Umsatzsteuer.** der Wert kann je nach Vertragslaufzeit variieren.
Kontaktieren Sie uns für den Preis
- Fläche669 - 2.369 m²
- VerfügbarkeitSofort
- Objekt
- Ausstattung
- Lage und Verkehrsanbindung
- Grundrisse
- Exposé herunterladen
- Ihr Kontakt
- Anfrage senden
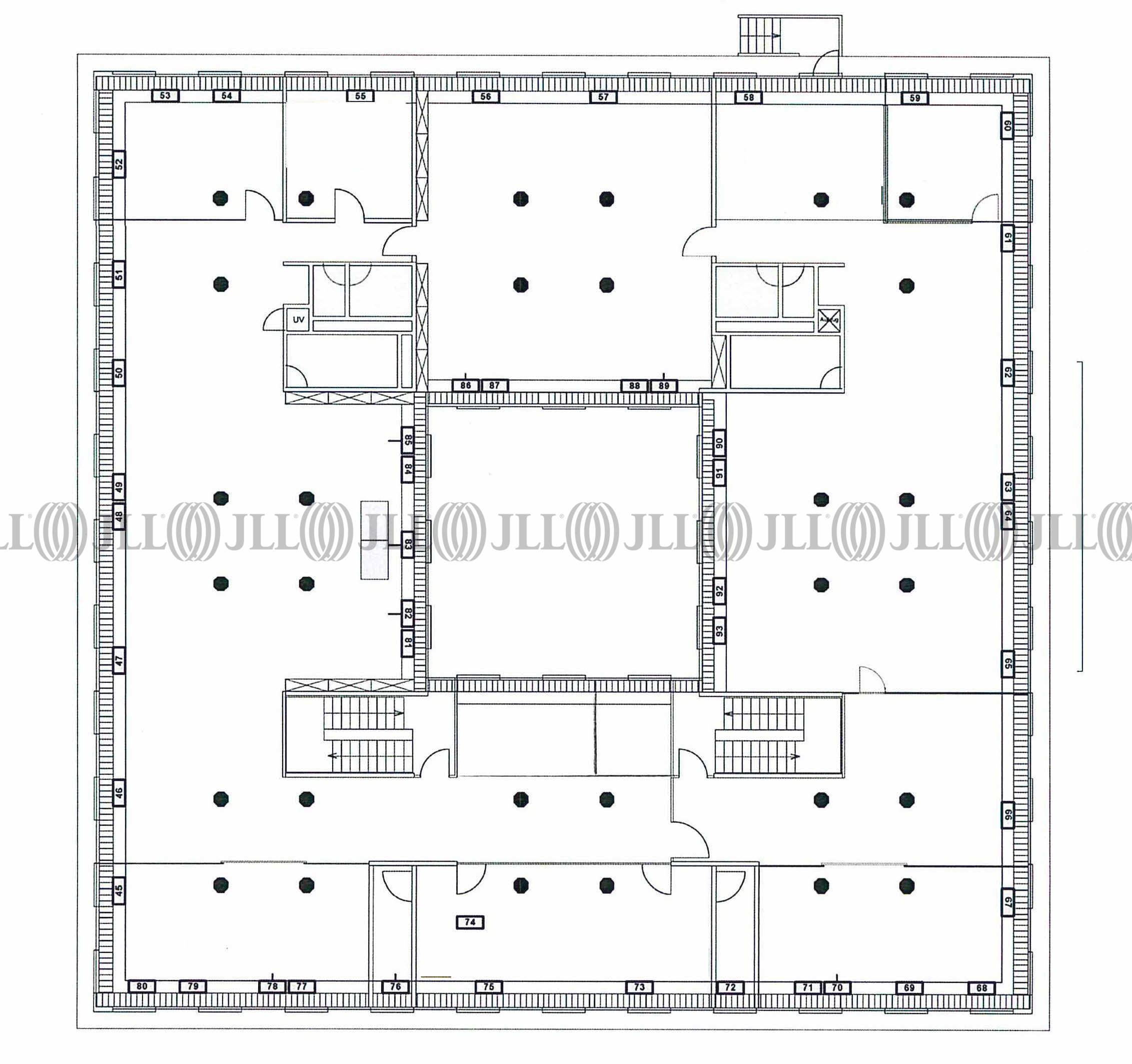
Objekt
Das freistehende Bürogebäude verfügt über eine Glasfassade sowie ein repräsentatives Entree zur Straßenfront mit hervorragendem Blick auf den Rhein. Die hellen Büroflächen sind modern gestaltet und verfügen über bodentiefe Fensterelemente. Ein Lichthof mit Wasserbassin sowie zwei Treppenaufgänge, die die offene Struktur der Büroetagen erschließen, sind weitere Merkmale dieser Liegenschaft.
Verfügbare Fläche
Lage und Verkehrsanbindung
Das Objekt ist im linksrheinischen Düsseldorf-Heerdt gelegen und verfügt über eine sehr gute Verkehrsanbindung in Richtung City sowie stadtauswärts. Die ehemals dort herrschende Industriebranche ist einem bunten Mix aus Bürogebäuden, Großhandel und Wohnnutzung gewichen.
- Hauptbahnhof, Düsseldorf, Fahrzeit: 15 min
- U-Bahn, Nikolaus-Knopp-Platz U75, Gehzeit: 8 min
- Bundesautobahn, A 52, Fahrzeit: 5 min
- Bundesautobahn, A 57, Fahrzeit: 5 min
- Flughafen, Düsseldorf, Fahrzeit: 12 min
Ihr Kontakt

Janice Lehmann
Ihr Kontakt











