Büros
ID D0830Büroimmobilie - Düsseldorf, Düsseltal - D0830
Düsseltal, 40237, Düsseldorf, Nordrhein-Westfalen
Provisionspflichtig: bei Anmietung 3 Netto-Monatsmieten zzgl. gesetzlicher Umsatzsteuer.** der Wert kann je nach Vertragslaufzeit variieren.
13,50 € / m²
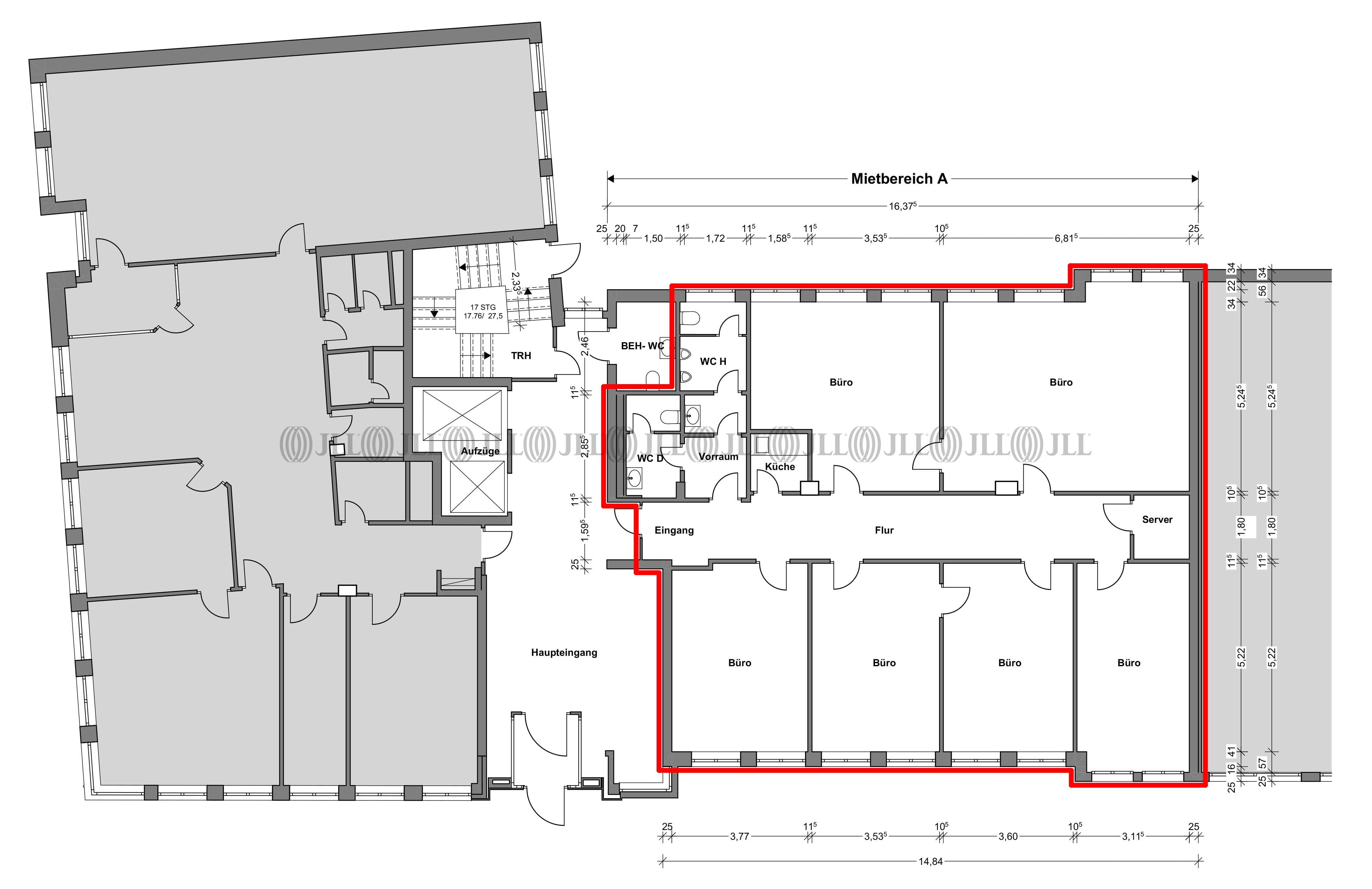
- Fläche181 m²
- VerfügbarkeitSofort
- Objekt
- Ausstattung
- Lage und Verkehrsanbindung
- Grundriss
- Exposé herunterladen
- Ihr Kontakt
- Anfrage senden
Objekt
Diese ruhig gelegene Liegenschaft besticht durch die repräsentative Fassade. Die effizient nutzbaren Büroflächen bieten auf Grund des flexiblen Grundrisses vielfältige Nutzungsmöglichkeiten.
Zertifizierungen
Energieausweis
Für diese Liegenschaft liegt ein Verbrauchsausweis vom 25.10.2017 vom Eigentümer/Vermieter vor. Der wesentliche Energieträger der Liegenschaft ist Fernwärme. Der Endenergieverbrauch Strom beträgt 33 kWh/(m²*a). Der Endenergieverbrauch Wärme beträgt 80 kWh/(m²*a).Verfügbare Fläche
Lage und Verkehrsanbindung
Die Goethestraße liegt im Düsseldorfer Zooviertel, einer der bevorzugten Wohn- und Bürolagen und ist eine ruhige Seitenstraße der Grafenberger Allee. Im Umfeld haben sich zahlreiche Steuerberater, Wirtschaftsprüfer, Rechtsanwälte, Gutachter und Ärzte niedergelassen.
- Hauptbahnhof, Düsseldorf, Fahrzeit: 8 min
- U-Bahn, Lindemannstraße U72, U73, U83, Gehzeit: 2 min
- Straßenbahn/Tram, Lindemannstraße 706, Gehzeit: 2 min
- Bus, Lindemannstraße 737, Gehzeit: 2 min
- Bundesautobahn, A 52, Fahrzeit: 8 min
- Bundesautobahn, A 44, Fahrzeit: 9 min
- Flughafen, Düsseldorf, Fahrzeit: 14 min
Ihr Kontakt

Anna-Louisa Kratochvil
Ihr Kontakt







