Büros
ID D0772Provisionsfrei
Büroimmobilie - Düsseldorf, Stadtmitte - D0772
Stadtmitte, 40213, Düsseldorf, Nordrhein-Westfalen
35 € / m²
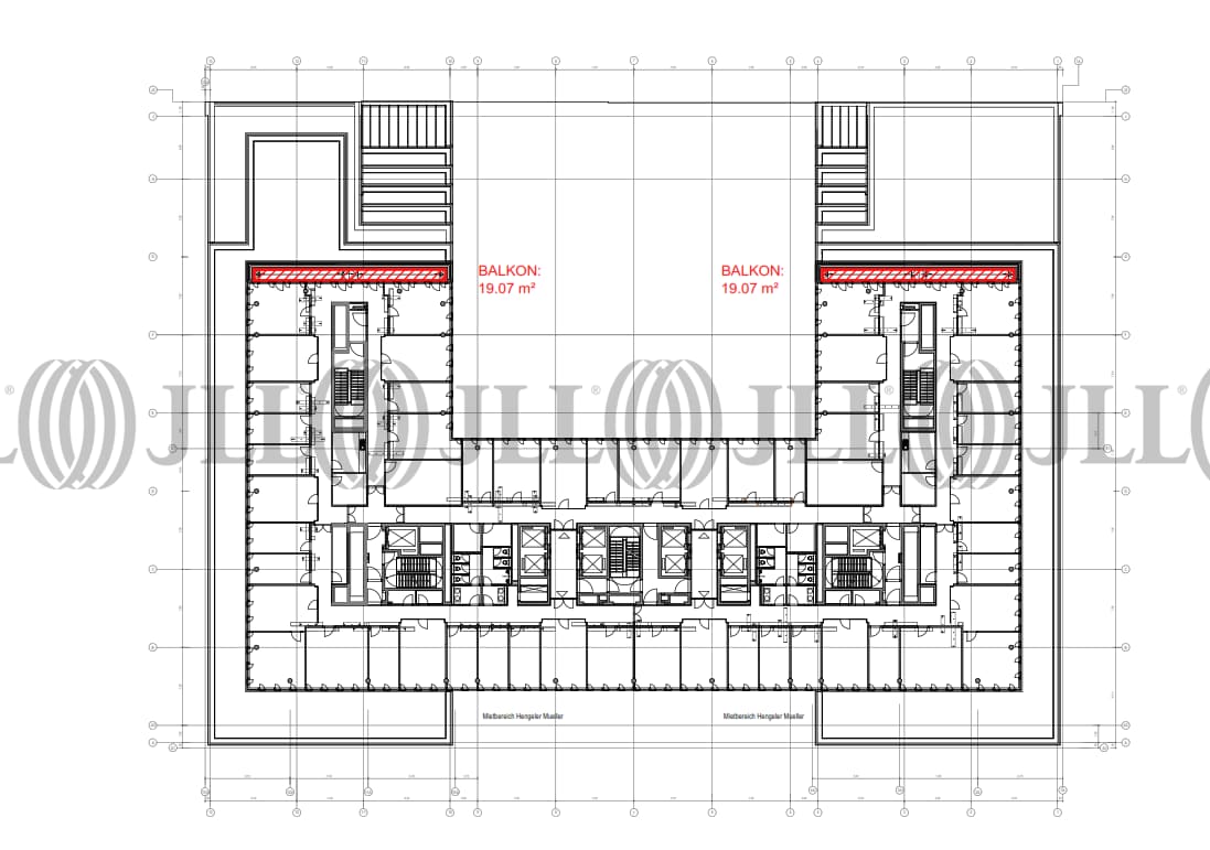
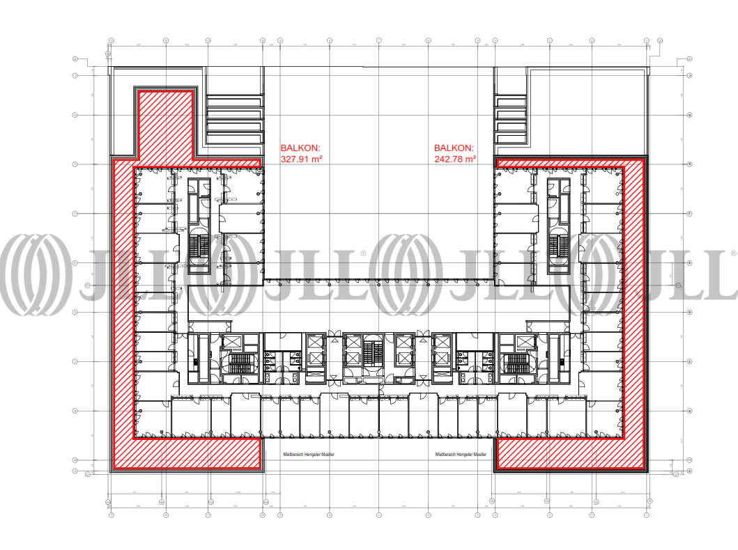
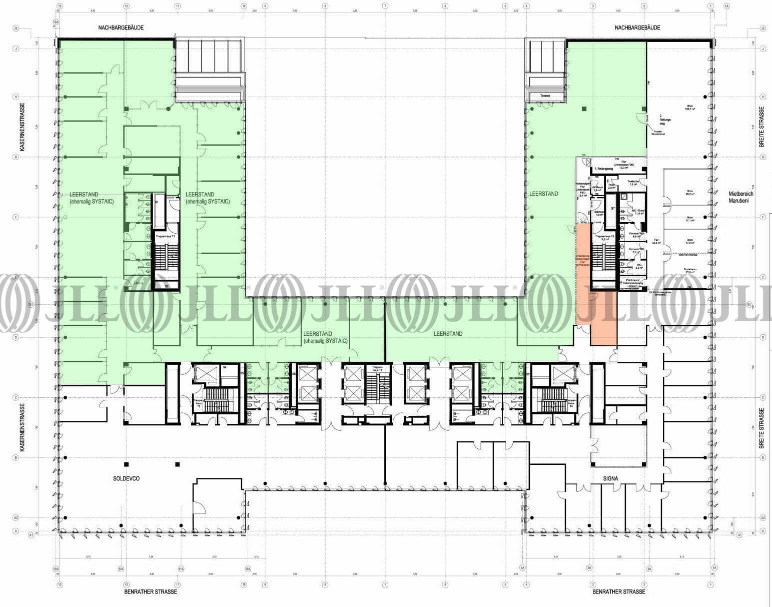
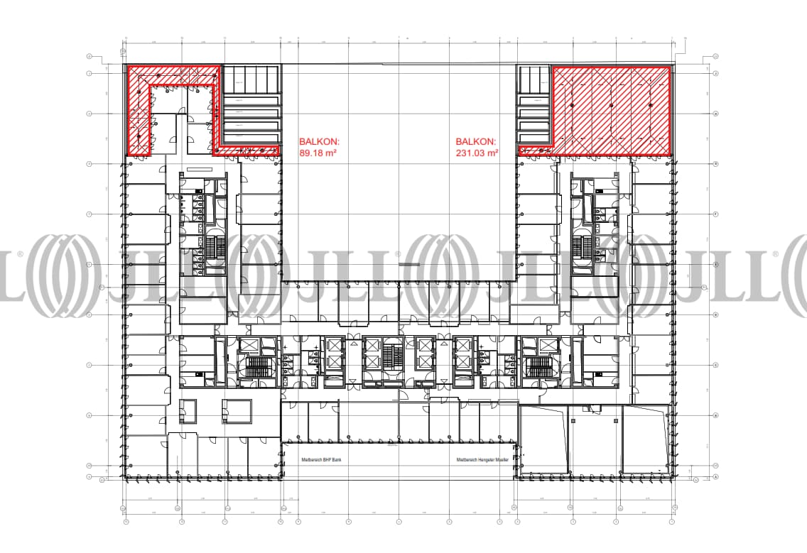
- Fläche589 - 17.283 m²
- VerfügbarkeitAuf Anfrage
- Objekt
- Ausstattung
- Lage und Verkehrsanbindung
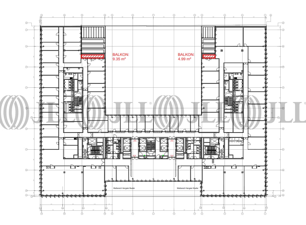
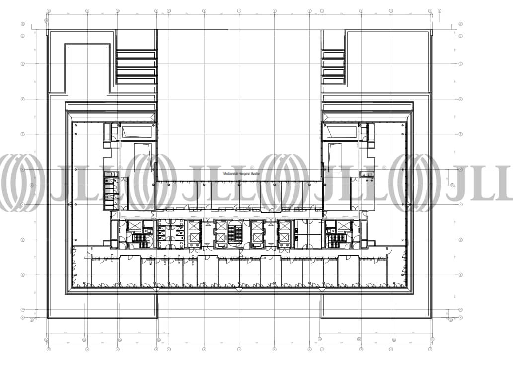
- Grundrisse
- Exposé herunterladen
- Ihr Kontakt
- Anfrage senden
Objekt
Die 10-geschossige Liegenschaft verfügt über modernste Büroflächenausstattung in bester Lage im Düsseldorfer Bankenviertel.
Zertifizierungen
Energieausweis
Für diese Liegenschaft liegt ein Bedarfsausweis vom 29.05.2019 vom Eigentümer/Vermieter vor. Die wesentlichen Energieträger der Liegenschaft sind KWK, Strom. Der Endenergiebedarf Strom beträgt 58.30 kWh/(m²*a). Der Endenergiebedarf Wärme beträgt 106.30 kWh/(m²*a).Verfügbare Fläche
Lage und Verkehrsanbindung
Das Objekt befindet sich in renommierter Lage mitten im Düsseldorfer CBD. Der CBD wird im Süden vom Gap 15 und im Norden vom Dreischeibenhaus begrenzt. Die Berliner Allee sowie Kasernenstraße/Heine-Allee bilden östlich und westlich die Grenze. Herzstück ist somit die berühmte Königsallee. Zahlreiche namhafte Unternehmen am Standort profitieren von der idealen ÖPNV-Anbindung sowie der hervorragenden Infrastruktur in Bezug auf die tägliche Nahversorgung.
- Hauptbahnhof, Düsseldorf, Fahrzeit: 7 min
- U-Bahn, Benrather Straße U71, U72, U83, Gehzeit: 1 min
- Bus, Heinrich-Heine-Allee SB50, 780, 782, 785, 805, 817, Gehzeit: 4 min
- Bundesautobahn, A 52, Fahrzeit: 6 min
- Bundesautobahn, A 46, Fahrzeit: 6 min
- Flughafen, Düsseldorf, Fahrzeit: 12 min
Ihr Kontakt

Richard Steimel
Ihr Kontakt






























