Büros
ID D0770Premium JLL
Provisionsfrei
Büroimmobilie - Düsseldorf, Stadtmitte - D0770
Stadtmitte, 40211, Düsseldorf, Nordrhein-Westfalen
Kontaktieren Sie uns für den Preis
- Fläche580 - 1.240 m²
- VerfügbarkeitSofort
- Objekt
- Ausstattung
- Lage und Verkehrsanbindung
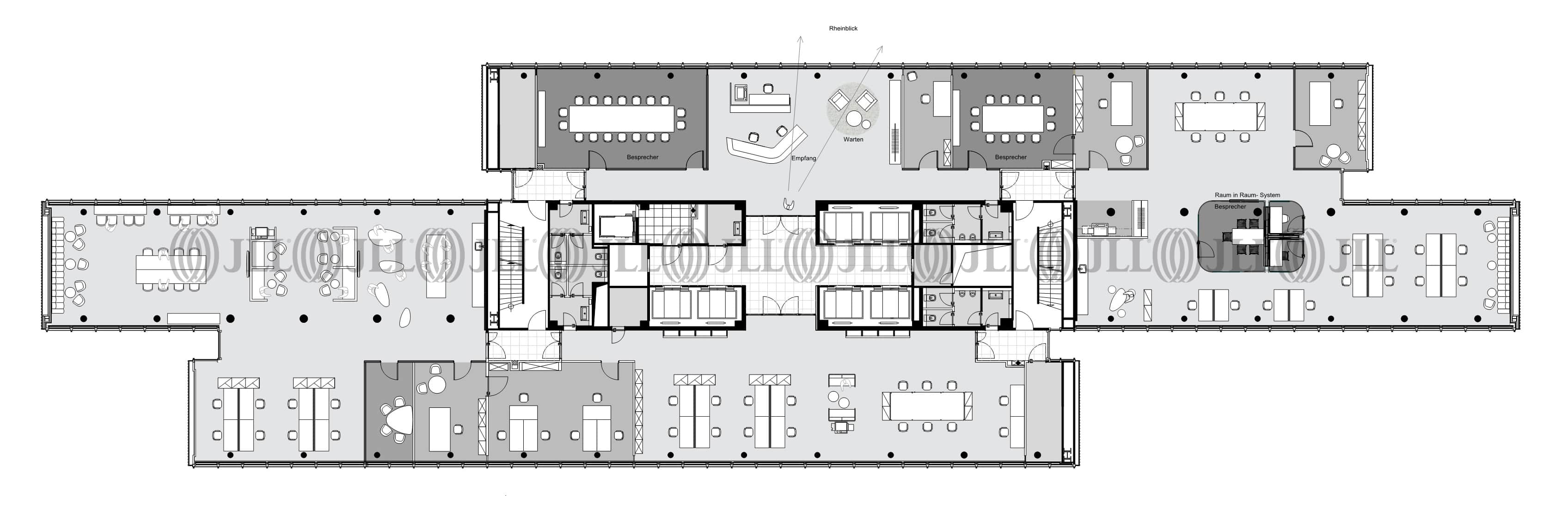
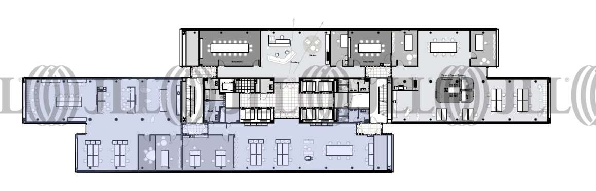
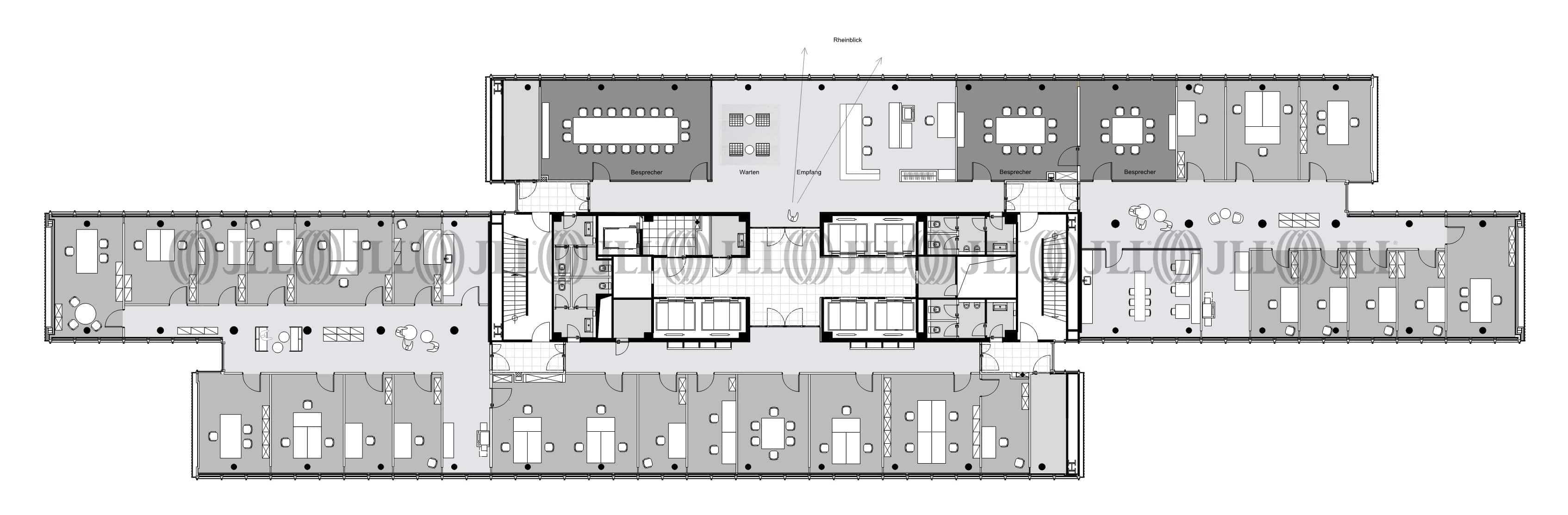
- Grundrisse
- Exposé herunterladen
- Ihr Kontakt
- Anfrage senden
Objekt
Das deutschlandweit berühmte, denkmalgeschützte Hochhaus Dreischeibenhaus wurde in den Jahren 2011 bis 2014 unter Regie des international bekannten Düsseldorfer Architekturbüros HPP Architekten einer Komplettsanierung unterzogen und bietet seinen Mietern einen hochwertigen Ausstattungsstandard in einem einzigartigen, die Stadtsilhouette prägenden Landmark mitten in der Düsseldorfer Innenstadt. Das Gebäude erstreckt sich über 26 oberirdische sowie 3 unterirdische Geschosse, wobei die im 1. und 2. Untergeschoss befindliche Tiefgarage über eine direkte Zufahrt an den Kö-Bogen-Tunnel angeschlossen ist. Neben effizienten Büroflächen mit flexiblen Aufteilungsmöglichkeiten schließt das Raumprogramm eine repräsentative Vorfahrt, eine charakteristische, zweigeschossige Lobby und eine spektakuläre Dachterrasse mit ein.
Zertifizierungen
Energieausweis
LEED: GoldFür diese Liegenschaft liegt ein Bedarfsausweis vom 21.11.2024 vom Eigentümer/Vermieter vor. Der wesentliche Energieträger der Liegenschaft ist KWK. Der Endenergiebedarf Strom beträgt 32.4 kWh/(m²*a). Der Endenergiebedarf Wärme beträgt 65.2 kWh/(m²*a).
Verfügbare Fläche
Lage und Verkehrsanbindung
Das Objekt befindet sich in renommierter Lage mitten im Düsseldorfer CBD. Der CBD wird im Süden vom Gap 15 und im Norden vom Dreischeibenhaus begrenzt. Die Berliner Allee sowie Kasernenstraße/Heinrich-Heine-Allee bilden östlich und westlich die Grenze. Herzstück ist somit die berühmte Königsallee. Zahlreiche namhafte Unternehmen am Standort profitieren von der idealen ÖPNV-Anbindung sowie der hervorragenden Infrastruktur in Bezug auf die tägliche Nahversorgung.
- Hauptbahnhof, Düsseldorf, Fahrzeit: 7 min
- U-Bahn, Schadowstraße U71, U72, U73, U83, Gehzeit: 2 min
- Straßenbahn/Tram, Schadowstraße 701, 705, 706, Gehzeit: 2 min
- Bus, Jacobistraße SB55, 752, 754, Gehzeit: 5 min
- Bundesautobahn, A 44, Fahrzeit: 6 min
- Bundesautobahn, A 52, Fahrzeit: 8 min
- Flughafen, Düsseldorf, Fahrzeit: 9 min
Ihr Kontakt

Janice Lehmann
Ihr Kontakt












