Büros
ID D0741Aktualisiert
Büroimmobilie - Dortmund, Innenstadt-West - D0741
Innenstadt-West, 44137, Dortmund, Nordrhein-Westfalen
Provisionspflichtig: bei Anmietung 3 Netto-Monatsmieten zzgl. gesetzlicher Umsatzsteuer.** der Wert kann je nach Vertragslaufzeit variieren.
Kontaktieren Sie uns für den Preis
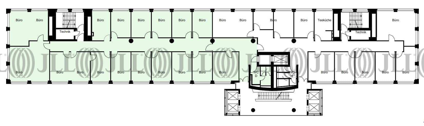
- Fläche190 - 2.434 m²
- VerfügbarkeitSofort
- Objekt
- Ausstattung
- Lage und Verkehrsanbindung
- Grundrisse
- Exposé herunterladen
- Ihr Kontakt
- Anfrage senden
Objekt
Das Objekt ist eine beeindruckende, 20-geschossige Immobilie zentral gelegen am Dortmunder Hauptbahnhof. Die Immobilie ist optimal an das Verkehrsnetz sowie die Nahversorgung angebunden.
Verfügbare Fläche
Lage und Verkehrsanbindung
Das Objekt befindet sich in exponierter Lage in Dortmund am Königswall. Die zentrale Innenstadtlage und die unmittelbare Nähe zum Hauptbahnhof garantieren kurze Wege. Einkaufsmöglichkeiten finden sich auf Dortmunds einzelhandelsstarkem „Westenhellweg“, ÖPNV-Anbindungen an die Metropolen der Region befinden sich vor der Haustür. Der Standort garantiert eine optimale Erreichbarkeit durch die herausragende regionale und überregionale Verkehrsanbindung.
- Flughafen, Düsseldorf, Fahrzeit: 40 min
- Bundesautobahn, A 40, Fahrzeit: 5 min
- Bundesautobahn, A 45, Fahrzeit: 8 min
- Bus, Hauptbahnhof 453, 456, 460, Gehzeit: 2 min
- Hauptbahnhof, Dortmund, Gehzeit: 2 min
- S-Bahn, Hauptbahnhof S1, S5, Gehzeit: 2 min
- U-Bahn, Hauptbahnhof U41, U45, U47, U49, Gehzeit: 2 min
Ihr Kontakt

Martin Jahnke
Ihr Kontakt














