Büros
ID D0712Provisionsfrei
Aktualisiert
Büroimmobilie - Düsseldorf, Flingern Nord - D0712
Flingern Nord, 40235, Düsseldorf, Nordrhein-Westfalen
Kontaktieren Sie uns für den Preis
- Fläche272 - 1.911 m²
- VerfügbarkeitAuf Anfrage
- Objekt
- Ausstattung
- Lage und Verkehrsanbindung
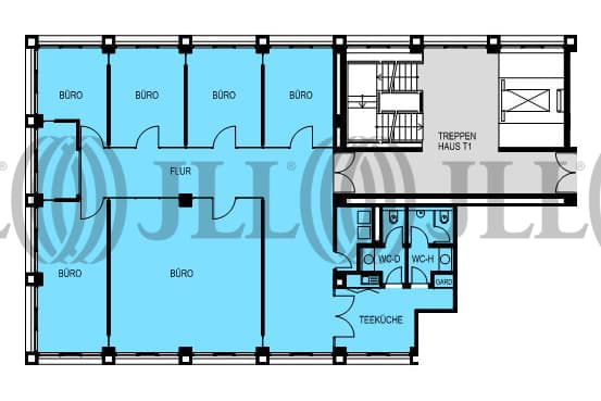
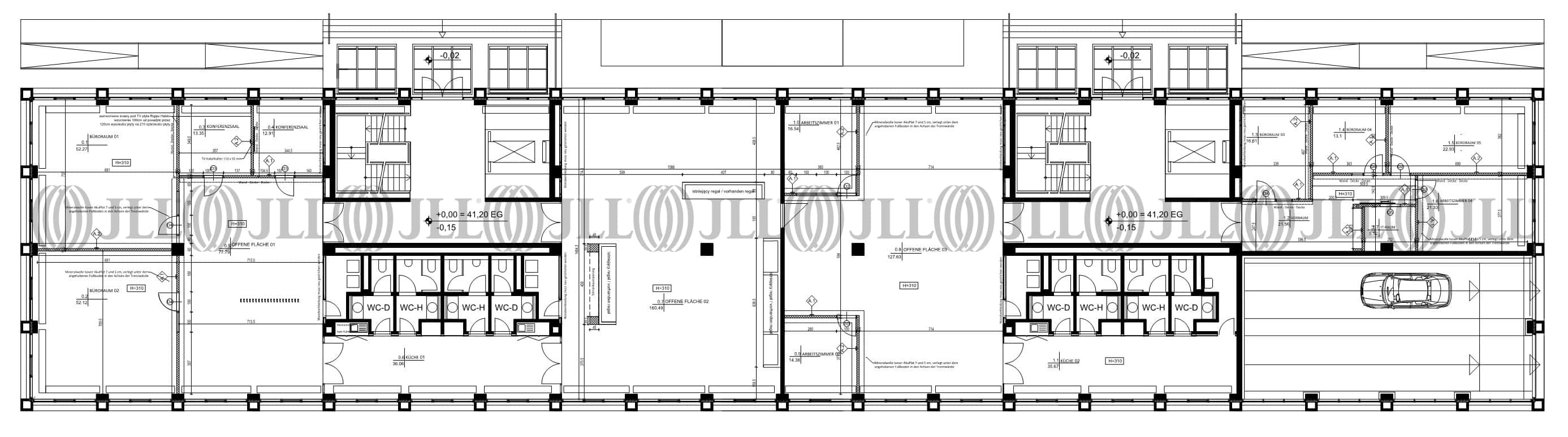
- Grundrisse
- Exposé herunterladen
- Ihr Kontakt
- Anfrage senden
Objekt
Die Liegenschaft aus dem Jahr 2003 verfügt über eine auffallende & zeitlose Sichtbetonfassade. Die bodentiefen Fenster, die offene Raumgestaltung und die hochmoderne Innenausstattung der Fläche schaffen eine ausgezeichnete Arbeitsatmosphäre und lassen Spielraum für jegliche Bürokonzepte. Das Gebäude bietet Offenheit, ein lebendiges Miteinander und eine hohe Aufenthaltsqualität für Denker und Kreative.
Zertifizierungen
Energieausweis
Für diese Liegenschaft liegt ein Bedarfsausweis vom 11.11.2025 vom Eigentümer/Vermieter vor. Die wesentlichen Energieträger der Liegenschaft sind Erdgas schwer, Strom. Der Endenergiebedarf Strom beträgt 22,2 kWh/(m²*a). Der Endenergiebedarf Wärme beträgt 111,1 kWh/(m²*a).Verfügbare Fläche
Lage und Verkehrsanbindung
Das Objekt liegt im östlichen Stadtteil Grafenberg und verfügt über eine sehr gute ÖPNV-Anbindung in Richtung City. Namhafte Unternehmen haben sich bereits im attraktiven Umfeld bestehend aus Büro- und Wohngebieten eingefunden. Der Grafenberger Wald bildet im Osten des Gebiets eine „Grüne Oase“. Eine Tankstelle befindet sich in der Nähe.
- Flughafen, Düsseldorf, Fahrzeit: 14 min
- Bundesautobahn, A 52, Fahrzeit: 9 min
- Bundesautobahn, A 44, Fahrzeit: 12 min
- Bus, Daelenstraße 725, Gehzeit: 2 min
- U-Bahn, Schlüterstraße / Arbeitsagentur U72, U73, U83, Gehzeit: 9 min
- Straßenbahn/Tram, Schlüterstraße / Arbeitsagentur 709, Gehzeit: 9 min
- Hauptbahnhof, Düsseldorf, Fahrzeit: 10 min
Ihr Kontakt

Anna-Louisa Kratochvil
Ihr Kontakt




















