Büros
ID D0700Provisionsfrei
Aktualisiert
Büroimmobilie - Düsseldorf, Lichtenbroich - D0700
Lichtenbroich, 40472, Düsseldorf, Nordrhein-Westfalen
12,95 € / m²
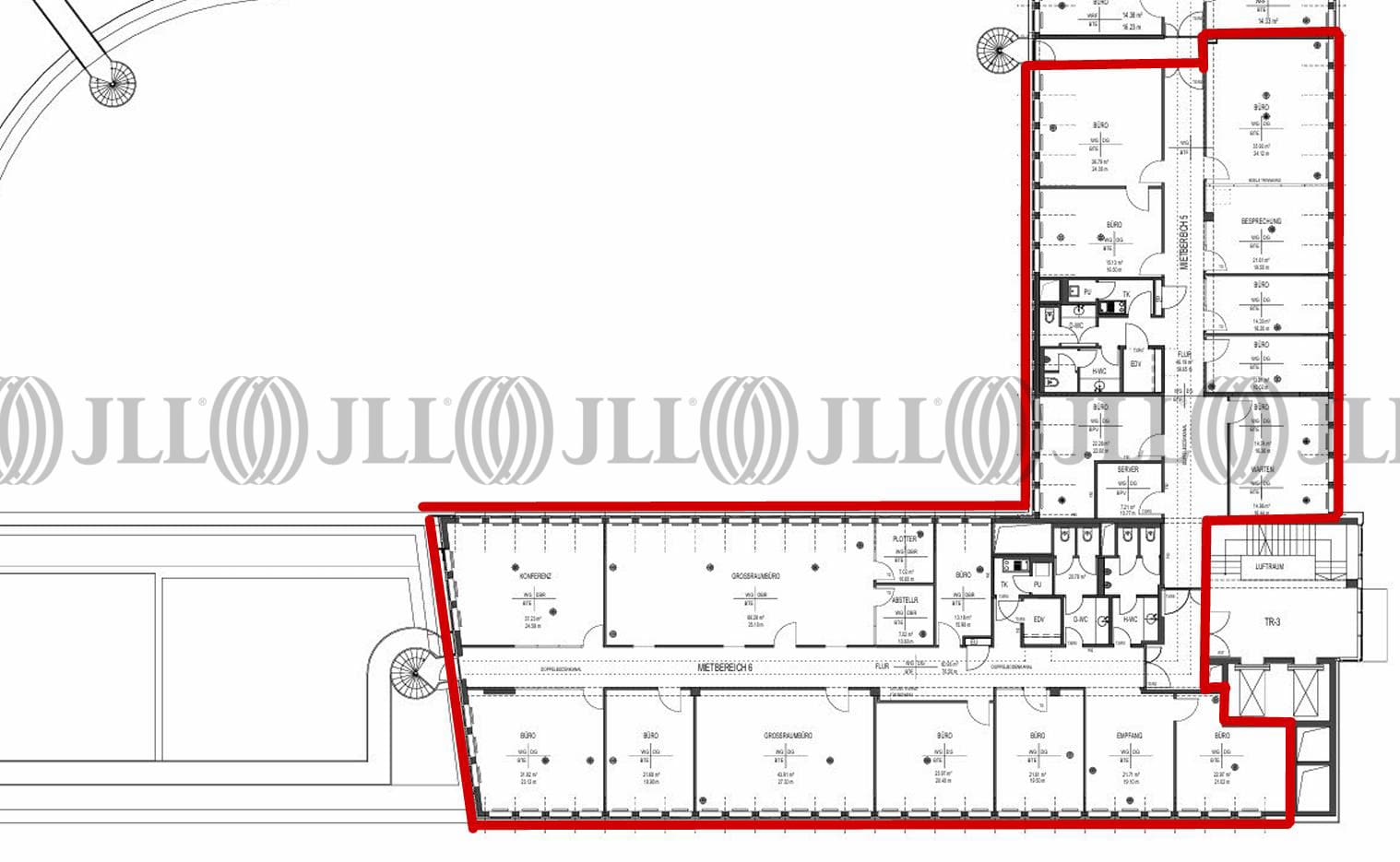
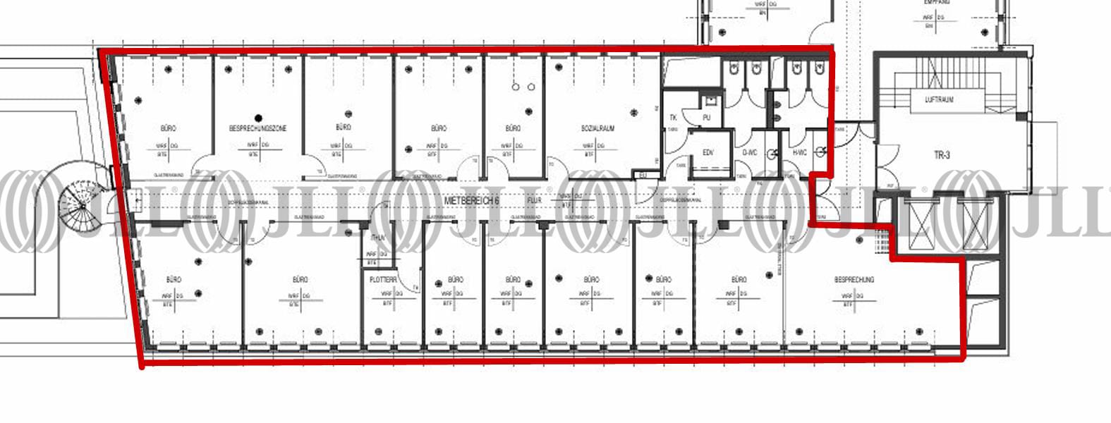
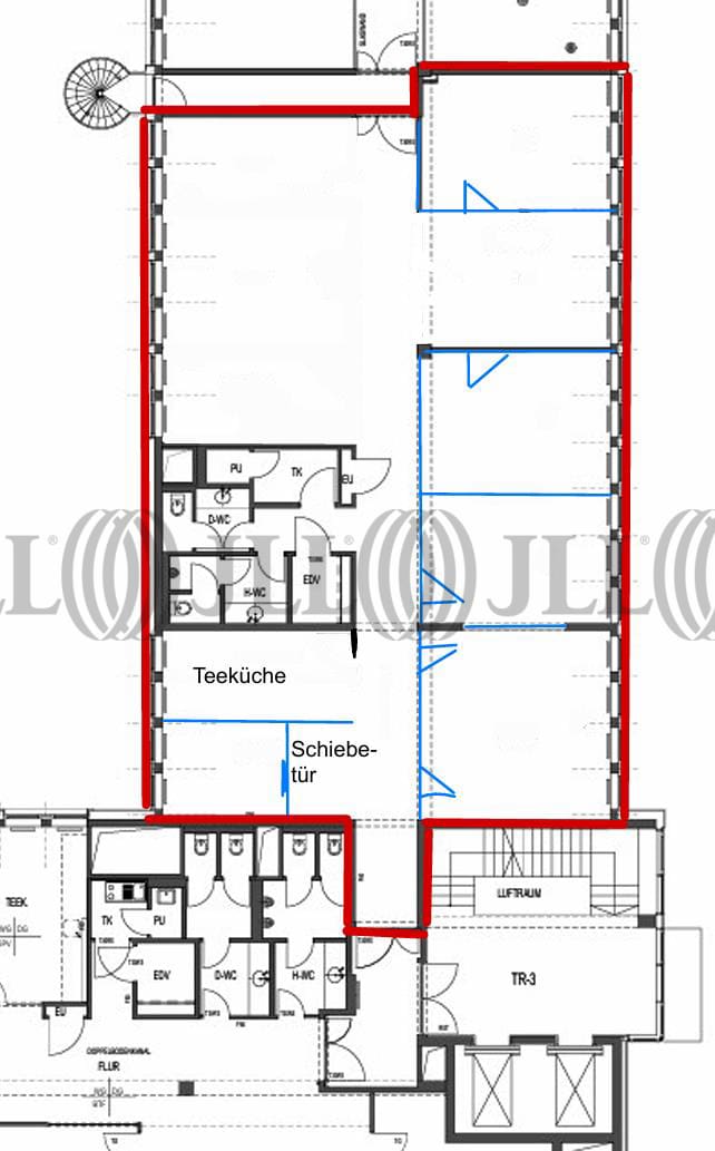
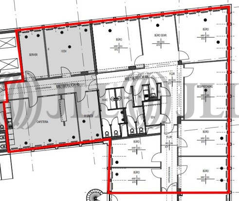
- Fläche296 - 3.478 m²
- VerfügbarkeitSofort
- Objekt
- Ausstattung
- Lage und Verkehrsanbindung
- Grundrisse
- Exposé herunterladen
- Ihr Kontakt
- Anfrage senden
Objekt
Das Gebäude ist hinsichtlich Teilbarkeit und Flächenzuschnitt äußerst flexibel angelegt. Raumhohe Fenster und eine Natursteinfassade prägen diese repräsentative Liegenschaft.
Zertifizierungen
Energieausweis
Für diese Liegenschaft liegt ein Bedarfsausweis vom 24.08.2021 vom Eigentümer/Vermieter vor. Die wesentlichen Energieträger der Liegenschaft sind Gas, Strom. Der Endenergiebedarf Strom beträgt 32 kWh/(m²*a). Der Endenergiebedarf Wärme beträgt 108 kWh/(m²*a).Verfügbare Fläche
Lage und Verkehrsanbindung
Die Liegenschaft befindet sich in direkter Nähe des Düsseldorfer Flughafens und bietet damit, besonders international tätigen Unternehmen, beste Voraussetzungen. Auch das Umland ist durch die gute Anbindung an das Autobahnnetz schnell erreichbar. Der Airport Düsseldorf-International bietet zudem zahlreiche Einkaufsmöglichkeiten und ein breites Angebot an Gastronomie.
- Flughafen, Düsseldorf, Fahrzeit: 6 min
- Bundesautobahn, A 52, Fahrzeit: 2 min
- Bundesautobahn, A 52, Fahrzeit: 3 min
- Hauptbahnhof, Düsseldorf, Fahrzeit: 12 min
- Bus, Mintarder Weg 752, 754, Gehzeit: 3 min
- S-Bahn, Unterrath S1, S11, Gehzeit: 6 min
- Straßenbahn/Tram, Unterrath 707, 715, Gehzeit: 6 min
Ihr Kontakt

Anna-Louisa Kratochvil
Ihr Kontakt












