Büros
ID D0680Büroimmobilie - Düsseldorf, Kaiserswerth - D0680
Kaiserswerth, 40489, Düsseldorf, Nordrhein-Westfalen
Provisionspflichtig: bei Anmietung 3 Netto-Monatsmieten zzgl. gesetzlicher Umsatzsteuer.** der Wert kann je nach Vertragslaufzeit variieren.
Kontaktieren Sie uns für den Preis
- Fläche210 m²
- VerfügbarkeitSofort
- Objekt
- Ausstattung
- Lage und Verkehrsanbindung
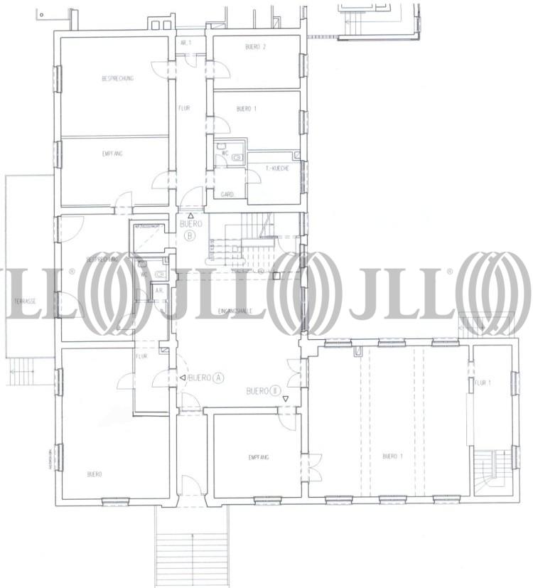
- Grundriss
- Exposé herunterladen
- Ihr Kontakt
- Anfrage senden
Objekt
Die denkmalgeschützte, äußerst repräsentative Liegenschaft verfügt über sehr attraktive und hochwertig ausgestattete Büroflächen, die eine flexible Nutzung ermöglichen.´Großzügige Räumlichkeiten mit hohen Decken und Sprossenfenstern vermitteln eine besondere Arbeitsatmosphäre. Der hohe Ausbaustandard unterstreicht die Hochwertigkeit zusätzlich.
Verfügbare Fläche
Lage und Verkehrsanbindung
Die Liegenschaft befindet sich im Düsseldorfer Stadtteil Kaiserswerth. In unmittelbarer Nähe befindet sich das Zentrum mit vielen Restaurants und Einkaufsmöglichkeiten. Des Weiteren besticht die Lage durch die nahe gelegene Anbindungen zur Autobahn. Eine Tankstelle befindet sich in der Nähe. Dienstleister des täglichen Bedarfs befinden sich in der Nähe.
- Flughafen, Düsseldorf, Fahrzeit: 10 min
- Bundesautobahn, A 52, Fahrzeit: 7 min
- Bundesautobahn, A 44, Fahrzeit: 7 min
- Bundesautobahn, A 59, Fahrzeit: 7 min
- Bundesautobahn, A 524, Fahrzeit: 8 min
- Bus, Bushaltestelle Kalkumer Schloßallee Buslinien 728, 749, 751, Gehzeit: 10 min
Ihr Kontakt

Anna-Louisa Kratochvil
Ihr Kontakt










