Büros
ID D0672Büroimmobilie - Düsseldorf, Mörsenbroich - D0672
Mörsenbroich, 40470, Düsseldorf, Nordrhein-Westfalen
Provisionspflichtig: bei Anmietung 3 Netto-Monatsmieten zzgl. gesetzlicher Umsatzsteuer.** der Wert kann je nach Vertragslaufzeit variieren.
10,50 € - 12 € / m²
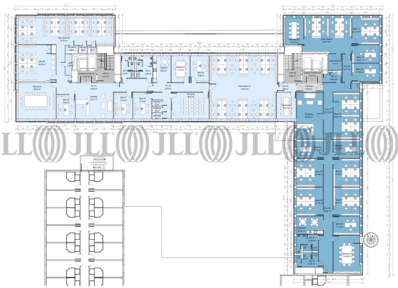
- Fläche206 - 3.838 m²
- VerfügbarkeitSofort
- Objekt
- Ausstattung
- Lage und Verkehrsanbindung
- Grundrisse
- Exposé herunterladen
- Ihr Kontakt
- Anfrage senden
Objekt
Dieses 5-geschossige, sehr verkehrsgünstig gelegene Bürohaus bietet einen hervorragenden Standard und als Highlight eine ca. 150 m² Terrasse im Penthouse.
Zertifizierungen
Energieausweis
Für diese Liegenschaft liegt ein Verbrauchsausweis vom 2015-12-17 vom Eigentümer/Vermieter vor. Der wesentliche Energieträger der Liegenschaft ist Strom. Der Endenergieverbrauch Strom beträgt 33.00 kWh/(m²*a). Der Endenergieverbrauch Wärme beträgt 147.00 kWh/(m²*a).Verfügbare Fläche
Lage und Verkehrsanbindung
Das Bürogebäude liegt im nördlichen Stadtteil Mörsenbroich. Die Lage am „Nördlichen Zubringer“ sorgt für eine perfekte Anbindung an das Autobahnnetz, so dass Flughafen und Messe schnell zu erreichen sind.
- Flughafen, Düsseldorf, Fahrzeit: 7 min
- Bundesautobahn, A 52, Fahrzeit: 3 min
- Bundesautobahn, A 44, Fahrzeit: 4 min
- Bus, Heinrichstraße SB55, 733, 752, 754, 756, 758, 776, 834, Gehzeit: 5 min
- Straßenbahn/Tram, Heinrichstraße 701, 708, Gehzeit: 5 min
- Hauptbahnhof, Düsseldorf, Fahrzeit: 12 min
Ihr Kontakt

Anna-Louisa Kratochvil
Ihr Kontakt



