Büros
ID D0669Provisionsfrei
Büroimmobilie - Düsseldorf, Rath - D0669
Rath, 40472, Düsseldorf, Nordrhein-Westfalen
12,50 € / m²
- Fläche794 - 1.588 m²
- VerfügbarkeitSofort
- Objekt
- Ausstattung
- Lage und Verkehrsanbindung
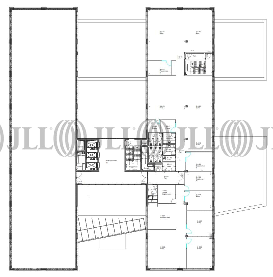
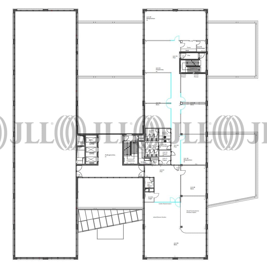
- Grundrisse
- Exposé herunterladen
- Ihr Kontakt
- Anfrage senden
Objekt
Das Bürohaus W² verfügt über eine hochwertige Steinfassade. Aufgrund der Gebäudestruktur lassen sich sowohl Einzelbüros als auch Gruppenbüros optimal darstellen. Die Erschließung erfolgt über einen hellen, modernen, repräsentativen Eingangsbereich.
Zertifizierungen
Energieausweis
BREEAM: GoodFür diese Liegenschaft liegt ein Verbrauchsausweis vom 2019-10-01 vom Eigentümer/Vermieter vor. Der wesentliche Energieträger der Liegenschaft ist Erdgas schwer. Der Endenergieverbrauch Strom beträgt 19.00 kWh/(m²*a). Der Endenergieverbrauch Wärme beträgt 82.00 kWh/(m²*a).
Verfügbare Fläche
Lage und Verkehrsanbindung
Das Bürogebäude liegt im nördlichen Stadtteil Rath. Die Nähe zum „Nördlichen Zubringer“ sorgt für eine perfekte Anbindung an das Autobahnnetz, sodass Flughafen und Messe schnell zu erreichen sind. Dienstleister des täglichen Bedarfs befinden sich in der Nähe.
- Hauptbahnhof, Düsseldorf, Fahrzeit: 12 min
- S-Bahn, Rath S6, Gehzeit: 6 min
- Straßenbahn/Tram, Rath 701, Gehzeit: 6 min
- Bundesautobahn, A 52, Fahrzeit: 5 min
- Bundesautobahn, A 52, Fahrzeit: 5 min
- Flughafen, Düsseldorf, Fahrzeit: 7 min
Ihr Kontakt

Richard Steimel
Ihr Kontakt









