Büros
ID D0667Aktualisiert
Büroimmobilie - Düsseldorf, Friedrichstadt - D0667
Friedrichstadt, 40215, Düsseldorf, Nordrhein-Westfalen
Provisionspflichtig: bei Anmietung 3 Netto-Monatsmieten zzgl. gesetzlicher Umsatzsteuer.** der Wert kann je nach Vertragslaufzeit variieren.
17,50 € / m²
- Fläche106 - 213 m²
- VerfügbarkeitSofort
- Objekt
- Ausstattung
- Lage und Verkehrsanbindung
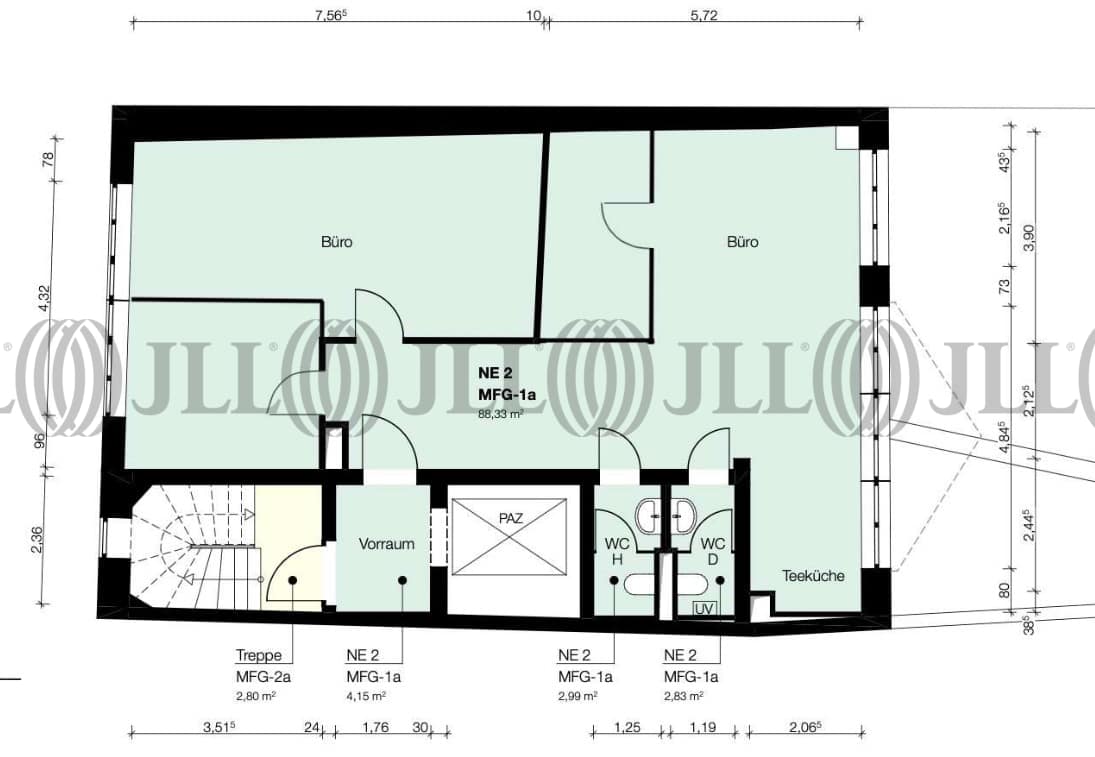
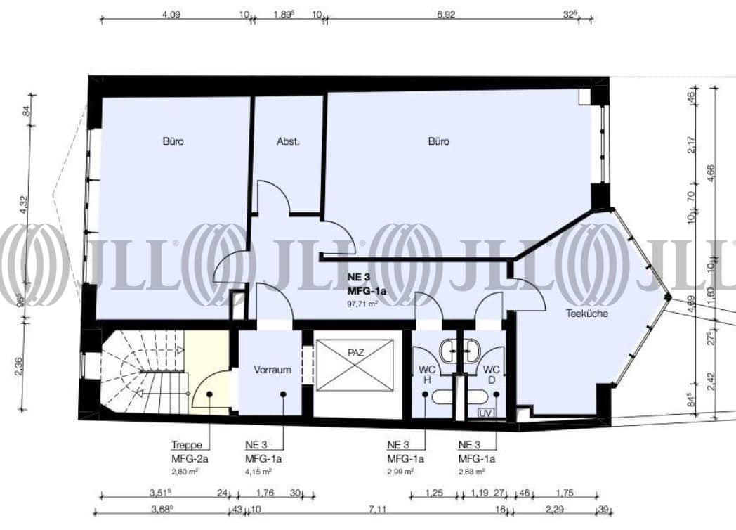
- Grundrisse
- Exposé herunterladen
- Ihr Kontakt
- Anfrage senden
Objekt
Die Flächen verfügen über eine zeitgemäße und moderne Ausstattung. Im Erdgeschoss befinden sich zwei attraktive Innenhöfe.
Zertifizierungen
Energieausweis
Für diese Liegenschaft liegt ein Bedarfsausweis vom 2019-05-23 vom Eigentümer/Vermieter vor. Der wesentliche Energieträger der Liegenschaft ist Erdgas schwer. Der Endenergiebedarf Strom beträgt 19.20 kWh/(m²*a). Der Endenergiebedarf Wärme beträgt 187.20 kWh/(m²*a).Verfügbare Fläche
Lage und Verkehrsanbindung
Die Liegenschaft befindet sich in zentraler Innenstadtlage von Düsseldorf. Dieser Standort zeichnet sich besonders durch eine sehr gute Infrastruktur und ÖPNV Anbindung aus. Zahlreiche Einkaufsmöglichkeiten, Geschäfte des alltäglichen Bedarfs sowie Restaurants und Ärzte sind in unmittelbarer Nähe zu finden. Die Altstadt direkt am Rhein gelegen sowie die beliebte Einkaufsmeile Königsallee laden zum Verweilen ein und liegen in fußläufiger Entfernung. Dienstleister des täglichen Bedarfs befinden sich in der Nähe.
- Flughafen, Düsseldorf, Fahrzeit: 13 min
- Bundesautobahn, A 52, Fahrzeit: 8 min
- Bundesautobahn, A 46, Fahrzeit: 9 min
- Hauptbahnhof, Düsseldorf, Fahrzeit: 2 min
- U-Bahn, Graf-Adolf-Platz U71, U72, U73, U83, Gehzeit: 3 min
- Bus, Graf-Adolf-Platz SB85, 726, Gehzeit: 3 min
- Straßenbahn/Tram, Graf-Adolf-Platz 706, 708, 709, Gehzeit: 3 min
Ihr Kontakt

Nell Ewert
Ihr Kontakt







