Büros
ID D0663Provisionsfrei
Büroimmobilie - Düsseldorf, Lichtenbroich - D0663
Lichtenbroich, 40472, Düsseldorf, Nordrhein-Westfalen
13,50 € - 15 € / m²
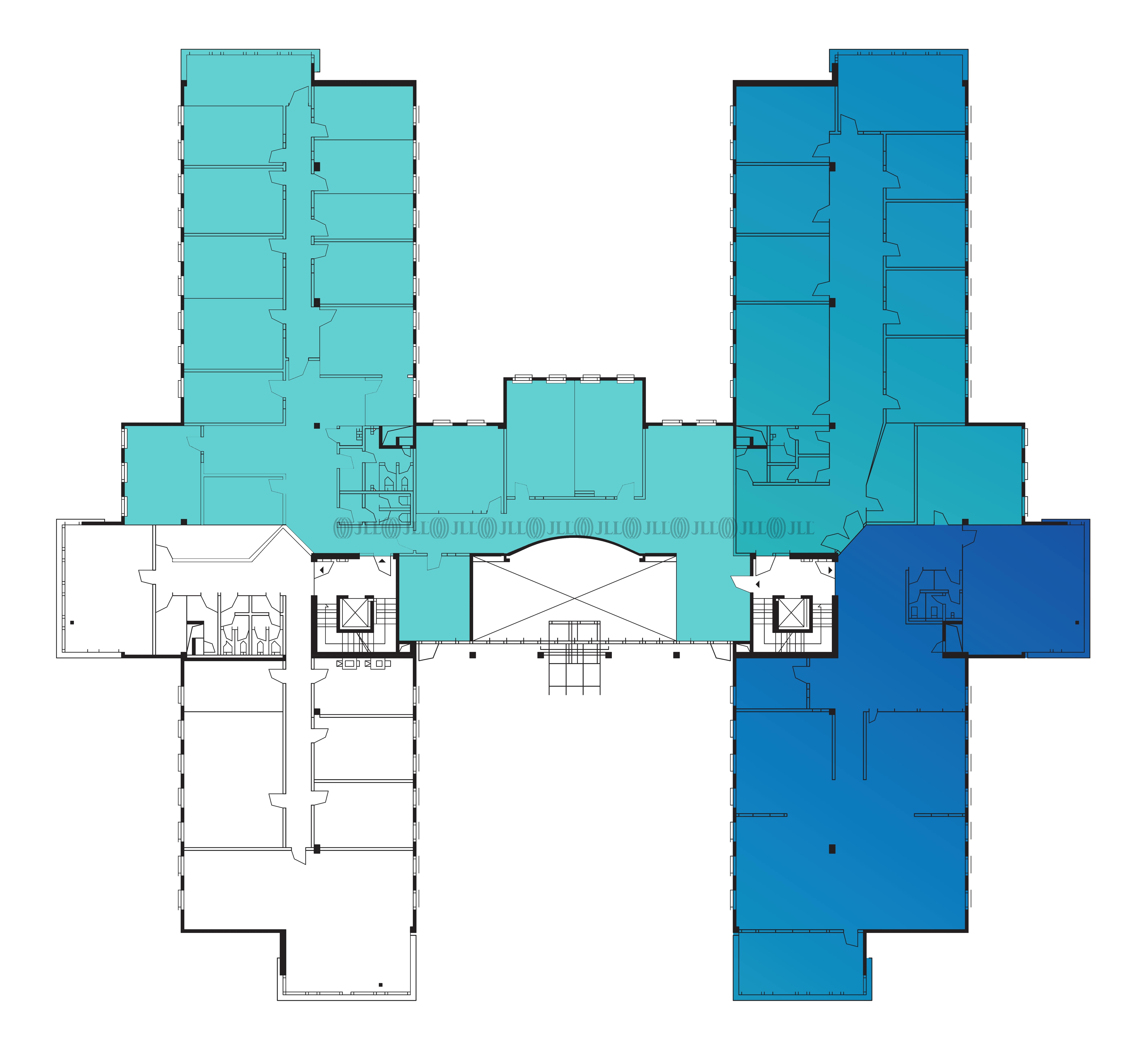
- Fläche314 - 1.334 m²
- VerfügbarkeitSofort
- Objekt
- Ausstattung
- Lage und Verkehrsanbindung
- Grundrisse
- Exposé herunterladen
- Ihr Kontakt
- Anfrage senden
Objekt
Das Objekt wurde 2002 gebaut und besticht durch seine hochwertige und moderne Ausstattungsstandards. Auch die vielen Fenster, welche viel Licht hereinlassen, machen die Büroflächen in Kombination mit den hohen Decken sehr attraktiv.
Zertifizierungen
Energieausweis
Für diese Liegenschaft liegt ein Verbrauchsausweis vom 2019-09-06 vom Eigentümer/Vermieter vor. Der wesentliche Energieträger der Liegenschaft ist Erdgas leicht. Der Endenergieverbrauch Strom beträgt 31.80 kWh/(m²*a). Der Endenergieverbrauch Wärme beträgt 53.90 kWh/(m²*a).Verfügbare Fläche
Lage und Verkehrsanbindung
Die Liegenschaft befindet sich in direkter Nähe des Düsseldorfer Flughafens und bietet damit, besonders international tätigen Unternehmen, beste Voraussetzungen. Auch das Umland ist durch die gute Anbindung an das Autobahnnetz schnell erreichbar. Der Airport Düsseldorf-International bietet zudem zahlreiche Einkaufsmöglichkeiten und ein breites Angebot an Gastronomie.
- Flughafen, Düsseldorf, Fahrzeit: 5 min
- Bundesautobahn, A 52, Fahrzeit: 3 min
- Bundesautobahn, A 44, Fahrzeit: 4 min
- Bus, Mintarder Weg / Bezirkssportanlage 752, 754, 810, Gehzeit: 4 min
- Hauptbahnhof, Düsseldorf, Fahrzeit: 12 min
- S-Bahn, Unterrath S1, S11, Gehzeit: 8 min
- Straßenbahn/Tram, Unterrath 705, 707, Gehzeit: 8 min
Ihr Kontakt

Janice Lehmann
Ihr Kontakt







