Büros
ID D0660Provisionsfrei
Büroimmobilie - Düsseldorf, Carlstadt - D0660
Carlstadt, 40213, Düsseldorf, Nordrhein-Westfalen
35 € / m²
- Fläche275 - 695 m²
- Verfügbarkeit01.10.2026
- Objekt
- Ausstattung
- Lage und Verkehrsanbindung
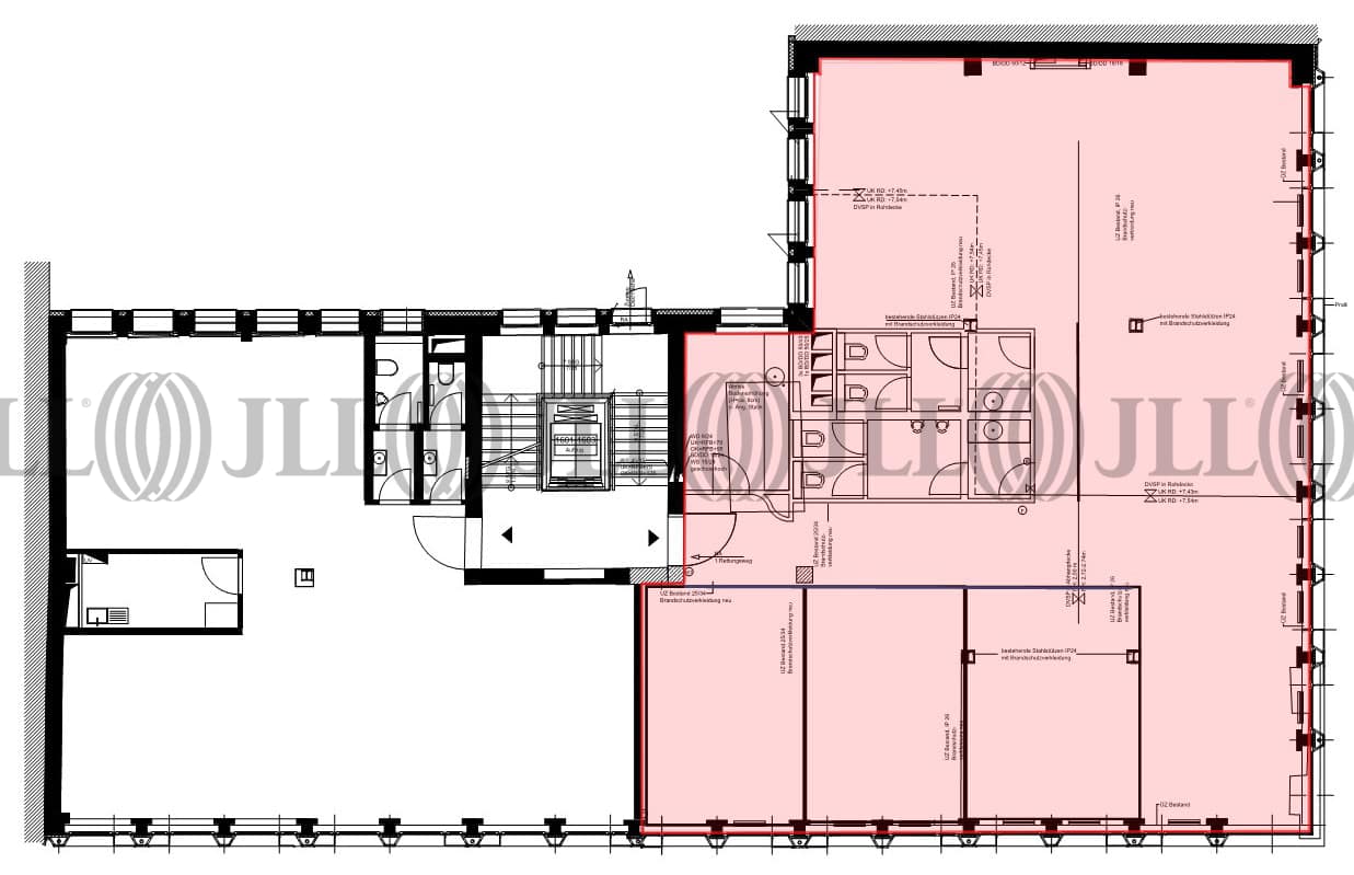
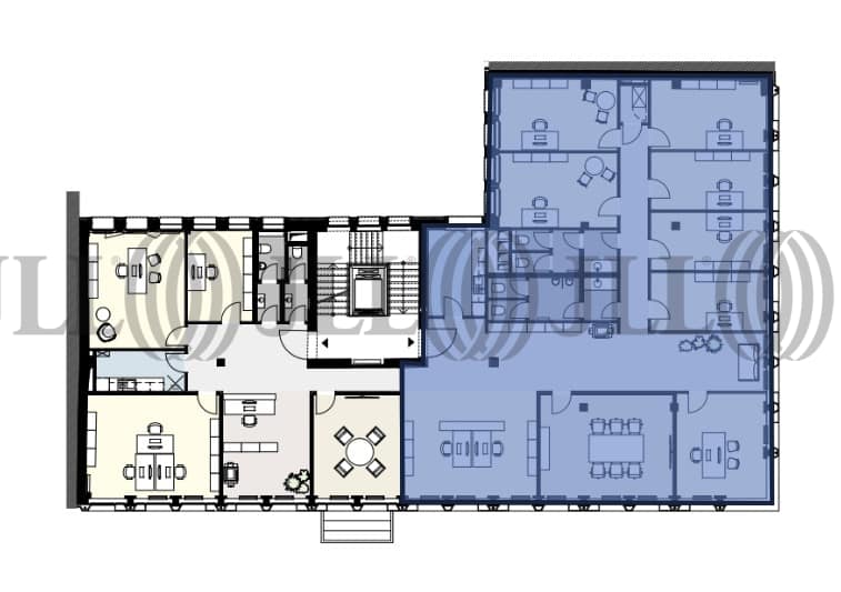
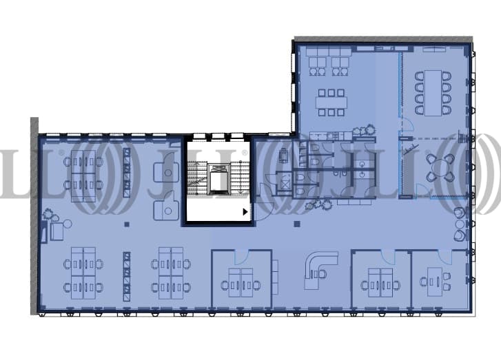
- Grundrisse
- Exposé herunterladen
- Ihr Kontakt
- Anfrage senden
Objekt
Diese 8-geschossige Liegenschaft wurde ab 2009 umfangreich saniert und erweitert. Seit Fertigstellung in der zweiten Jahreshälfte 2010 bietet das Büro- und Geschäftshaus neben einer hochwertigen und modernen Ausstattung, ein Höchstmaß an Effizienz hinsichtlich der Raumaufteilung.
Zertifizierungen
Energieausweis
LEED: GoldFür diese Liegenschaft liegt ein Bedarfsausweis vom 2017-03-22 vom Eigentümer/Vermieter vor. Der wesentliche Energieträger der Liegenschaft ist KWK. Der Endenergiebedarf Strom beträgt 23.50 kWh/(m²*a). Der Endenergiebedarf Wärme beträgt 93.00 kWh/(m²*a).
Verfügbare Fläche
Lage und Verkehrsanbindung
Das Objekt befindet sich in renommierter Lage mitten im Düsseldorfer CBD. Der CBD wird im Süden vom Gap 15 und im Norden vom Dreischeibenhaus begrenzt. Die Berliner Allee sowie Kasernenstraße / Heinrich-Heine-Allee bilden östlich und westlich die Grenze. Herzstück ist somit die berühmte Königsallee. Zahlreiche namhafte Unternehmen am Standort profitieren von der idealen ÖPNV-Anbindung sowie der hervorragenden Infrastruktur in Bezug auf die tägliche Nahversorgung. Dienstleister des täglichen Bedarfs befinden sich in der Nähe.
- Hauptbahnhof, Düsseldorf, Fahrzeit: 5 min
- U-Bahn, Benrather Straße U71, U72, U73, U83, Gehzeit: 1 min
- Bus, Benrather Straße SB50, 780, 782, 785, Gehzeit: 1 min
- Bundesautobahn, A 52, Fahrzeit: 6 min
- Bundesautobahn, A 46, Fahrzeit: 6 min
- Flughafen, Düsseldorf, Fahrzeit: 13 min
Ihr Kontakt

Anna-Louisa Kratochvil
Ihr Kontakt























