Büros
ID D0655Provisionsfrei
Büroimmobilie - Düsseldorf, Holthausen - D0655
Holthausen, 40589, Düsseldorf, Nordrhein-Westfalen
Kontaktieren Sie uns für den Preis
- Fläche130 - 2.727 m²
- VerfügbarkeitSofort
- Objekt
- Ausstattung
- Lage und Verkehrsanbindung
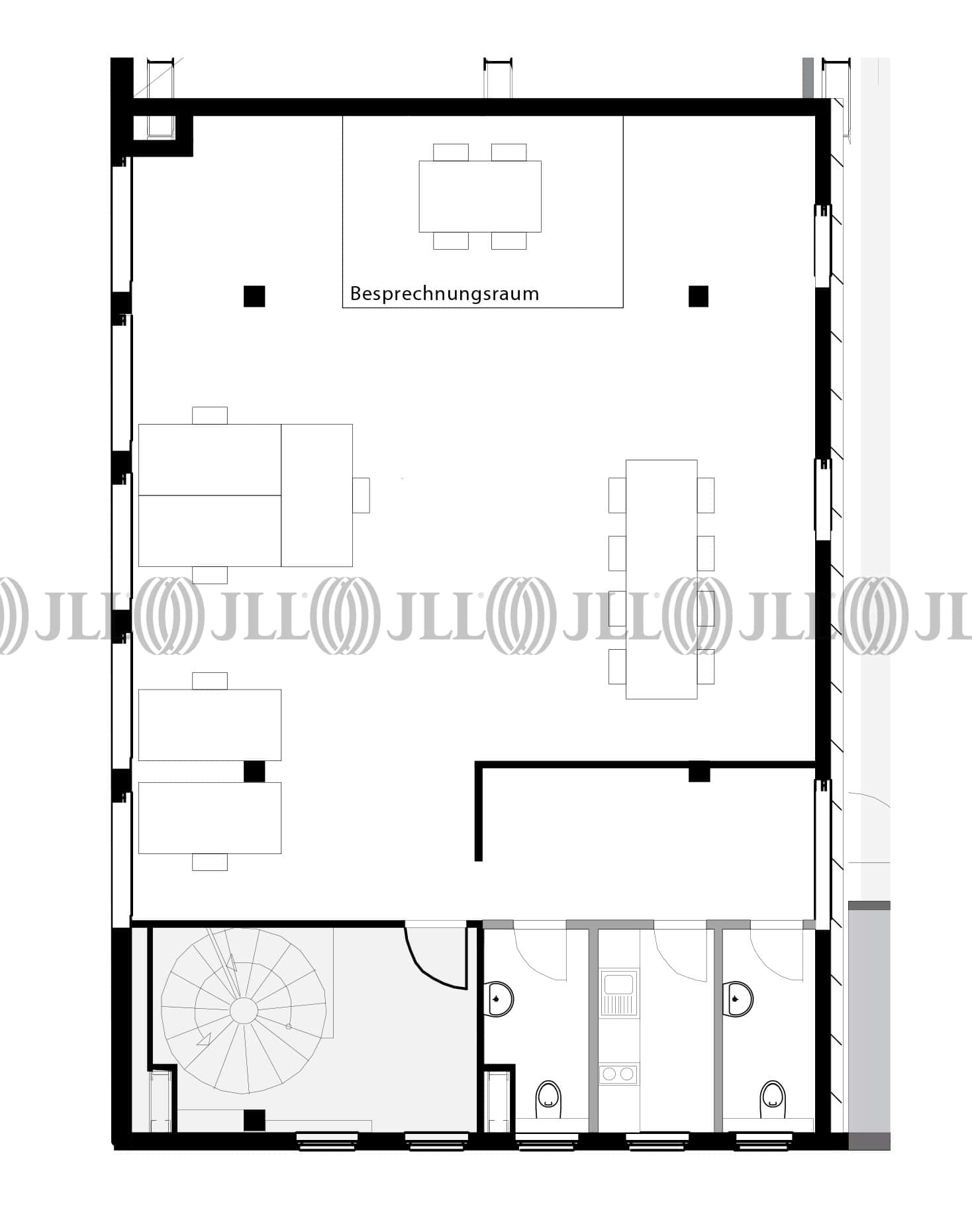
- Grundrisse
- Exposé herunterladen
- Ihr Kontakt
- Anfrage senden
Objekt
Die Immobilienentwicklung der „Rheinhöfe“ am Reisholzer Hafen beinhaltet die Restaurierung und Sanierung von neun unterschiedlichen Liegenschaften sowie deren gesamtes Hofareal. Neben einer klassischen Nutzung für Service- und Logistikflächen stehen zukünftig auch Büro-, Loft- oder Showroomnutzern jede Menge Möglichkeiten offen, die Individualität der einzelnen Objekte auf sich wirken zu lassen.
Zertifizierungen
Energieausweis
Für diese Liegenschaft liegt ein Verbrauchsausweis vom 04.05.2022 vom Eigentümer/Vermieter vor. Die wesentlichen Energieträger der Liegenschaft sind Erdgas schwer, Strom. Der Endenergieverbrauch Strom beträgt 52.10 kWh/(m²*a). Der Endenergieverbrauch Wärme beträgt 59.40 kWh/(m²*a).Verfügbare Fläche
Lage und Verkehrsanbindung
Das historische Produktionsgelände befindet sich in unmittelbarer Nähe zum Reisholzer Hafen, im Süden von Düsseldorf.
- Flughafen, Düsseldorf, Fahrzeit: 21 min
- Bundesautobahn, A 52, Fahrzeit: 5 min
- Bundesautobahn, A 46, Fahrzeit: 8 min
- Bus, Industriepark Niederheid 724, 789, 835, Gehzeit: 1 min
- U-Bahn, Niederheid U71, U74, U83, Gehzeit: 7 min
- Hauptbahnhof, Düsseldorf, Fahrzeit: 12 min
Ihr Kontakt

Janice Lehmann
Ihr Kontakt


















