Büros
ID D0646Büroimmobilie - Düsseldorf, Stadtmitte - D0646
Stadtmitte, 40210, Düsseldorf, Nordrhein-Westfalen
Provisionspflichtig: bei Anmietung 3 Netto-Monatsmieten zzgl. gesetzlicher Umsatzsteuer.** der Wert kann je nach Vertragslaufzeit variieren.
12 € - 13 € / m²
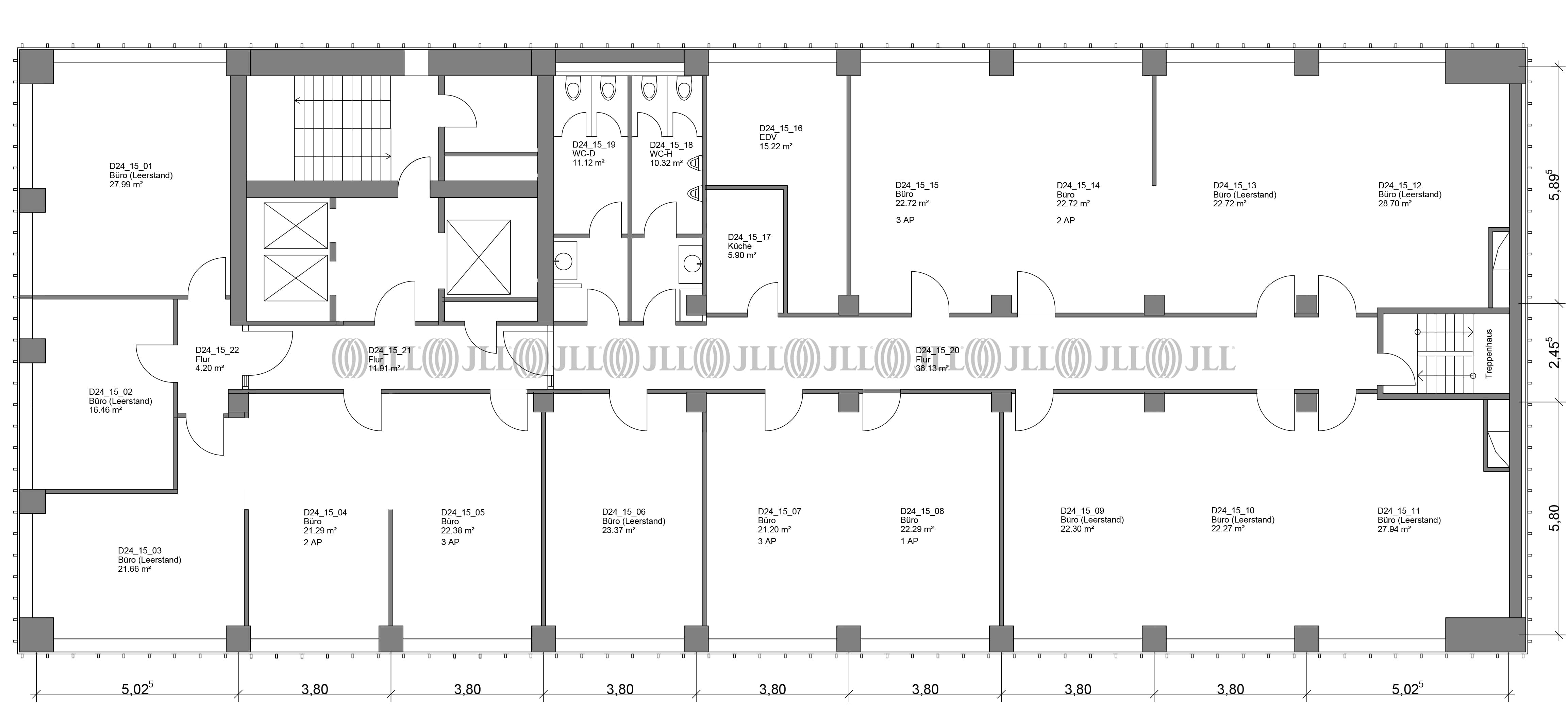
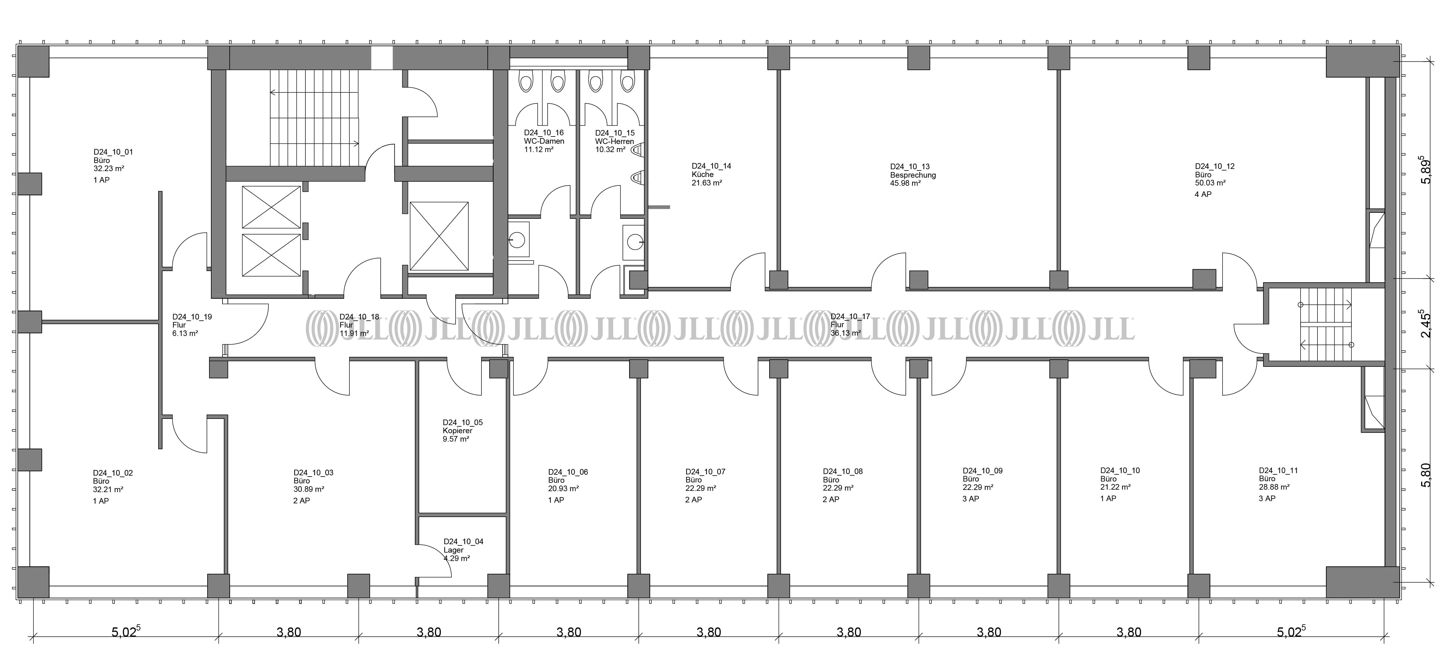
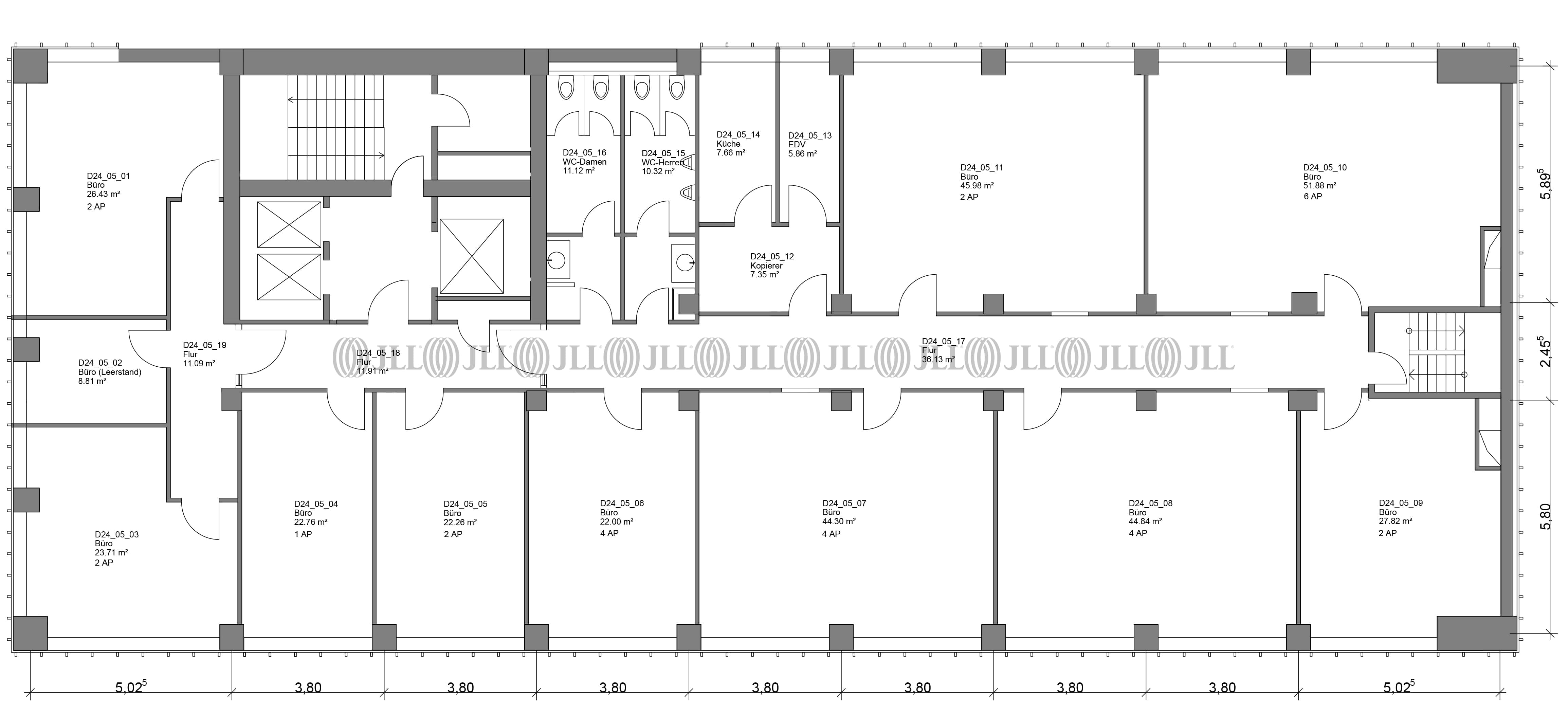
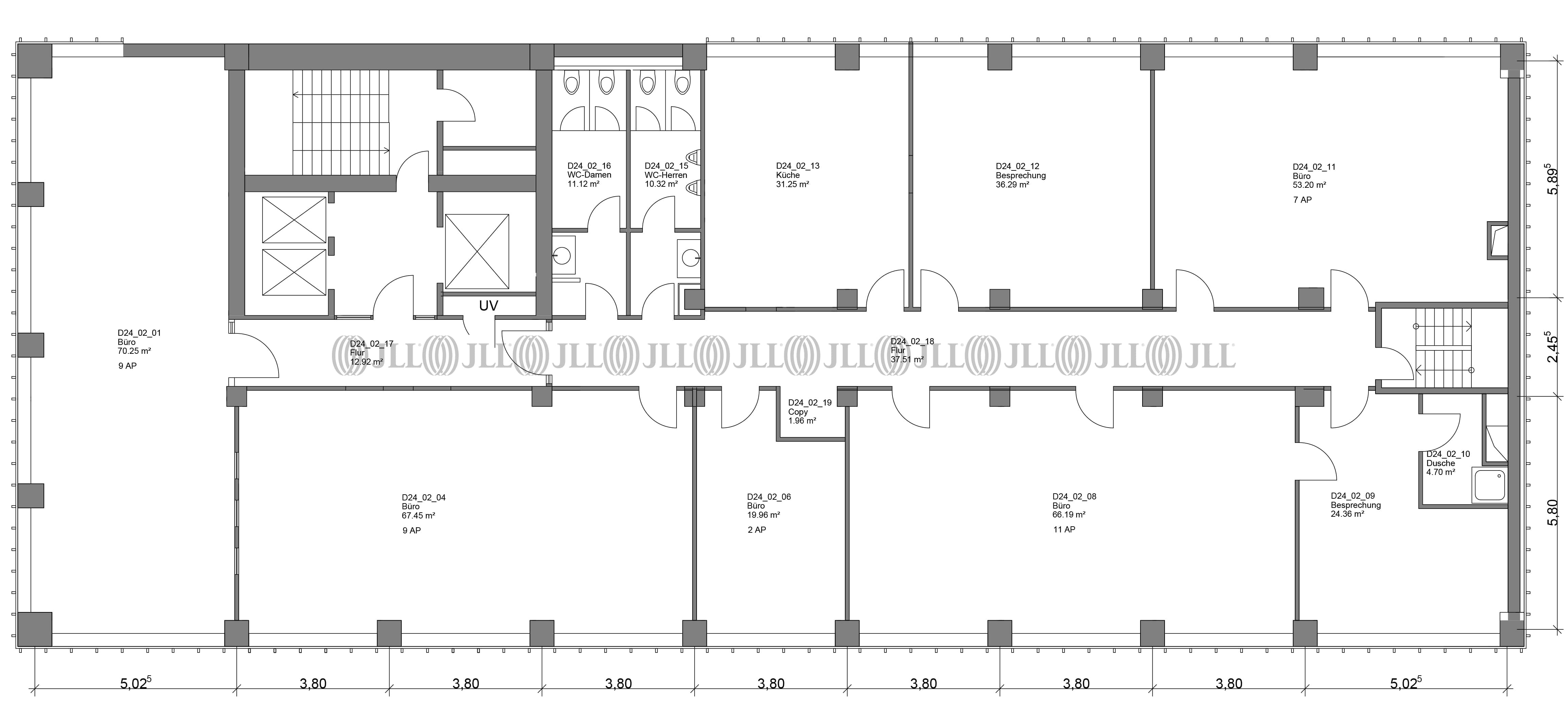
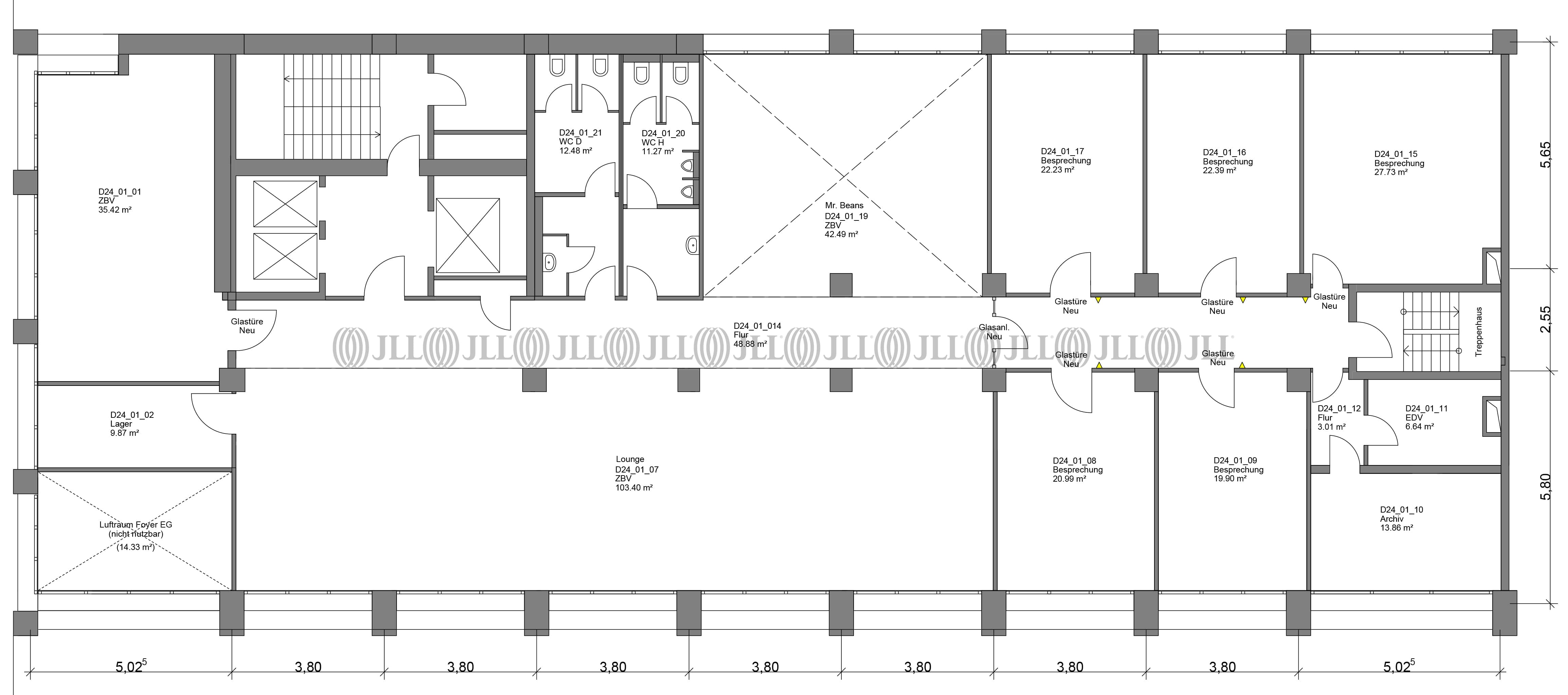
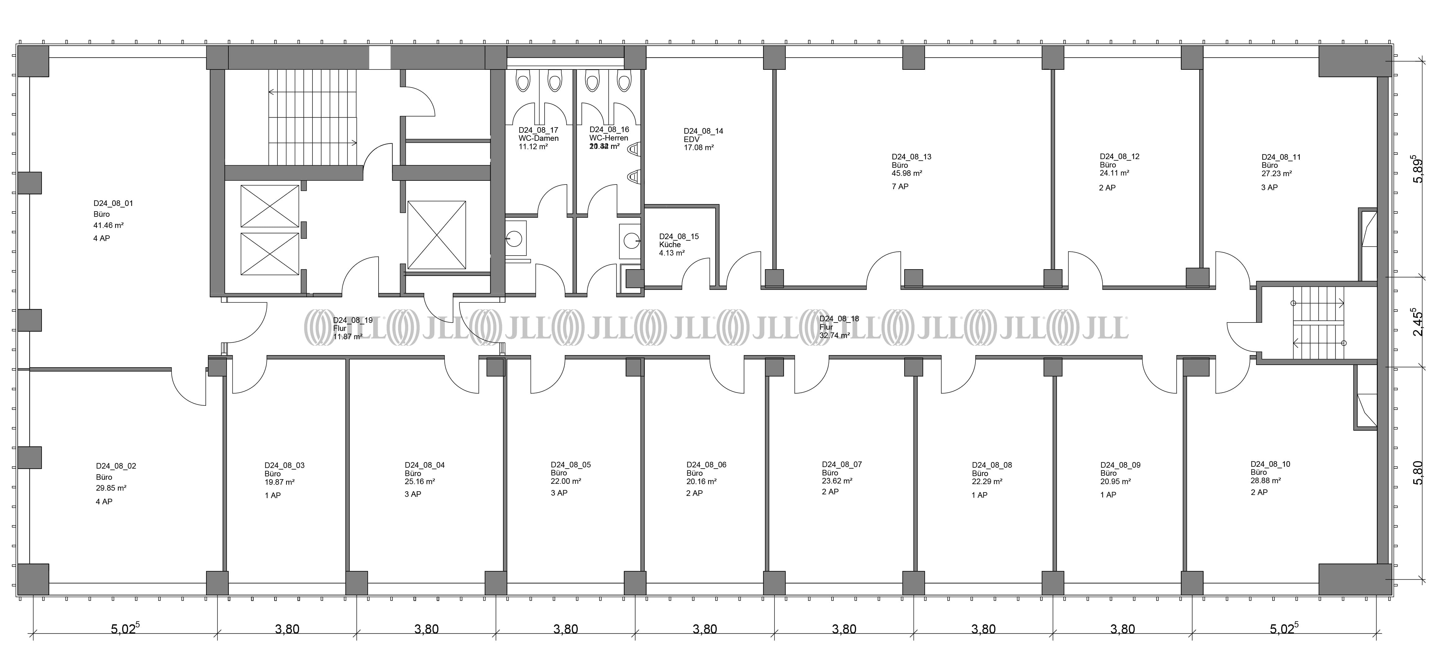
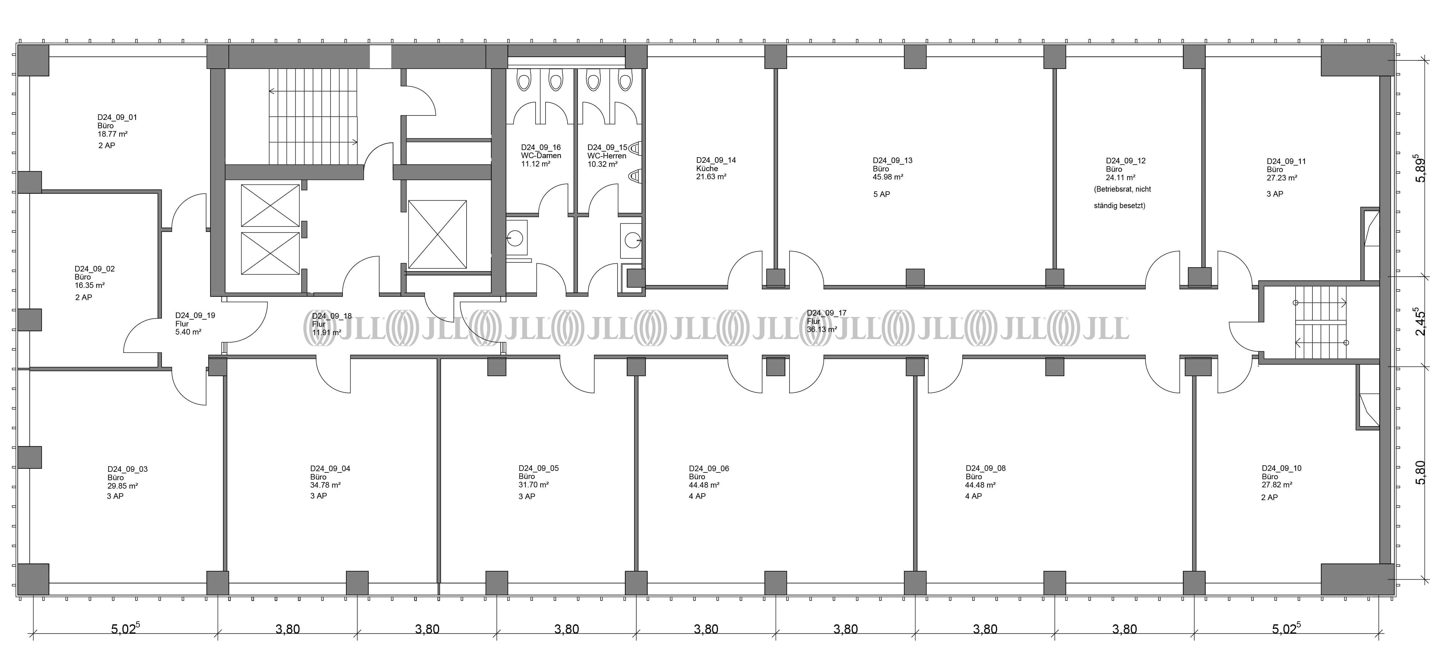
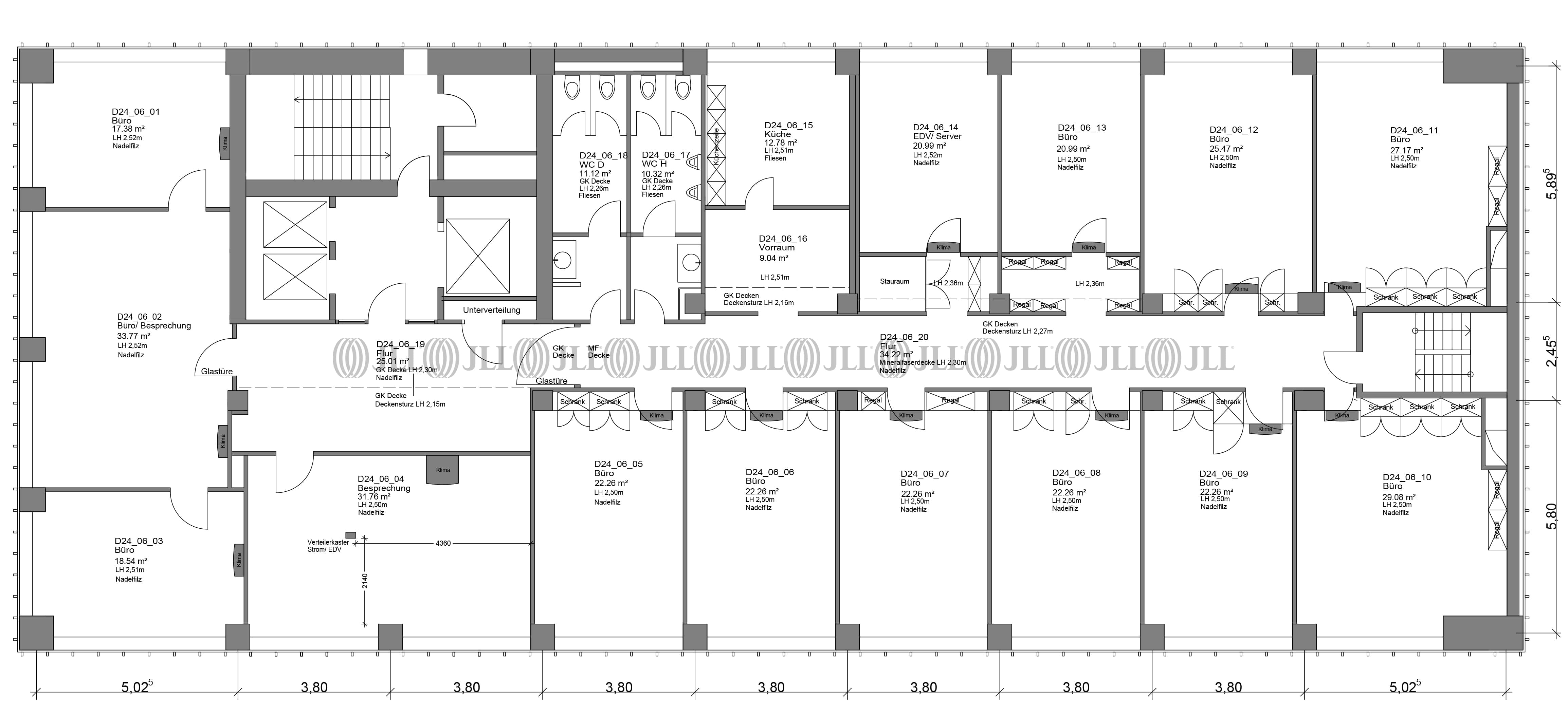
- Fläche435 - 4.315 m²
- VerfügbarkeitSofort
- Objekt
- Ausstattung
- Lage und Verkehrsanbindung
- Grundrisse
- Exposé herunterladen
- Ihr Kontakt
- Anfrage senden
Objekt
Das 16-geschossige Bürohaus verfügt über eine reflektierende Spiegelglasfassade. Der hochwertige Foyer- und Eingangsbereich entspricht einer zeitgemäßen Qualität. In den Erdgeschossflächen der Immobilie befinden sich Einzelhändler, ab dem 1. Obergeschoss bietet der Immermann-Tower effektiv zugeschnittene Büroflächen.
Zertifizierungen
Energieausweis
Für diese Liegenschaft liegt ein Verbrauchsausweis vom 20.06.2019 vom Eigentümer/Vermieter vor. Der wesentliche Energieträger der Liegenschaft ist Fernwärme. Der Endenergieverbrauch Strom beträgt 48.4 kWh/(m²*a). Der Endenergieverbrauch Wärme beträgt 64.7 kWh/(m²*a).Verfügbare Fläche
Lage und Verkehrsanbindung
Das Objekt befindet sich in zentraler Innenstadtlage und verfügt durch die unmittelbare Nähe zum Düsseldorfer Hauptbahnhof über eine ideale ÖPNV-Verbindung. Zahlreiche Einkaufsmöglichkeiten des täglichen Bedarfs sind fußläufig schnell zu erreichen.
- Flughafen, Düsseldorf, Fahrzeit: 12 min
- Bundesautobahn, A 52, Fahrzeit: 9 min
- Bundesautobahn, A 44, Fahrzeit: 9 min
- Hauptbahnhof, Düsseldorf, Gehzeit: 7 min
- Straßenbahn/Tram, Charlottenstraße / Oststraße 707, Gehzeit: 1 min
- U-Bahn, Oststraße U70, U75, U76, U77, U78, U79, Gehzeit: 4 min
Ihr Kontakt

Richard Steimel
Ihr Kontakt



