Büros
ID D0607Provisionsfrei
Aktualisiert
Büroimmobilie - Ratingen - D0607
40882, Ratingen, Nordrhein-Westfalen
13,50 € / m²
- Fläche277 - 2.063 m²
- VerfügbarkeitSofort
- Objekt
- Ausstattung
- Lage und Verkehrsanbindung
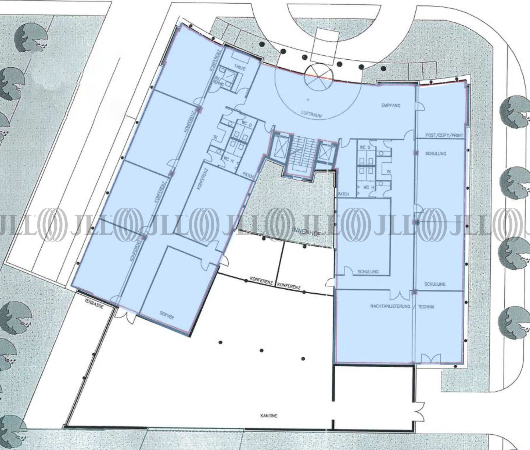
- Grundrisse
- Exposé herunterladen
- Ihr Kontakt
- Anfrage senden
Objekt
Die 6-geschossige Liegenschaft verfügt über einen zentralen Empfang sowie hochwertig ausgestattete Büroflächen. Durch eine großzügige Fensterfront gelangt viel Tageslicht in die Flächen, die sich nach Mieterwunsch flexibel aufteilen lassen.
Zertifizierungen
Energieausweis
Für diese Liegenschaft liegt ein Verbrauchsausweis vom 2019-02-11 vom Eigentümer/Vermieter vor. Der wesentliche Energieträger der Liegenschaft ist Erdgas schwer. Der Endenergieverbrauch Strom beträgt 98.00 kWh/(m²*a). Der Endenergieverbrauch Wärme beträgt 103.00 kWh/(m²*a).Verfügbare Fläche
Lage und Verkehrsanbindung
Das Objekt befindet sich in einem zukunftsorientierten Bürostandort in Ratingen-Ost. Dieser Standort überzeugt durch die unmittelbare Autobahnanbindung sowie die S-Bahnstation. Diese bieten eine ideale Anbindung an Düsseldorf sowie das Ruhrgebiet. Namhafte Unternehmen wie Mitsubishi, Esprit und SAP haben sich hier bereits niedergelassen.
- Flughafen, Düsseldorf, Fahrzeit: 10 min
- Bundesautobahn, A 44, Fahrzeit: 2 min
- Bundesautobahn, A 3, Fahrzeit: 4 min
- Bus, Fester Straße 749, 761, 771, O15, Gehzeit: 2 min
- S-Bahn, Ratingen-Ost S6, Gehzeit: 4 min
- Hauptbahnhof, Ratingen, Fahrzeit: 2 min
Ihr Kontakt

Janice Lehmann
Ihr Kontakt















