Büros
ID D0597Provisionsfrei
Aktualisiert
Büroimmobilie - Düsseldorf, Stadtmitte - D0597
Stadtmitte, 40211, Düsseldorf, Nordrhein-Westfalen
11 € - 17,20 € / m²
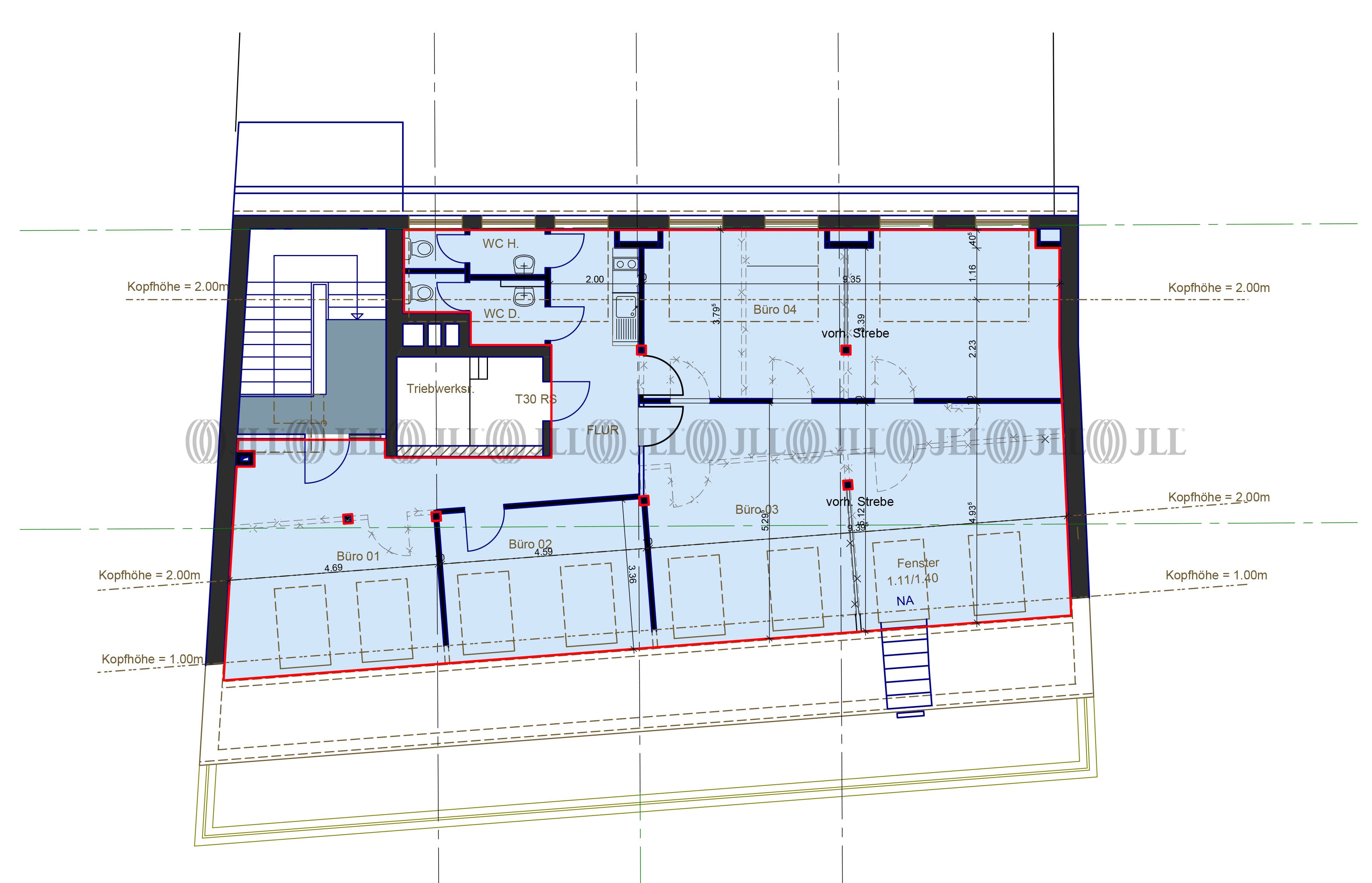
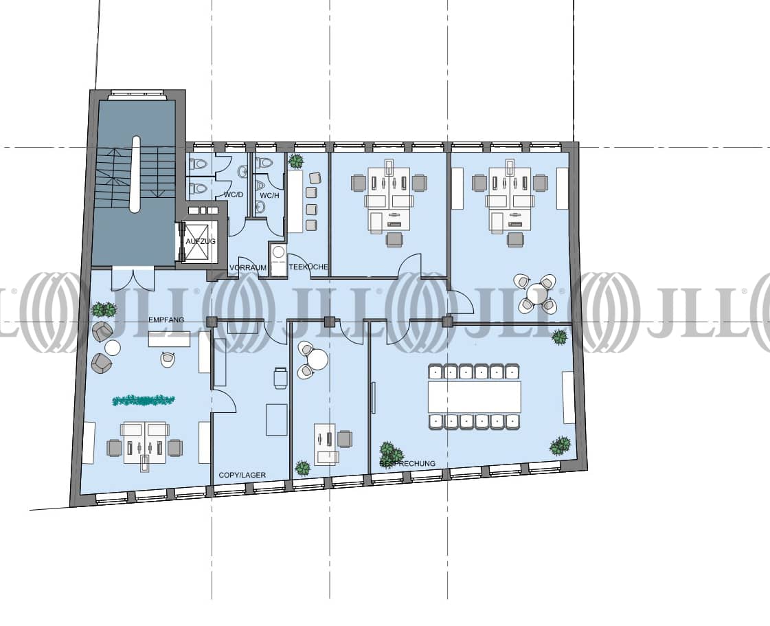
- Fläche122 - 806 m²
- VerfügbarkeitSofort
- Objekt
- Ausstattung
- Lage und Verkehrsanbindung
- Grundrisse
- Exposé herunterladen
- Ihr Kontakt
- Anfrage senden
Objekt
Das 6-geschossige Bürohaus wurde umfangreich modernisiert. Weiterhin können sich Ausstattungsdetails an Mieterwünschen orientieren.
Zertifizierungen
Energieausweis
Für diese Liegenschaft liegt ein Verbrauchsausweis vom 2021-09-15 vom Eigentümer/Vermieter vor. Die wesentlichen Energieträger der Liegenschaft sind Strom,Erdgas schwer. Der Endenergieverbrauch Strom beträgt 31.50 kWh/(m²*a). Der Endenergieverbrauch Wärme beträgt 89.30 kWh/(m²*a).Verfügbare Fläche
Lage und Verkehrsanbindung
Das Objekt befindet sich in guter Düsseldorfer Innenstadtlage, gegenüber dem bekannten Wehrhahn-Center. Die Straße Am Wehrhahn bildet die Verlängerung der Schadowstraße, eine der umsatzstärksten Einkaufsstraßen Deutschlands und ist eine der Hauptverkehrsachsen in die östlichen Stadtteile Düsseldorfs.
- Flughafen, Düsseldorf, Fahrzeit: 12 min
- Bundesautobahn, A 44, Fahrzeit: 12 min
- Bundesautobahn, A 46, Fahrzeit: 12 min
- Hauptbahnhof, Düsseldorf, Fahrzeit: 5 min
- Bus, Pempelforter Straße 721, 722, 737, 807, Gehzeit: 2 min
- U-Bahn, Pempelforter Straße U71, U72, U83, , Gehzeit: 2 min
- Straßenbahn/Tram, Pempelforter Straße 704, Gehzeit: 2 min
Ihr Kontakt

Katharina Ufelmann
Ihr Kontakt
























