Büros
ID D0583Provisionsfrei
Aktualisiert
Büroimmobilie - Düsseldorf, Stadtmitte - D0583
Stadtmitte, 40211, Düsseldorf, Nordrhein-Westfalen
15,50 € - 18 € / m²
- Fläche210 - 4.373 m²
- VerfügbarkeitAuf Anfrage
- Objekt
- Ausstattung
- Lage und Verkehrsanbindung
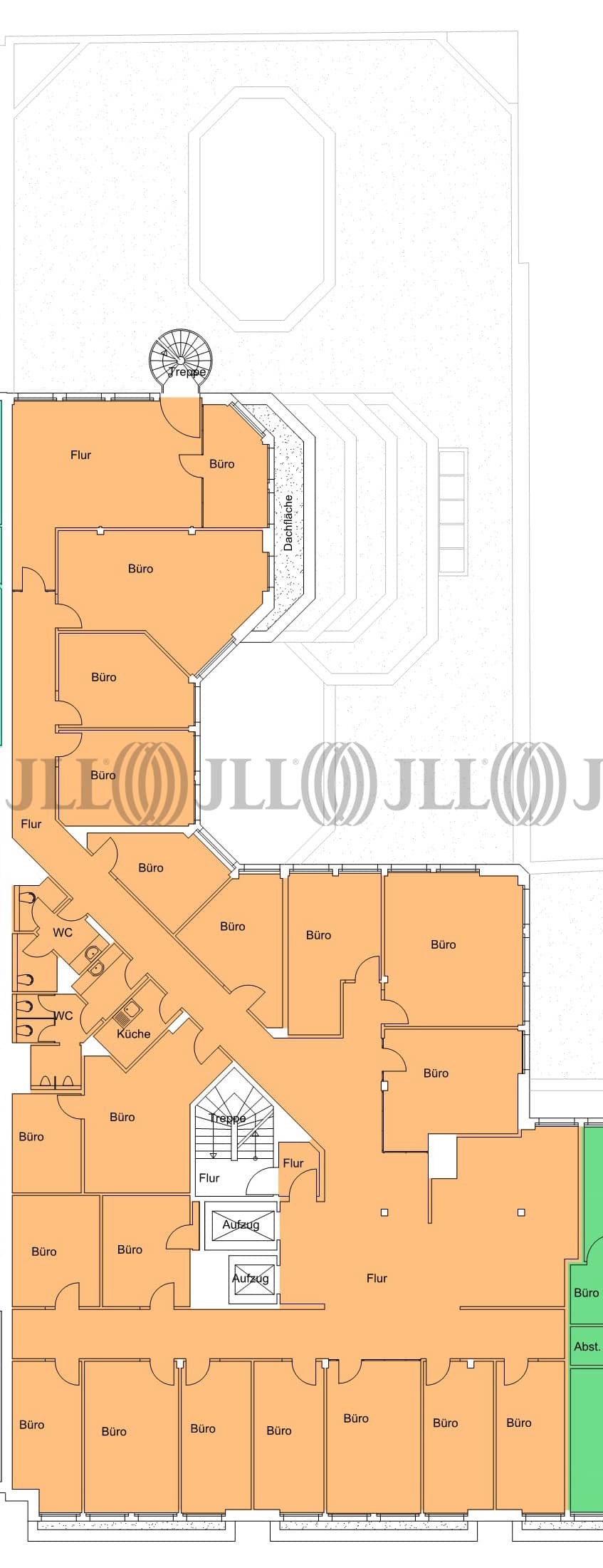
- Grundrisse
- Exposé herunterladen
- Ihr Kontakt
- Anfrage senden
Objekt
Die Natursteinfassade mit Glas- und Aluminiumelementen sowie ein hohes, ausdruckstarkes Eckportal geben dem modernen Bürogebäude seine repräsentative Note.
Zertifizierungen
Energieausweis
Für diese Liegenschaft liegt ein Bedarfsausweis vom 27.08.2019 vom Eigentümer/Vermieter vor. Die wesentlichen Energieträger der Liegenschaft sind Heizwerk, fossil, KWK. Der Endenergiebedarf Strom beträgt 94.20 kWh/(m²*a). Der Endenergiebedarf Wärme beträgt 131.90 kWh/(m²*a).Verfügbare Fläche
Lage und Verkehrsanbindung
Die Liegenschaft befindet sich in zentraler Innenstadtlage von Düsseldorf. Dieser Standort zeichnet sich besonders durch eine sehr gute Infrastruktur und ÖPNV Anbindung aus. Zahlreiche Einkaufsmöglichkeiten, Geschäfte des alltäglichen Bedarfs sowie Restaurants und Ärzte sind in unmittelbarer Nähe zu finden. Die Altstadt direkt am Rhein gelegen sowie die beliebte Einkaufsmeile Königsallee laden zum Verweilen ein und liegen in fußläufiger Entfernung.
- Hauptbahnhof, Düsseldorf, Fahrzeit: 2 min
- U-Bahn, Pempelforter Straße U71, U72, U73, U83, Gehzeit: 1 min
- Straßenbahn/Tram, Pempelforter Straße 704, Gehzeit: 1 min
- Bus, Pempelforter Straße 721, 722, 737, Gehzeit: 1 min
- Bundesautobahn, A 44, Fahrzeit: 9 min
- Bundesautobahn, A 52, Fahrzeit: 10 min
- Flughafen, Düsseldorf, Fahrzeit: 12 min
Ihr Kontakt

Richard Steimel
Ihr Kontakt














