Büros
ID D0579Büroimmobilie - Düsseldorf, Friedrichstadt - D0579
Friedrichstadt, 40212, Düsseldorf, Nordrhein-Westfalen
Provisionspflichtig: bei Anmietung 3 Netto-Monatsmieten zzgl. gesetzlicher Umsatzsteuer.** der Wert kann je nach Vertragslaufzeit variieren.
16 € / m²
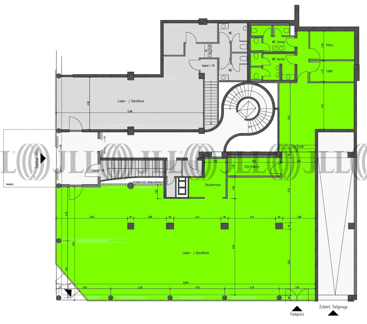
- Fläche170 m²
- VerfügbarkeitSofort
- Objekt
- Ausstattung
- Lage und Verkehrsanbindung
- Grundrisse
- Exposé herunterladen
- Ihr Kontakt
- Anfrage senden
Objekt
Dieses 7-geschossige Büro- und Geschäftshaus bietet repräsentative und gut geschnittene Flächen in zentraler Innenstadtlage. Die Flächen lassen sich individuell nach Mieterwunsch aufteilen.
Zertifizierungen
Energieausweis
Für diese Liegenschaft liegt ein Bedarfsausweis vom 2015-08-29 vom Eigentümer/Vermieter vor. Der wesentliche Energieträger der Liegenschaft ist Öl. Der Endenergiebedarf Strom beträgt 58.50 kWh/(m²*a). Der Endenergiebedarf Wärme beträgt 152.50 kWh/(m²*a).Verfügbare Fläche
Lage und Verkehrsanbindung
Die Berliner Allee verläuft parallel zur weltbekannten Königsallee und ist eine der Hauptverkehrsachsen der nordrhein-westfälischen Landeshauptstadt Düsseldorf. Durch die Projekte Wehrhahn-Linie und insbesondere dem Kö-Bogen I und II im nördlichen Abschnitt hat der Standort eine preisgekrönte und aufwertende Umgestaltung erlebt.
- Hauptbahnhof, Düsseldorf, Fahrzeit: 4 min
- Straßenbahn/Tram, Berliner Allee 701, 705, 706, 708, 709, Gehzeit: 1 min
- Bus, Berliner Allee SB50, 780, 782, 785, Gehzeit: 1 min
- Bundesautobahn, A 52, Fahrzeit: 7 min
- Bundesautobahn, A 46, Fahrzeit: 7 min
- Flughafen, Düsseldorf, Fahrzeit: 11 min
Ihr Kontakt

Nell Ewert
Ihr Kontakt









