Büros
ID D0556Provisionsfrei
Büroimmobilie - Düsseldorf, Oberbilk - D0556
Oberbilk, 40227, Düsseldorf, Nordrhein-Westfalen
Kontaktieren Sie uns für den Preis
- Fläche91 - 554 m²
- VerfügbarkeitSofort
- Objekt
- Ausstattung
- Lage und Verkehrsanbindung
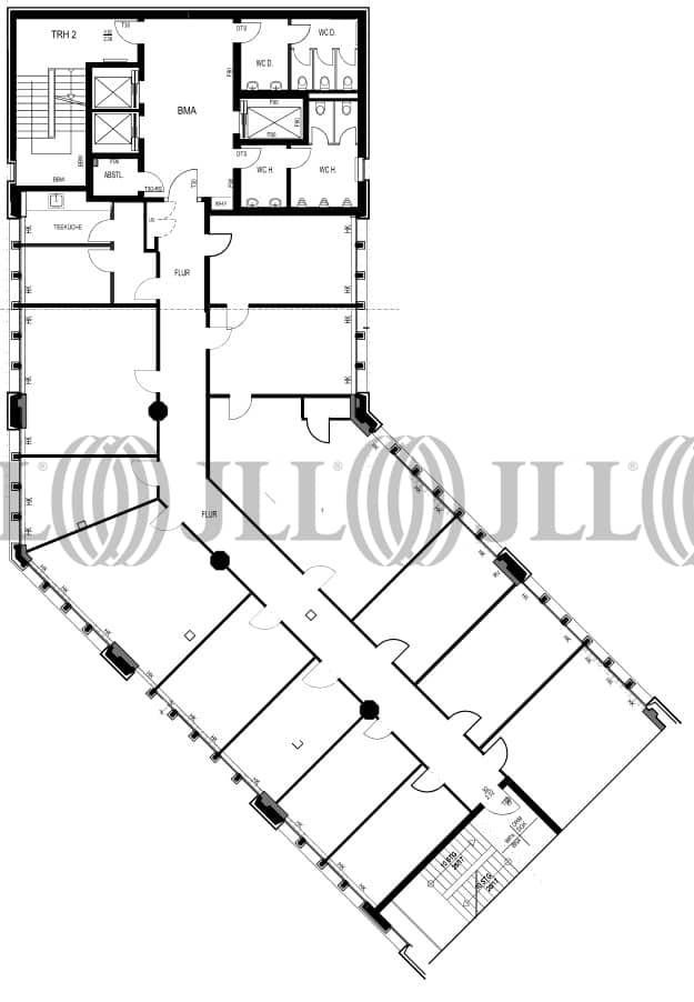
- Grundrisse
- Exposé herunterladen
- Ihr Kontakt
- Anfrage senden
Objekt
Die imposante Liegenschaft bietet seinen zukünftigen Nutzern eine hervorragende Aussicht und wird auf Mieterwunsch renoviert übergeben.
Verfügbare Fläche
Lage und Verkehrsanbindung
Gute Innenstadtlage in unmittelbarer Nähe des Hauptbahnhofes mit besten öffentlichen Verkehrsanbindungen u. a. zur Messe und zum Flughafen. Dienstleister des täglichen Bedarfs befinden sich in der Nähe.
- Hauptbahnhof, Düsseldorf, Gehzeit: 1 min
- Bus, Hauptbahnhof 721, 722, 732, 737, 738, 752, 754, 834, Gehzeit: 1 min
- Bundesautobahn, A 52, Fahrzeit: 5 min
- Bundesautobahn, A 46, Fahrzeit: 13 min
- Flughafen, Düsseldorf, Fahrzeit: 12 min
Ihr Kontakt

Nell Ewert
Ihr Kontakt










